Bénéficiez des services de nos partenaires locaux soigneusement sélectionnés
pour vous accompagner dans votre parcours d'achat immobilier

Terrain à bâtir tout proche Centre-ville

— Rueil-Malmaison 92500 —
445 000 €
235 m²
parkingjardin

Nos partenaires locaux
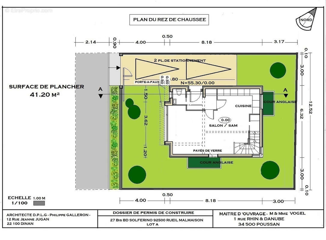
A deux pas du centre-ville, au sein d'une impasse, TERRAIN A BÂTiR de 235m2 pour construction d'une maison individuelle de 126m2 avec séjour/cuisine us exposé SO, de plain-pied sur terrasse et jardin + 3 ou 4 chambres aux étages.
Le Permis de construire est d'ores et déjà validé et purgé de tout recours.
Naturellement, des adaptations sont envisageables par le dépôt d'un permis modificatif.
Le coût global du projet a été chiffré et le temps de réalisation des travaux évalué à 10 mois.
Outre la bonne sectorisation scolaire, le terrain se situe à deux pas des commerces du coeur de ville.
Voir plus

Référence: 117
Bien en copropriété. Nombre de lots : 81.
Honoraires d'agence de 5% à la charge de l'acquéreur
Barème des honoraires
Terrain à RUEIL-MALMAISON
Terrain à RUEIL-MALMAISON
Terrain à RUEIL-MALMAISON
Terrain à RUEIL-MALMAISON
Terrain à RUEIL-MALMAISON
Terrain à RUEIL-MALMAISON
Terrain à RUEIL-MALMAISON
Terrain à RUEIL-MALMAISON
Terrain à RUEIL-MALMAISON
Géorisques

Les informations sur les risques auxquels ce bien est exposé sont disponibles sur le site Géorisques : www.georisques.gouv.fr

Ce site est protégé par hCaptcha Politique de confidentialité et Conditions d’utilisation s’appliquent.