Bénéficiez des services de nos partenaires locaux soigneusement sélectionnés
pour vous accompagner dans votre parcours d'achat immobilier

Appartement familial - 4 pièces - ALÉSIA

— Paris-14e 75014 —
1 050 000 €
96 m²
4 pièces

Nos partenaires locaux
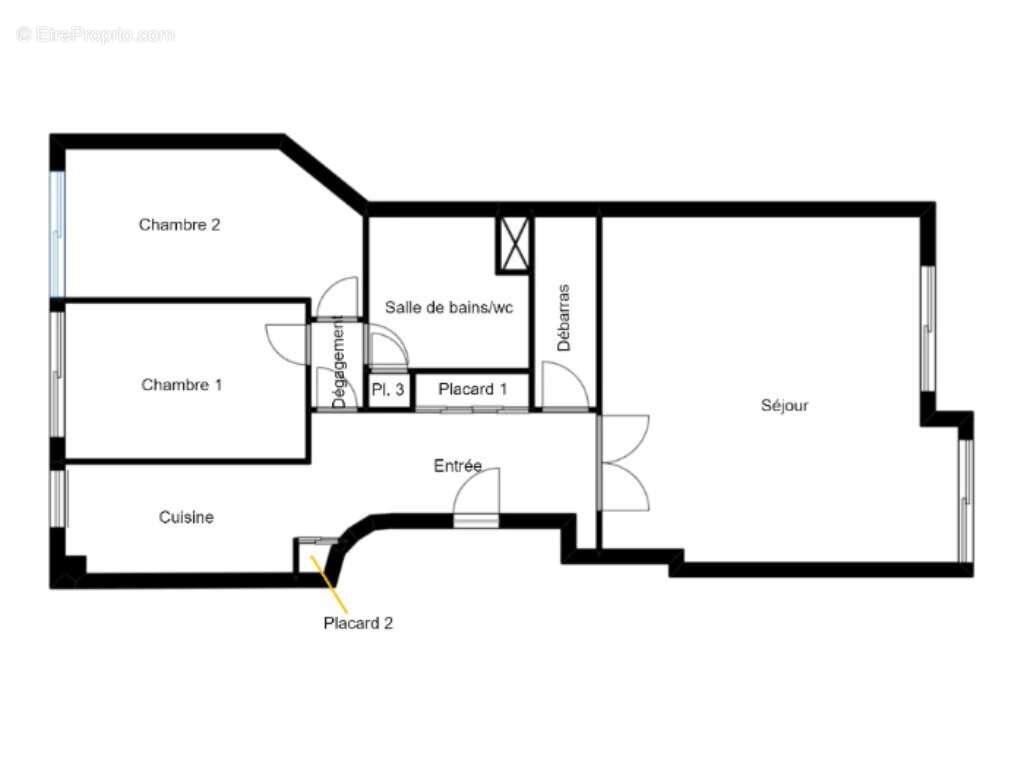
Victorine Immobilier vous propose un appartement traversant au cœur du quartier Alésia, au deuxième étage avec ascenseur d’un immeuble des années 1980 parfaitement entretenu.

Dès l’entrée, les volumes sont équilibrés, fonctionnels et accueillants.
Un salon lumineux prolonge naturellement la salle à manger, offrant un espace de réception chaleureux et convivial.

La cuisine séparée permet une organisation confortable du quotidien.
La grande salle de bain, équipée d’une douche et d’une baignoire, répond aux exigences d’une vie familiale harmonieuse.
Deux chambres, situées entièrement sur cour, garantissent un calme rare dans ce secteur recherché. Un dressing complet l’ensemble.

Surface : 96 m2

L’appartement est traversant, ce qui lui confère une belle luminosité et une agréable circulation d’air. On s’y sent immédiatement bien.
L’appartement affiche un excellent diagnostic de performance énergétique.

DPE : C
GES : B
L’appartement ne comporte aucune anomalie électrique, ni amiante.
Prix de vente : 1 050 000 euros honoraires d’agence inclus à 5%, soit 50 000 TTC
Voir plus

Référence: 86778886
DPE
A
B
C
D
E
F
G
GES
A
B
C
D
E
F
G
Appartement à PARIS-14E
Appartement à PARIS-14E
Appartement à PARIS-14E
Appartement à PARIS-14E
Appartement à PARIS-14E
Appartement à PARIS-14E
Appartement à PARIS-14E
Appartement à PARIS-14E
Appartement à PARIS-14E
Appartement à PARIS-14E
Appartement à PARIS-14E
Appartement à PARIS-14E
Appartement à PARIS-14E
Géorisques

Les informations sur les risques auxquels ce bien est exposé sont disponibles sur le site Géorisques : www.georisques.gouv.fr

Ce site est protégé par hCaptcha Politique de confidentialité et Conditions d’utilisation s’appliquent.

En poursuivant votre navigation sans modifier vos paramètres, vous acceptez l'utilisation de cookies susceptibles de réaliser des statistiques de visite. Cliquez ici pour plus d'informations