Bénéficiez des services de nos partenaires locaux soigneusement sélectionnés
pour vous accompagner dans votre parcours d'achat immobilier

Appartements T3 à vendre Lyon 6ème de 62m2

— Lyon-6e 69006 —
275 000 €
62 m²
3 pièces

Nos partenaires locaux
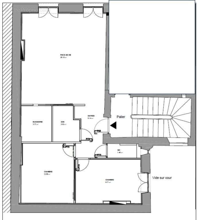
Plateau de 62 m2 à vendre, situé au 1er étage d'un immeuble sans ascenseur, offrant un fort potentiel de transformation selon vos envies et vos besoins.

Ce plateau brut peut être aménagé en appartement de type T3 avec deux chambres, ou en T2 bis avec un grand espace de vie et un bureau ou chambre d'appoint. Il constitue une excellente opportunité pour un projet de résidence principale sur mesure ou pour un investissement locatif.
Travaux à prévoir: aux alentours de 70 000euros en fonction des prestations.

Le bien est vendu avec un compteur d'eau individuel et un compteur électrique, ainsi qu'un raccordement aux eaux usées déjà en place, facilitant ainsi le démarrage des travaux. La configuration permet une grande liberté d'aménagement intérieur, avec la possibilité d'optimiser les volumes et la luminosité selon votre projet.

Des travaux de rénovation complète sont à prévoir, incluant l'isolation, les cloisons, les sols, la cuisine et la salle de bain. Cela représente une opportunité idéale pour créer un bien entièrement personnalisé, conforme aux dernières normes de confort et de performance énergétique.

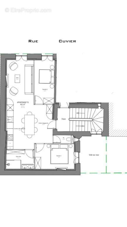
À noter que d'autres plateaux déjà rénovés dans l'immeuble, situés aux 2ème et 3ème étages, présentent des DPE projetés en classe C ou D selon les travaux réalisés, ce qui laisse entrevoir un bon potentiel d'amélioration énergétique pour ce lot.

Situé dans un environnement agréable, ce bien bénéficie de la proximité des commerces, transports et commodités, tout en offrant le calme d'un étage intermédiaire.

Ce plateau séduira aussi bien les particuliers en quête d'un projet sur mesure que les investisseurs souhaitant valoriser un bien avec travaux et optimiser sa rentabilité.

Les informations sur les risques auxquels ce bien est exposé sont disponibles sur le site Géorisques : www.georisques.gouv.fr
Voir plus

Référence: 549
Bien en copropriété. Nombre de lots : 8. Charges de copropriété : 116 €.
Honoraires à la charge du vendeur.
Appartement à LYON-6E
Appartement à LYON-6E
Appartement à LYON-6E
Appartement à LYON-6E
Appartement à LYON-6E
Géorisques

Les informations sur les risques auxquels ce bien est exposé sont disponibles sur le site Géorisques : www.georisques.gouv.fr

Ce site est protégé par hCaptcha Politique de confidentialité et Conditions d’utilisation s’appliquent.