Bénéficiez des services de nos partenaires locaux soigneusement sélectionnés
pour vous accompagner dans votre parcours d'achat immobilier

Appartement 2 pièces avec balcon et parking – Résidence récente à Bobigny

— Bobigny 93000 —
175 000 €
42 m²
2 pièces
parkingbalcon/terrasseascenseur

Nos partenaires locaux
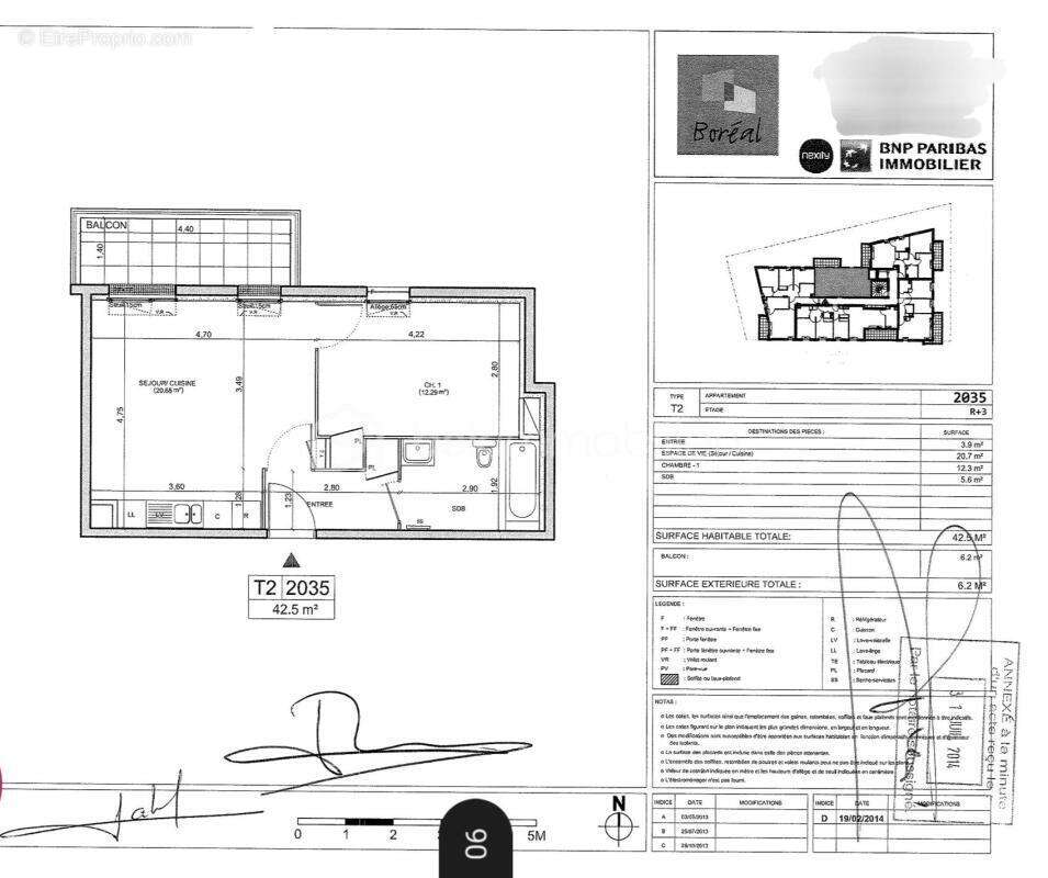
Situé au 3e étage avec ascenseur d'une résidence moderne et sécurisée construite en 2014, cet appartement 2 pièces de 42,5 m² séduit par sa luminosité, son agencement optimisé et son environnement pratique. L'entrée dessert une belle pièce de vie de plus de 20 m² avec cuisine ouverte (non aménagée), donnant directement accès à un balcon de 6,2 m², parfait pour profiter d'un espace extérieur au calme.

La chambre, d'une surface confortable de 12,39 m², offre un vrai potentiel d'aménagement. La salle de bains, spacieuse, intègre également les WC. L'ensemble est chauffé par un système collectif au gaz, et le bien bénéficie d'un DPE classé C, gage d'efficacité énergétique. Une place de stationnement en sous-sol complète ce bien.

Taxe foncière : 1772 e

L'appartement se trouve à quelques minutes à pied du métro Bobigny - Pablo Picasso (ligne 5), du tramway T1, des écoles, des commerces et des équipements culturels. Il constitue une belle opportunité tant pour une résidence principale que pour un investissement locatif stratégique, dans une commune en plein développement et très bien desservie.

Cette annonce référence 289969 vous est présentée par votre agent commercial BSK Immobilier SANDRINE PAKULA (EI) immatriculé au RSAC de BOBIGNY (93000) sous le numéro 82756608400022.

Prix du bien : 175 000,00 €
Les honoraires d'agence sont à la charge du vendeur.

A propos de la copropriété :
Pas de procédure en cours.
Nombre de lots : 53
Charges prévisionnelles annuelles : 1 978,00 €

A propos des performances énergétiques :
Date de réalisation du diagnostic énergétique : 24/05/2025
Score DPE : 150 kWhEP/m²/an
Score GES : 15 kgepCO2/m²/an
Montant estimé des dépenses annuelles d'énergie pour un usage standard : entre 490.00 € et 710.00 € par an. Prix moyens des énergies indexés sur l'année 2023 (abonnements compris).

Les informations sur les risques auxquels ce bien est exposé sont disponibles sur le site Géorisques : www.georisques.gouv.fr
Voir plus

Référence: 289969_2
Bien en copropriété. Nombre de lots : 53. Charges de copropriété : 164 €.
Honoraires à la charge du vendeur.
DPE
A
B
C
D
E
F
G
GES
A
B
C
D
E
F
G
Appartement à BOBIGNY
Appartement à BOBIGNY
Appartement à BOBIGNY
Appartement à BOBIGNY
Appartement à BOBIGNY
Appartement à BOBIGNY
Appartement à BOBIGNY
Appartement à BOBIGNY
Appartement à BOBIGNY
Géorisques

Les informations sur les risques auxquels ce bien est exposé sont disponibles sur le site Géorisques : www.georisques.gouv.fr

Ce site est protégé par hCaptcha Politique de confidentialité et Conditions d’utilisation s’appliquent.

En poursuivant votre navigation sans modifier vos paramètres, vous acceptez l'utilisation de cookies susceptibles de réaliser des statistiques de visite. Cliquez ici pour plus d'informations