Bénéficiez des services de nos partenaires locaux soigneusement sélectionnés
pour vous accompagner dans votre parcours d'achat immobilier

 beaumont - maison familiale avec piscine

— Marseille-12e 13012 —
665 000 €
112 m²
4 pièces
parkingbalcon/terrassepiscine

Nos partenaires locaux
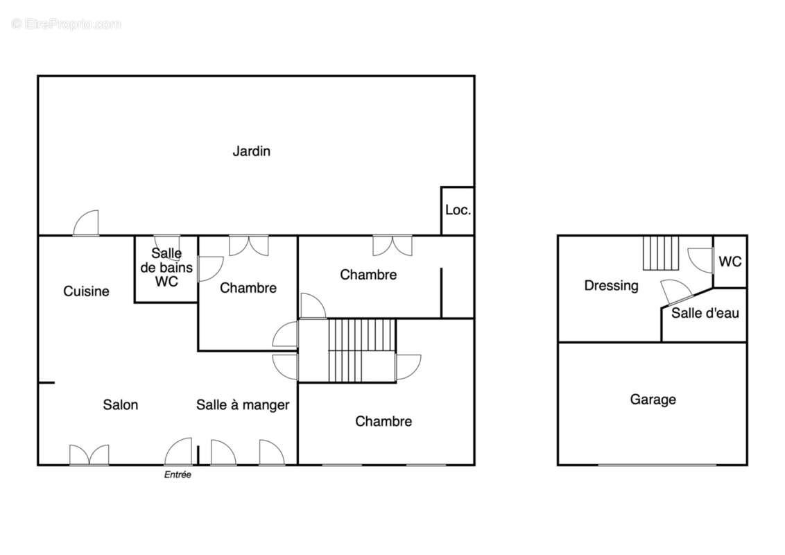
C'est dans un environnement résidentiel recherché que le Café de l'immo vous propose de poser vos valises. Situé à quelques minutes du village de Saint Barnabé et proche de toutes commodités, découvrez cette maison de type 4 de 112m2 offrant volumes et luminosité.
Parfaitement pensée pour une la vie de famille, vous serez conquis par sa pièce de vie ouverte sur une cuisine entièrement equipée.
L'espace nuit, quant à lui, offre une grande chambre parentale avec salle d'eau et wc, suivi de 2 chambres avec salle de bain et wc séparé. Vous y trouverez également une buanderie ainsi que de nombreux rangements.
Atout majeur de la maison et à l'abri des regards, vous serez charmés par l'espace extérieur, un jardin accueillant une piscine et plusieurs espaces de détente, idéal pour passer de bons moments en famille ou entre amis.
Un grand garage de 25m2 complète ce bien.
Taxe foncière: 2 200 €
Cette annonce vous est proposée par Wyatt Nathan - - NoRSAC: 804 380 012, Enregistré à Chambre de commerce et de l'industrie de MARSEILLE
Voir plus

Référence: 1476
Honoraires à la charge du vendeur.
Barème des honoraires
DPE
A
B
C
D
E
F
G
GES
A
B
C
D
E
F
G
Maison à MARSEILLE-12E
Maison à MARSEILLE-12E
Maison à MARSEILLE-12E
Maison à MARSEILLE-12E
Maison à MARSEILLE-12E
Maison à MARSEILLE-12E
Maison à MARSEILLE-12E
Maison à MARSEILLE-12E
Maison à MARSEILLE-12E
Maison à MARSEILLE-12E
Maison à MARSEILLE-12E
Maison à MARSEILLE-12E
Maison à MARSEILLE-12E
Maison à MARSEILLE-12E
Maison à MARSEILLE-12E
Maison à MARSEILLE-12E
Maison à MARSEILLE-12E
Maison à MARSEILLE-12E
Maison à MARSEILLE-12E
Géorisques

Les informations sur les risques auxquels ce bien est exposé sont disponibles sur le site Géorisques : www.georisques.gouv.fr

Ce site est protégé par hCaptcha Politique de confidentialité et Conditions d’utilisation s’appliquent.

En poursuivant votre navigation sans modifier vos paramètres, vous acceptez l'utilisation de cookies susceptibles de réaliser des statistiques de visite. Cliquez ici pour plus d'informations