Bénéficiez des services de nos partenaires locaux soigneusement sélectionnés
pour vous accompagner dans votre parcours d'achat immobilier

Appartement T3 avec cachet de l’ancien Maison Carrée

— Nimes 30000 —
189 000 €
78 m²
3 pièces

Nos partenaires locaux
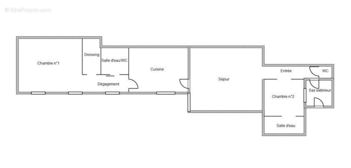
Nîmes rue de la Maison Carrée, appartement T3 situé en plein coeur du quartier historique. Avec un emplacement priviligié à seulement quelques pas de la célèbre Maison Carrée. Cet appartement fait partie d'un immeuble ancien au charme indéniable, au calme bien qu'il soit central. De 78 m2 au 1er étage avec un accés par un petit patio privatif, une entrée, une belle pièce de vie lumineuse avec une grande hauteur sous plafond, une cuisine séparée, une première chambre avec salle d'eau, une deuxième chambre (suite parentale de 25 m2 dotée d'une salle d'eau), wc et d'un dressing. Les grandes fenêtres de cet appartement offrent une vue sur un jardin exterieur, ajoutant une touche de verdure et de tranquilité. Cet appartement conserve le charme de l'ancien avec ses tomettes d'origine et ses élégantes cheminées, prét a etre mis en valeur aprés quelques travaux de rafraichissement. Il se situe dans un quartier prestigieux de Nimes, à proximité immédiate des commerces, restaurants, et transports en commun. C'est une opportunité pour les amateurs de biens immobiliers de caractère dans le centre historique. Pour fixer une RDV de visite Agence ATRIUM IMMOBILIER 12 Bd Alphonse Daudet Nimes
Voir plus

Référence: 5107
Bien en copropriété. Nombre de lots : 41. Charges de copropriété : 922 €.
Barème des honoraires
DPE
A
B
C
D
E
F
G
GES
A
B
C
D
E
F
G
Appartement à NIMES
Appartement à NIMES
Appartement à NIMES
Appartement à NIMES
Appartement à NIMES
Appartement à NIMES
Appartement à NIMES
Appartement à NIMES
Appartement à NIMES
Appartement à NIMES
Appartement à NIMES
Appartement à NIMES
Géorisques

Les informations sur les risques auxquels ce bien est exposé sont disponibles sur le site Géorisques : www.georisques.gouv.fr

Ce site est protégé par hCaptcha Politique de confidentialité et Conditions d’utilisation s’appliquent.

En poursuivant votre navigation sans modifier vos paramètres, vous acceptez l'utilisation de cookies susceptibles de réaliser des statistiques de visite. Cliquez ici pour plus d'informations