Bénéficiez des services de nos partenaires locaux soigneusement sélectionnés
pour vous accompagner dans votre parcours d'achat immobilier

T5 Duplex 118,9 m2 + 23 m2 terrasse Sud-Ouest Asnières-Sur-Seine

— Asnieres-Sur-Seine 92600 —
698 000 €
118 m²
5 pièces
parkingbalcon/terrasseascenseur

Nos partenaires locaux
ASM Immobilier vous propose – Duplex d’exception en dernier étage avec terrasse – Coup de cœur assuré

Rare sur le secteur. Situé au cœur d’un nouvel éco-quartier dynamique et moderne, à seulement 2 minutes à pied du métro ligne 13 – station Les Courtilles, ce superbe duplex en dernier étage bénéficie d’un environnement recherché, à proximité immédiate de nombreux commerces et services : supermarché, boulangerie, tabac, restaurants, ainsi qu’un accès rapide à l’autoroute A86.

Au sein d’un immeuble récent de standing fin 2024, ce bien d’exception offre un cadre de vie privilégié, lumineux et contemporain.

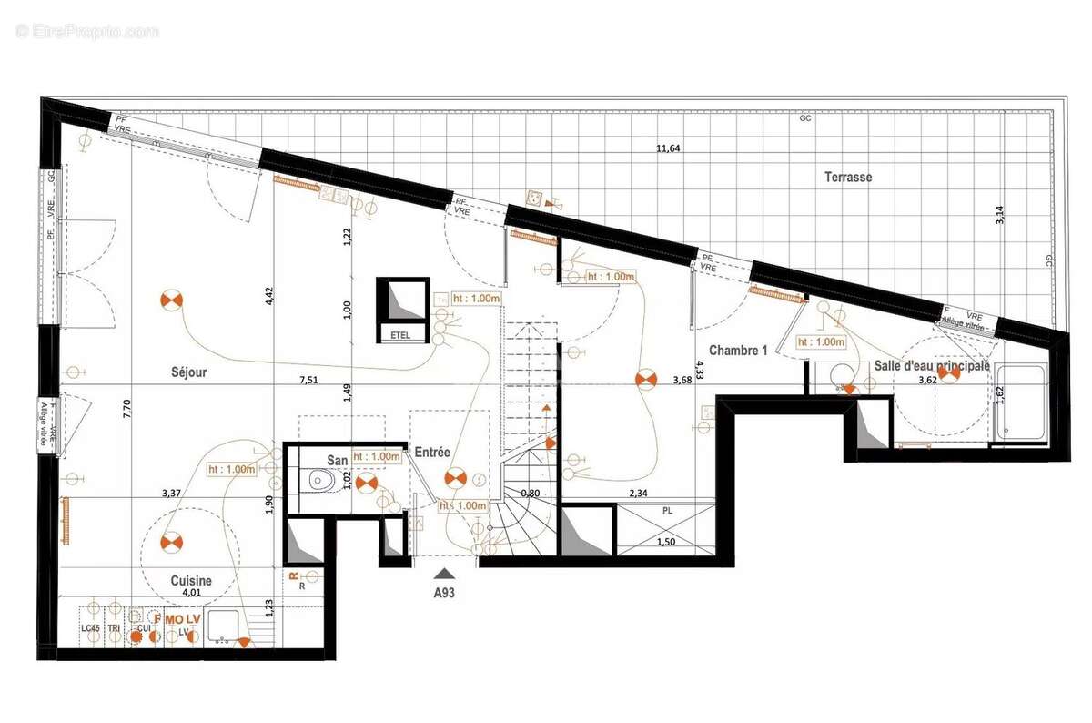
Développant une surface de 118,86 m2, l’appartement se déploie sur les 9ème et 10ème étages et séduit par ses volumes généreux, sa conception moderne et sa vue largement dégagée, prolongée par une magnifique terrasse exposée Sud-Ouest sans vis-à-vis.

Description du bien

Premier niveau (9ème étage)

Entrée élégante

WC séparé

Vaste séjour baigné de lumière grâce à son exposition Sud-Ouest

Cuisine ouverte sur l’espace de vie

Superbe terrasse de 23 m2, sans vis-à-vis, offrant une vue dégagée

Suite parentale avec salle d’eau privative

Deuxième niveau (10ème étage)

Trois chambres confortables

Salle de bains

Salle d’eau indépendante

Buanderie

Espace de rangement

WC séparé

Annexes

Place de parking sécurisée en sous-sol

Environnement et accessibilité

L’appartement bénéficie d’une situation idéale dans un nouvel éco-quartier en plein essor, offrant un cadre de vie agréable avec commerces de proximité, restaurants et services accessibles à pied.

La station de métro ligne 13 – Les Courtilles se situe à 2 minutes à pied, permettant de rejoindre facilement Paris et La Défense. L’autoroute A86 est également rapidement accessible.

Informations complémentaires

Prix de vente : 698 000 €

Immeuble récent (2024)

Dernier étage

Grande terrasse

Parking inclus

Un bien rare sur le marché, réunissant standing, luminosité, espace extérieur et excellente accessibilité.

Visites possibles dès à présent.
Voir plus

Référence: 86780831
DPE
A
B
C
D
E
F
G
GES
A
B
C
D
E
F
G
Appartement à ASNIERES-SUR-SEINE
Appartement à ASNIERES-SUR-SEINE
Appartement à ASNIERES-SUR-SEINE
Appartement à ASNIERES-SUR-SEINE
Appartement à ASNIERES-SUR-SEINE
Appartement à ASNIERES-SUR-SEINE
Appartement à ASNIERES-SUR-SEINE
Appartement à ASNIERES-SUR-SEINE
Appartement à ASNIERES-SUR-SEINE
Appartement à ASNIERES-SUR-SEINE
Appartement à ASNIERES-SUR-SEINE
Appartement à ASNIERES-SUR-SEINE
Appartement à ASNIERES-SUR-SEINE
Appartement à ASNIERES-SUR-SEINE
Appartement à ASNIERES-SUR-SEINE
Appartement à ASNIERES-SUR-SEINE
Appartement à ASNIERES-SUR-SEINE
Appartement à ASNIERES-SUR-SEINE
Appartement à ASNIERES-SUR-SEINE
Appartement à ASNIERES-SUR-SEINE
Appartement à ASNIERES-SUR-SEINE
Appartement à ASNIERES-SUR-SEINE
Appartement à ASNIERES-SUR-SEINE
Appartement à ASNIERES-SUR-SEINE
Géorisques

Les informations sur les risques auxquels ce bien est exposé sont disponibles sur le site Géorisques : www.georisques.gouv.fr

Ce site est protégé par hCaptcha Politique de confidentialité et Conditions d’utilisation s’appliquent.

En poursuivant votre navigation sans modifier vos paramètres, vous acceptez l'utilisation de cookies susceptibles de réaliser des statistiques de visite. Cliquez ici pour plus d'informations