Bénéficiez des services de nos partenaires locaux soigneusement sélectionnés
pour vous accompagner dans votre parcours d'achat immobilier

Voir tous les partenaires locaux

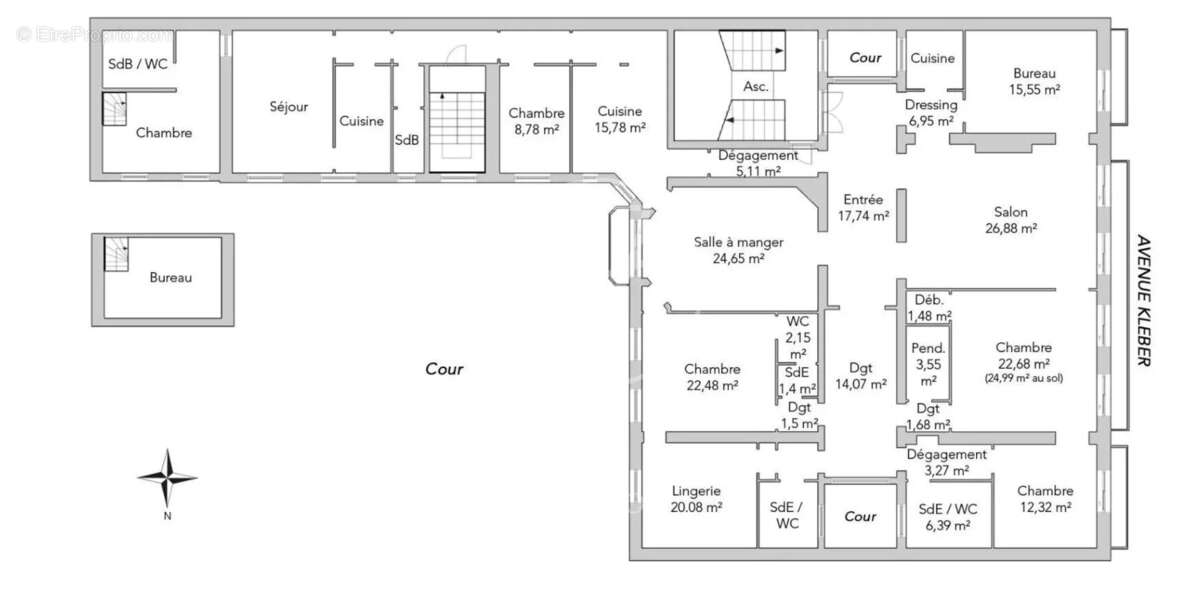
Paris 16e - KLEBER - Appartement à vendre - 8 pièces - 291,29m² Carrez - 6 chambres - Traversant - Hauteur sous plafond 3,60m.

— Paris-16e 75016 —
3 875 000 €
291 m²
8 pièces
balcon/terrasseascenseur

Nos partenaires locaux
Votre diagnostiqueur
Nous vous proposons différentes prestations : DPE , diagnostic amiante avant démolition, plomb , termites , gaz etc...
06 17 91 48 19 ou cliquez-ici
Votre déménageur local
Simplifiez vous la vie ! Déménagement, Monte-meuble, Vente de matériel et Débarras sur toute l'Ile de France !
01 44 90 02 18 ou cliquez-ici
Votre assurance emprunteur
Faites appel à Denis pour vous accompagner dans votre assurance de prêt
06 09 24 11 24 ou cliquez-ici
Votre staffeur ornemaniste
Faites confiance aux nombreuses années d'experiences de votre staffeur ornemaniste au service de vos projets !
06 28 48 12 03 ou cliquez-ici
Votre architecte local
Rénovation, création sur mesure et agrandissement : à vos cotés pour les professionnels & particuliers. Contact au :
06 80 55 27 16 ou cliquez-ici
Votre rénovation énergétique
Cozynergy réalise vos travaux de rénovation énergétique, clé en main et aides déduites. Simulez votre projet ici :
cliquez-ici

Voir tous les partenaires locaux

Au sein d'un sublime immeuble bâti en 1880 avec gardien, au deuxième étage par ascenseur, seul sur le palier, cet appartement de réception de 291,29m² loi Carrez s'adapte également à une vie de famille dans un cadre exceptionnel.
Traversant, il bénéficie de superbes volumes grâce à 3,60m de hauteur sous plafond et a conservé le charme de l'ancien: boiseries, moulures, cheminées et un parquet d'origine.

Son plan en étoile comporte une première galerie d'entrée desservant une réception sur rue exposée ouest, une salle à manger avec verrière, une cuisine dînatoire mitoyenne et un bureau.
La seconde partie du bien est composée de quatre belles chambres pouvant avoir chacune leur point d’eau et toilettes.
A la suite de la cuisine se raccorde une cinquième chambre (de service) avec salle de douche et toilette.

Un deux pièces de 50m² est proposé avec l'appartement sur le même palier.

Une rénovation est à prévoir. Elle permettra de rendre toute sa splendeur à ce lieu au cachet incontestable.

Possibilité d’acquérir en option un box en rez-de-chaussée ainsi qu’une place de parking pour 70.000€ et 50.000€ respectivement.

Trois cave viennent compléter cette offre rare.
Voir plus

Référence: 1905VHUVID
Barème des honoraires
DPE
A
B
C
D
E
F
G
GES
A
B
C
D
E
F
G
Appartement à PARIS-16E
Appartement à PARIS-16E
Appartement à PARIS-16E
Appartement à PARIS-16E
Appartement à PARIS-16E
Appartement à PARIS-16E
Appartement à PARIS-16E
Appartement à PARIS-16E
Appartement à PARIS-16E
Appartement à PARIS-16E
Appartement à PARIS-16E
Appartement à PARIS-16E
Appartement à PARIS-16E
Appartement à PARIS-16E
Appartement à PARIS-16E
Appartement à PARIS-16E
Appartement à PARIS-16E
Appartement à PARIS-16E
Appartement à PARIS-16E
Appartement à PARIS-16E
Appartement à PARIS-16E
Appartement à PARIS-16E
Appartement à PARIS-16E
Appartement à PARIS-16E
Appartement à PARIS-16E
Géorisques

Les informations sur les risques auxquels ce bien est exposé sont disponibles sur le site Géorisques : www.georisques.gouv.fr

Ce site est protégé par hCaptcha Politique de confidentialité et Conditions d’utilisation s’appliquent.

En poursuivant votre navigation sans modifier vos paramètres, vous acceptez l'utilisation de cookies susceptibles de réaliser des statistiques de visite. Cliquez ici pour plus d'informations