Magnifique Rez de jardin sans vis-à-vis - Truchtersheim

— Truchtersheim 67370 —
362 598 €
88 m²
4 pièces
parkingbalcon/terrasse

OUARTIMMO vous propose à la vente ce superbe appartement en rez-de-jardin, situé en bordure de champs, sans vis-à-vis, offrant un cadre de vie particulièrement recherché.

Nichée au cœur de la campagne alsacienne, la commune de Truchtersheim séduit par son charme authentique, son environnement paisible et sa qualité de vie remarquable.

Ce village dynamique bénéficie d’un cadre verdoyant et apaisant, idéal pour les familles comme pour ceux qui souhaitent profiter d’un quotidien serein, loin de l’agitation urbaine.

Son emplacement stratégique, à seulement quelques minutes de Strasbourg et parfaitement relié aux grands axes, permet de profiter de toutes les commodités tout en conservant l’esprit convivial d’un village moderne et accueillant.

Un lieu où calme, confort et praticité se conjuguent harmonieusement.

Agencement :
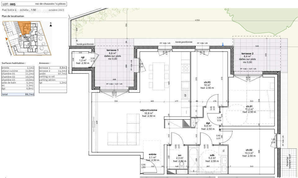
Surface habitable de 88,2 m2
4 pièces / 3 chambres avec parquet stratifié
Salle de bains carrelée et équipée
WC séparé et suspendu
Spacieux séjour de 33 m2 avec accès direct à la terrasse de 10,3 m2
Peinture lisse sur les murs

Informations complémentaires :
1 place de stationnement extérieure
2 places de stationnement en sous-sol
Chauffage au sol
Chaudière collective au gaz
Volets roulants motorisés
Ascenseur
Local vélo fermé
Résidence sécurisée
Dernières normes énergétiques et phoniques

Prix : 362 598 € FAI
(Honoraires à la charge du vendeur)

Pour plus de renseignements, contactez sans hésiter :
Baptiste STEINBACH O7 68 88 81 81

OUARTIMMO
Au départ de vos projets !

Les informations sur les risques auxquels ce bien est exposé sont disponibles sur : www.georisques.gouv.fr

Copropriété de 16 lots pas de procédure en cours.
Voir plus

Honoraires à la charge du vendeur.
Barème des honoraires
DPE
A
B
C
D
E
F
G
GES
A
B
C
D
E
F
G
Appartement à TRUCHTERSHEIM
Appartement à TRUCHTERSHEIM
Appartement à TRUCHTERSHEIM
Appartement à TRUCHTERSHEIM
Appartement à TRUCHTERSHEIM
Appartement à TRUCHTERSHEIM
Appartement à TRUCHTERSHEIM
Géorisques

Les informations sur les risques auxquels ce bien est exposé sont disponibles sur le site Géorisques : www.georisques.gouv.fr

Ce site est protégé par hCaptcha Politique de confidentialité et Conditions d’utilisation s’appliquent.

En poursuivant votre navigation sans modifier vos paramètres, vous acceptez l'utilisation de cookies susceptibles de réaliser des statistiques de visite. Cliquez ici pour plus d'informations