3 pièces avec balcon - Bord des champs - Truchtersheim

— Truchtersheim 67370 —
294 754 €
67 m²
3 pièces
parkingbalcon/terrasse

OUARTIMMO vous propose à la vente ce superbe appartement 3 pièces avec balcon, situé au 1er étage d’une résidence moderne, sans vis-à-vis et offrant une vue dégagée sur les champs.

Nichée au cœur de la campagne alsacienne, la commune de Truchtersheim séduit par son cadre de vie privilégié, alliant tranquillité, charme et confort moderne.

Ce village dynamique est particulièrement apprécié pour son environnement verdoyant et apaisant, idéal pour les familles comme pour celles et ceux qui souhaitent profiter d’un quotidien serein.

À seulement quelques minutes de Strasbourg et parfaitement desservie par les principaux axes routiers, la commune permet de bénéficier de toutes les commodités tout en conservant l’esprit convivial et authentique d’un village.

Un emplacement privilégié où qualité de vie et praticité se rencontrent.

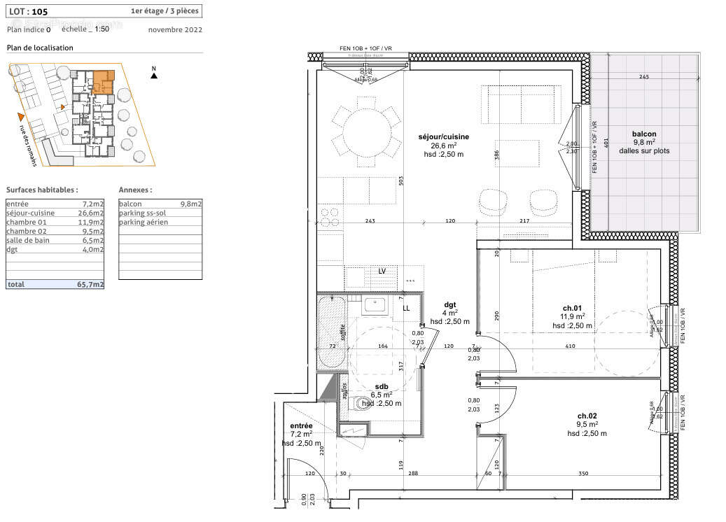
Agencement :
Surface habitable de 67,6 m2
3 pièces / 2 chambres avec parquet stratifié
Salle de bains carrelée et équipée
WC suspendu
Belle pièce de vie lumineuse avec cuisine ouverte
Peinture lisse sur les murs
Balcon de 7,7 m2 offrant une vue dégagée sur les champs

Informations complémentaires :
1 place de stationnement extérieure
1 place de stationnement en sous-sol
Chauffage au sol
Chaudière collective au gaz
Volets roulants motorisés
Ascenseur
Local vélo fermé
Résidence sécurisée
Construction répondant aux dernières normes énergétiques et acoustiques

Prix : 294 754 € FAI (Honoraires à la charge du vendeur)

Pour plus de renseignements, contactez sans hésiter :
Caroline HERREL O7 63 92 57 4O

OUARTIMMO
Au départ de vos projets !



Les informations sur les risques auxquels ce bien est exposé sont disponibles sur le site : www.georisques.gouv.fr
Copropriété 16 lots : pas de procédure en cours.
Voir plus

Honoraires à la charge du vendeur.
Barème des honoraires
DPE
A
B
C
D
E
F
G
GES
A
B
C
D
E
F
G
Appartement à TRUCHTERSHEIM
Appartement à TRUCHTERSHEIM
Appartement à TRUCHTERSHEIM
Appartement à TRUCHTERSHEIM
Appartement à TRUCHTERSHEIM
Appartement à TRUCHTERSHEIM
Appartement à TRUCHTERSHEIM
Géorisques

Les informations sur les risques auxquels ce bien est exposé sont disponibles sur le site Géorisques : www.georisques.gouv.fr

Ce site est protégé par hCaptcha Politique de confidentialité et Conditions d’utilisation s’appliquent.

En poursuivant votre navigation sans modifier vos paramètres, vous acceptez l'utilisation de cookies susceptibles de réaliser des statistiques de visite. Cliquez ici pour plus d'informations