Bénéficiez des services de nos partenaires locaux soigneusement sélectionnés
pour vous accompagner dans votre parcours d'achat immobilier

Immeuble de rapport à rénover

— Fontainebleau 77300 —
775 000 €
268 m²

Nos partenaires locaux
Situé Place de l’Étape, en plein cœur de Fontainebleau, cet immeuble de caractère à usage mixte habitation et commercial bénéficie d’un emplacement premium au sein d’un secteur commerçant très recherché.
Il développe une superficie totale d’environ 268 m2 et offre un fort potentiel de valorisation grâce à un projet de transformation déjà validé.
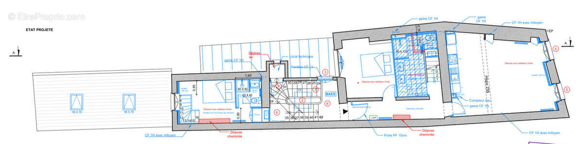
Le bien : Immeuble mixte habitation / commerce. Cave voûtée. Grenier aménageable d’environ 31 m2 carrez. Beaux volumes et hauteurs sous plafond.
Partie habitation (actuelle), environ 173 m2:
- Rez-de-chaussée : entrée indépendante desservant les étages. Local poubelles
- 1er étage : cuisine, deux bureaux, entrée et couloir.
- 2e étage : deux bureaux, entrée / couloir, débarras, WC.
Grenier au-dessus. Cave voûtée en sous-sol
Projet immobilier validé avec Déclaration Préalable accordée en janvier 2025 pour la création de 3 logements :
F2 en duplex (1er / 2e étage) environ 22,63 m2. + F2 (1er étage) environ 55,40 m2. + F4 en duplex (2e / 3e étage) environ 86,80 m2.
Étude d’aménagement et chiffrage des travaux disponibles.
Commerce en place, environ 95 m2 loué depuis 18 ans.
Cette annonce vous est proposée par CLAIRAY Catherine - EI - NoRSAC: 891 199 093, Enregistré au Greffe du tribunal de commerce de MELUN Les informations sur les risques auxquels ce bien est exposé sont disponibles sur le site Géorisques : www.georisques.gouv.fr
Voir plus

Référence: 3118
Honoraires à la charge du vendeur.
Barème des honoraires
DPE
A
B
C
D
E
F
G
GES
A
B
C
D
E
F
G
Appartement à FONTAINEBLEAU
Appartement à FONTAINEBLEAU
Appartement à FONTAINEBLEAU
Appartement à FONTAINEBLEAU
Appartement à FONTAINEBLEAU
Appartement à FONTAINEBLEAU
Appartement à FONTAINEBLEAU
Appartement à FONTAINEBLEAU
Appartement à FONTAINEBLEAU
Appartement à FONTAINEBLEAU
Appartement à FONTAINEBLEAU
Géorisques

Les informations sur les risques auxquels ce bien est exposé sont disponibles sur le site Géorisques : www.georisques.gouv.fr

Ce site est protégé par hCaptcha Politique de confidentialité et Conditions d’utilisation s’appliquent.

En poursuivant votre navigation sans modifier vos paramètres, vous acceptez l'utilisation de cookies susceptibles de réaliser des statistiques de visite. Cliquez ici pour plus d'informations