Bénéficiez des services de nos partenaires locaux soigneusement sélectionnés
pour vous accompagner dans votre parcours d'achat immobilier

Paris 17e - Jonquière - Guy Moquet - Comme une maison - Trois pièces en triplex -

— Paris-17e 75017 —
1 045 000 €
92 m²
3 pièces

Nos partenaires locaux
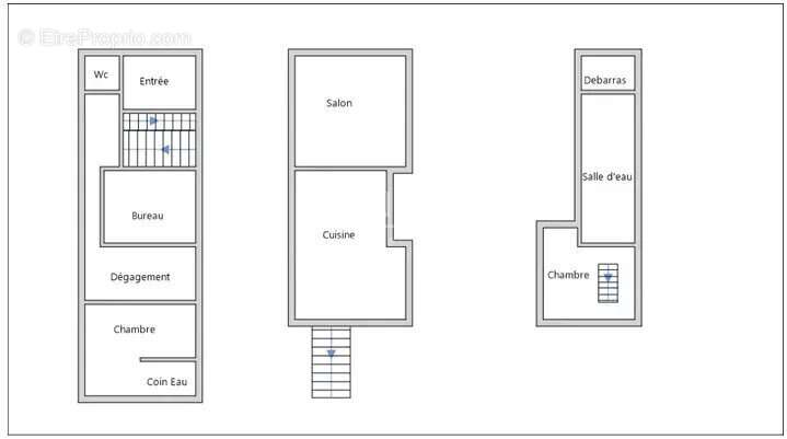
Nous vous proposons , au sein d'un immeuble de 1901 bien entretenu et d’une copropriété pittoresque, un superbe triplex (2 chambres + bureau) de 92,35 m² loi Carrez (95.58 m² au sol) - comme une maison au bout d’une allée préservée - alliant charme de l’ancien (parquet massif et poutres d'origine), modernité et discrétion absolue.
Cette ancienne menuiserie (1901) entièrement rénovée avec de nobles matériaux, au calme et sans vis-à-vis et bénéficiant de bonnes performances énergétiques (DPE D) se compose au rez-de-chaussée d’une entrée desservant une chambre avec salle d’eau privative, un bureau et des toilettes indépendantes.
Le premier étage offre un bel espace de vie (30 m²) avec cuisine équipée et dinatoire ouverte sur un salon aux volumes généreux (4 mètres de hauteur sous plafond), lumineux et confortable.
Enfin, le sous-sol accessible par un large escalier accueille un second espace nuit, une salle d’eau et une buanderie.
Ce bien de qualité plaira aux amateurs du quartier en recherche d’un lieu de vie privilégié en parfait état et à l’esthétique raffinée.

Mandat Exclusif

INFORMATIONS LOI ALUR:
Bien soumis au statut de la copropriété. 56 lots principaux. Montant moyen annuel de la quote-part de charges courantes : 3000 Euros. Aucune procédure en cours menée sur le fondement des articles 29-1 A et 29-1 de la loi n°65.557 du 10 juillet 1965 et de l'article L.615-6 du CCH. Honoraires à la charge du mandant.
DPE : D (206 kWh/m²/an) GES : D (44 KgCO2/m²/an).
Montant estimé des dépenses annuelles d'énergie pour un usage standard : 1780 euros et 2440 euros par an (prix moyens des énergies indexés au 1er janvier 2021, 2022 et 2023 abonnement compris).
Les informations sur les risques auxquels ce bien est exposé sont disponibles sur le site Géorisques.
Voir plus

Référence: 86664797
Barème des honoraires
DPE
A
B
C
D
E
F
G
GES
A
B
C
D
E
F
G
Appartement à PARIS-17E
Appartement à PARIS-17E
Appartement à PARIS-17E
Appartement à PARIS-17E
Appartement à PARIS-17E
Appartement à PARIS-17E
Appartement à PARIS-17E
Appartement à PARIS-17E
Appartement à PARIS-17E
Appartement à PARIS-17E
Appartement à PARIS-17E
Appartement à PARIS-17E
Géorisques

Les informations sur les risques auxquels ce bien est exposé sont disponibles sur le site Géorisques : www.georisques.gouv.fr

Ce site est protégé par hCaptcha Politique de confidentialité et Conditions d’utilisation s’appliquent.

En poursuivant votre navigation sans modifier vos paramètres, vous acceptez l'utilisation de cookies susceptibles de réaliser des statistiques de visite. Cliquez ici pour plus d'informations