Appartement Type 4 - Le Floréal

— Sassenage 38360 —
155 000 €
69 m²
4 pièces
ascenseur

En Exclusivité – Appartement lumineux avec vue dégagée

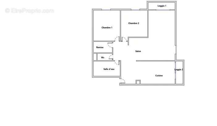
Situé au 6ᵉ étage avec ascenseur d’une copropriété familiale, sécurisée et parfaitement entretenue, cet appartement Type 4 de 69,85 m² (Loi Carrez) saura vous séduire par sa luminosité, sa vue dégagée et la qualité de sa rénovation récente.

Les atouts du bien :

• Isolation intérieure réalisée, améliorant le confort thermique et énergétique du logement
• Climatisation réversible, idéale pour un confort optimal été comme hiver
• Menuiseries double vitrage avec volets roulants électriques
• Balcon exposé Sud-Est, offrant une belle luminosité et un espace extérieur agréable
• Double séjour spacieux de 32 m², permettant facilement l’aménagement d’une troisième chambre
• Cave privative
• Local à vélos collectif dans la copropriété
• Garage disponible en option

Distribution :

L’appartement se compose de :

• Une entrée avec placard intégré
• Un double séjour lumineux de 32 m², ouvrant sur le balcon exposé Sud-Est, idéal pour un espace détente ou un coin bureau
• Une cuisine indépendante équipée, avec loggia / buanderie
• Deux chambres avec placards (possibilité de créer une troisième chambre)
• Une salle d’eau moderne
• Un WC indépendant

Un cadre de vie pratique et agréable :

• Écoles (maternelle, primaire, collège et lycée professionnel) accessibles à moins de 5 minutes à pied
• Transports en commun (lignes 19 et 20) à proximité avec liaison directe vers le Lycée Aristide Bergès
• Commerces et professionnels de santé à proximité immédiate

Informations financières :

• Taxe foncière 2025 : 1 626 €
• Charges de copropriété : 710 € / trimestre (incluant chauffage, eau chaude et cuisson)
• Zone non soumise à l’encadrement des loyers
Voir plus

Référence: 86207603
Barème des honoraires
DPE
A
B
C
D
E
F
G
GES
A
B
C
D
E
F
G
Appartement à SASSENAGE
Appartement à SASSENAGE
Appartement à SASSENAGE
Appartement à SASSENAGE
Appartement à SASSENAGE
Appartement à SASSENAGE
Appartement à SASSENAGE
Appartement à SASSENAGE
Appartement à SASSENAGE
Appartement à SASSENAGE
Appartement à SASSENAGE
Géorisques

Les informations sur les risques auxquels ce bien est exposé sont disponibles sur le site Géorisques : www.georisques.gouv.fr

Ce site est protégé par hCaptcha Politique de confidentialité et Conditions d’utilisation s’appliquent.

En poursuivant votre navigation sans modifier vos paramètres, vous acceptez l'utilisation de cookies susceptibles de réaliser des statistiques de visite. Cliquez ici pour plus d'informations