Bénéficiez des services de nos partenaires locaux soigneusement sélectionnés
pour vous accompagner dans votre parcours d'achat immobilier

en exclusivité: Maison de village 84 m²

— Vendargues 34740 —
230 000 €
83 m² / 124 m²
4 pièces

Nos partenaires locaux
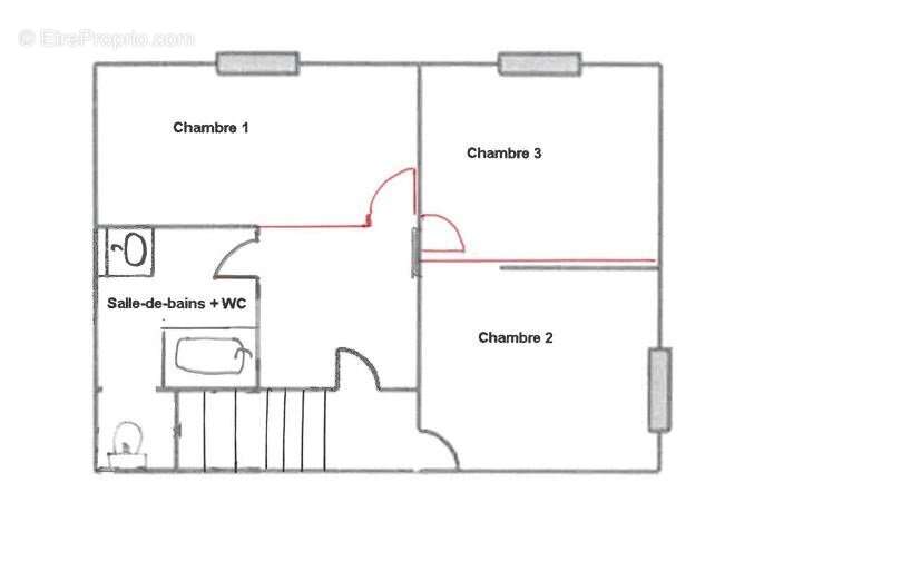
EXCLUSIVITE: Charmante maison de village d'environ 84 m² habitable avec une cour d'environ 26 m² et une remise de 25 m² au sol ! Elle se compose au rez-de-chaussée d'une pièce faisant office de cuisine salle-à-manger, un salon, à l'étage une première chambre d'appoint traversante pour un accès à une seconde chambre, une troisième chambre en partie traversante pour accéder à la salle-de-bains et toilettes. Moyennant une ouverture et 2 cloisons, vous obtiendrez 3 chambres non traversantes d'environ 13 m², 10 m² et 9 m². Concernant la remise, il est nécessaire de refaire la toiture et une consolidation évaluée à 12 100 €, une cuve à vin d'environ 13 m² est présente. Des ouvertures sur 2 niveaux ont été condamné, il est possible de transformer la remise en un logement d'environ 50 m² avec un étage. Idéal pour stocker, un 2ième logement, des revenus locatifs, une profession libérale ! Côté prestations: fenêtre double vitrage PVC, chauffage gaz à inertie, tableau électrique refait en 2023. Côté environnement: dans une impasse au calme, à 2 pas du coeur du village et de ces commodités. Charge vendeur
Voir plus

Référence: 690
Honoraires à la charge du vendeur.
Barème des honoraires
DPE
A
B
C
D
E
F
G
GES
A
B
C
D
E
F
G
Maison à VENDARGUES
Maison à VENDARGUES
Maison à VENDARGUES
Maison à VENDARGUES
Maison à VENDARGUES
Maison à VENDARGUES
Maison à VENDARGUES
Maison à VENDARGUES
Maison à VENDARGUES
Géorisques

Les informations sur les risques auxquels ce bien est exposé sont disponibles sur le site Géorisques : www.georisques.gouv.fr

Ce site est protégé par hCaptcha Politique de confidentialité et Conditions d’utilisation s’appliquent.

En poursuivant votre navigation sans modifier vos paramètres, vous acceptez l'utilisation de cookies susceptibles de réaliser des statistiques de visite. Cliquez ici pour plus d'informations