Bénéficiez des services de nos partenaires locaux soigneusement sélectionnés
pour vous accompagner dans votre parcours d'achat immobilier

Vente Appartement Asnieres-sur-seine(92600) 434 000ᅵ

— Asnieres-Sur-Seine 92600 —
434 000 €
66 m²
3 pièces

Nos partenaires locaux
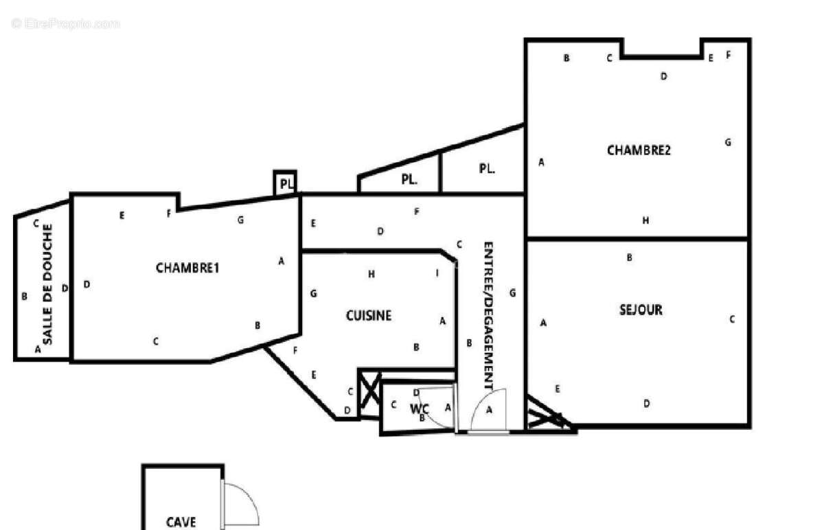
Coup de coeur- belles prestations - clair - charme de l ancien coup de coeur de l equipe chez arthurimmo asniÈres lgc 13 conseils - comÈte/ mairie vous serez seduits a coup sur par les nombreux atouts de ce 3 pièces de 66.22m² au 3ème étage : très belles prestations , excellent dpe (d) rare , traversant , charme de l ancien ( belle hauteur sous plafond /cheminées/parquet chêne) , clair ,expo sud ouest pour le sejour et donc très clair , modularite, immeuble dont le ravalement vient d'être refait( magnifique !) il est composé d'une entrée avec dressing , séjour /2 chambres de belle taille ( plus de 13m²) ou salon séjour car cloison ouvrable pour en faire une pièce de vie de 27m² et 1 chambre , cuisine séparée de belle facture , wc séparé, salle d'eau avec fenêtre les charges de 145 euros par mois et comprennent l'eau froide, l'entretien des parties communes, sortie poubelles , syndic notamment ... le chauffage et la production d'eau via chaudière gaz à condensation qui vient d être changée et avec thermostat d'ambiance une cave complète ce bien ainsi qu un local vélo à la disposition des occupants les écoles publiques rattachées sont recherchées ( fontaine /mauriceau/truffaut) les transports sont proches ( gabriel péri ligne 13 est à 900 m , gare d'asnières 750 m , bus à à toute proximité ) comme les commerces arthurimmo lgc xiii conseils sera ravi de vous accompagner pour vous faire decouvrir votre futur chez vous !!!
Voir plus

Référence: 86379930E
DPE
A
B
C
D
E
F
G
GES
A
B
C
D
E
F
G
Appartement à ASNIERES-SUR-SEINE
Appartement à ASNIERES-SUR-SEINE
Appartement à ASNIERES-SUR-SEINE
Appartement à ASNIERES-SUR-SEINE
Appartement à ASNIERES-SUR-SEINE
Appartement à ASNIERES-SUR-SEINE
Appartement à ASNIERES-SUR-SEINE
Appartement à ASNIERES-SUR-SEINE
Appartement à ASNIERES-SUR-SEINE
Appartement à ASNIERES-SUR-SEINE
Géorisques

Les informations sur les risques auxquels ce bien est exposé sont disponibles sur le site Géorisques : www.georisques.gouv.fr

Ce site est protégé par hCaptcha Politique de confidentialité et Conditions d’utilisation s’appliquent.

En poursuivant votre navigation sans modifier vos paramètres, vous acceptez l'utilisation de cookies susceptibles de réaliser des statistiques de visite. Cliquez ici pour plus d'informations