Maison 49 m² à Saint-Pierre-Quiberon

— Saint-Pierre-Quiberon 56510 —
315 300 €
49 m²
3 pièces
accès handicapé

L'agence 'MON BIEN A LA MER', spécialiste de l'immobilier neuf sur les Côtes Bretonnes, sélectionne auprès des promoteurs les meilleures opérations aux mêmes prix, sans commission d'agence. Bénéficiez de notre expertise indépendante, et de nos services (aide aux plans, maquette, drone, visite virtuelles). Nous vous présentons ce bien :

Rare : dans un éco-lotissement à 200m de la Plage, venez poser vos valises pour habiter ou investir.
Projet de construction d'un pavillon bois de plain pied sur terrain 370m2.
Cadre exceptionnel, résidentiel, nature et calme.

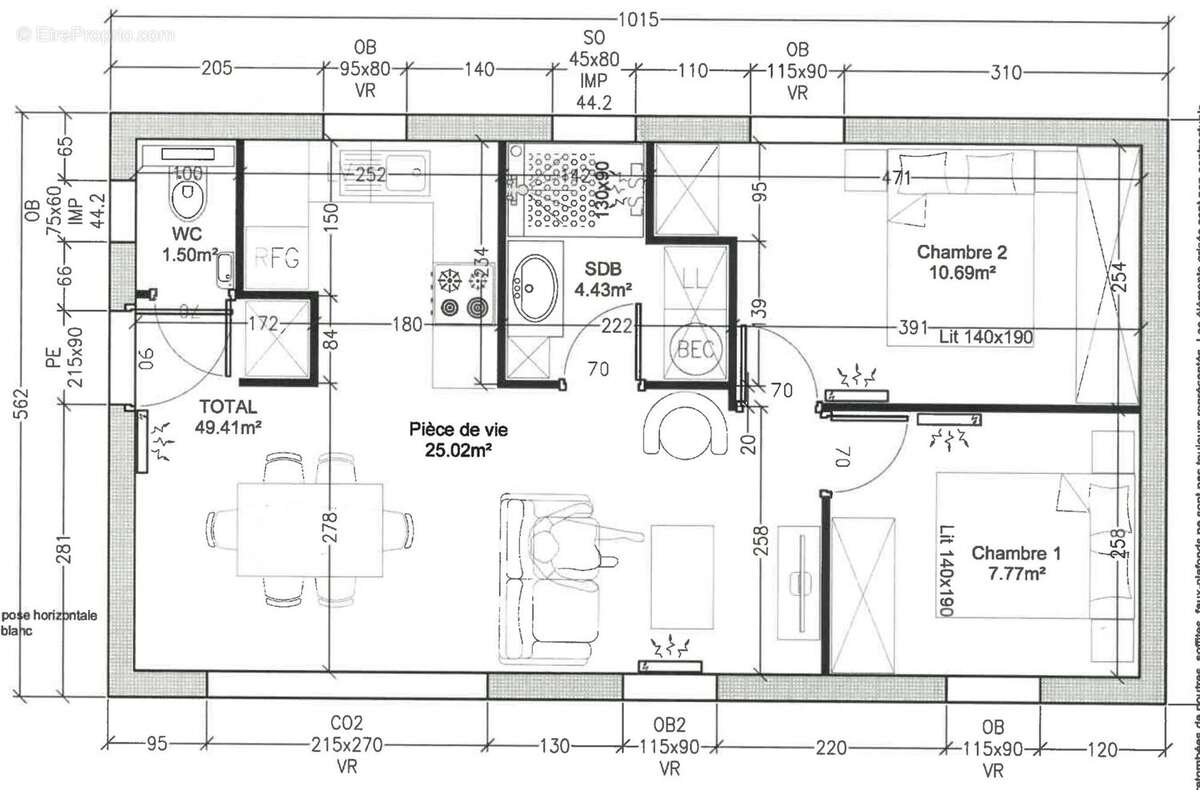
Mieux qu'un appartement : Projet incluant le terrain viabilisé (182300 euros), et la construction d'un pavillon aux dernières normes d'isolation T3 (133000 euros). Maison en bois avec pompe à chaleur comprenant un séjour de 25m2, salle d'eaux, wc séparé et 2 chambres. hors branchements et frais de notaire.

Possibilité de pavillon sur mesure (sans dépasser 70m2, et uniquement en bois) et libre choix constructeur.

Nous Consulter.

Non soumis au DPE. Les informations sur les risques auxquels ce bien est exposé sont disponibles sur le site Géorisques : georisques.gouv.fr.

Votre conseiller MON BIEN A LA MER : Gérant - .fr MON BIEN A LA MER
Carte T CPI 22[Coordonnées masquées]25 040
RCP ACM IARD B1 7025278
Voir plus

Référence: VM1625-BIENALAMER
Honoraires à la charge de l'acquéreur.
Barème des honoraires
Maison à SAINT-PIERRE-QUIBERON
Maison à SAINT-PIERRE-QUIBERON
Maison à SAINT-PIERRE-QUIBERON
Maison à SAINT-PIERRE-QUIBERON
Maison à SAINT-PIERRE-QUIBERON
Maison à SAINT-PIERRE-QUIBERON
Maison à SAINT-PIERRE-QUIBERON
Maison à SAINT-PIERRE-QUIBERON
Maison à SAINT-PIERRE-QUIBERON
Géorisques

Les informations sur les risques auxquels ce bien est exposé sont disponibles sur le site Géorisques : www.georisques.gouv.fr

Ce site est protégé par hCaptcha Politique de confidentialité et Conditions d’utilisation s’appliquent.

En poursuivant votre navigation sans modifier vos paramètres, vous acceptez l'utilisation de cookies susceptibles de réaliser des statistiques de visite. Cliquez ici pour plus d'informations