Bénéficiez des services de nos partenaires locaux soigneusement sélectionnés
pour vous accompagner dans votre parcours d'achat immobilier

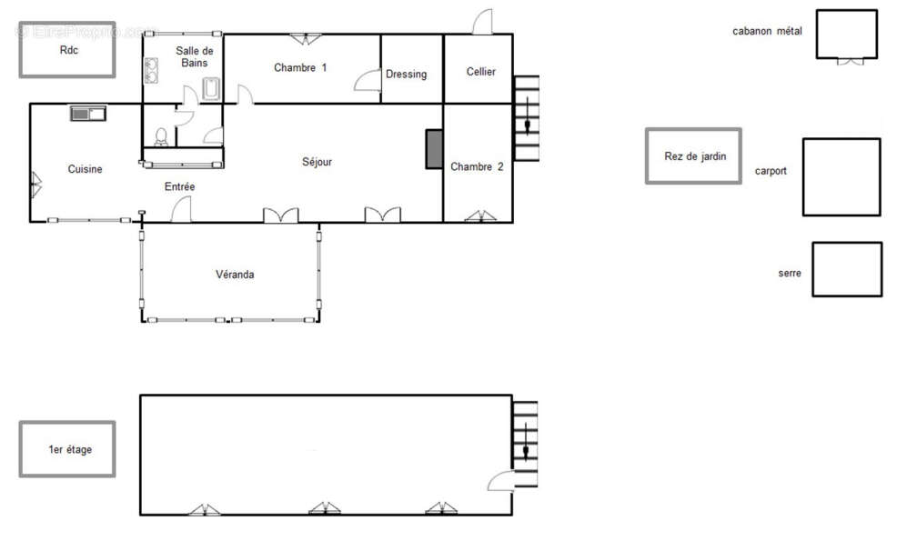
Maison St Germain Sur Avre (27320), 5 pièce(s) 121 m2, véranda, carport, abris de jardin, terrain d'environ 1699 m². Prix HAI 22

— Saint-Germain-Sur-Avre 27320 —
223 500 €
121 m² / 1 699 m²
5 pièces
parkingbalcon/terrassejardin

Nos partenaires locaux
Cette jolie maison se situe à Saint Germain sur Avre agréable commune recherchée avec son environnement verdoyant bordé de rivières, offrant de belles perspectives de balades en famille, proche des commodités, écoles primaires, (ramassage scolaire pour le Collège et le Lycée), axe RN12 en moins de 5 mins.
La tranquillité à 1h10 de Paris, 25 mins d'Évreux et 15 minutes de la Gare de Dreux.
Elle se compose au RDC d'une belle véranda offrant un panorama sur le terrain joliment agrémenté, d'une entrée avec penderie, une cuisine dînatoire aménagée et équipée très lumineuse avec sa grande baie vitrée, un salon/séjour avec cheminée/insert, 1 grande chambre avec une pièce dressing, 1 chambre avec dressing, salle de bain avec douche très lumineuse, WC indépendant, espace buanderie, un étage composé de 4 espaces dont un avec WC et lave main avec un accès indépendant et d'un cellier. Une possibilité de créer une 3ème chambre au RDC .
Le tout sur un joli terrain clos d'environ 1699m² avec portail motorisé, fleuri et arboré, agrémenté d'un carport, d'un abri de jardin et d'une terrasse.
Fenêtres PVC double vitrage et volets bois, chauffage électrique et bois, tout à l'égout, VMC et maison raccordé à la fibre.
Venez visiter sans plus tarder
PRIX : 223 500 euros dont 3.95% d'honoraires inclus à la charge de l'acquéreur (soit 8 500 euros), soir 215 000 euros hors honoraires.
DPE E GES B
Montant estimé des dépenses annuelles d'énergie pour un usage standard entre 2070 euros et 2850 euros indexées aux années 2021, 2022 et 2023 (ou 2021 uniquement) (si logement F ou G 'Logement à consommation énergétique excessive : classe F ou G')
Les informations sur les risques auxquels ce bien est exposé sont disponibles sur le site Géorisques : www.georisques.gouv.fr
Pour visiter et vous accompagner dans votre projet, contactez Marie Julie MAINI au [Coordonnées masquées] ou, par courriel à [Coordonnées masquées] agissant sous le statut d'agent commercial RSAC Evreux 487624777, RC Pro GALIAN N°127100479.
Selon l'article L.561.5 du Code Monétaire et Financier, pour l'organisation de la visite, la présentation d'une pièce d'identité vous sera demandée.
Cette présente annonce a été rédigée sous la responsabilité éditoriale de Marie Julie MAINI agissant sous le statut d'agent commercial immatriculé au RSAC 487624777 RSAC Evreux RC auprès de SAS PROPRIETES PRIVEES, au capital de 44 920 euros, ZAC LE CHÊNE FERRÉ - 44 ALLÉE DES CINQ CONTINENTS 44120 VERTOU; SIRET 487 624 777 00040, RCS Nantes. Carte Professionnelle Transactions sur immeubles et fonds de commerce (T) et Gestion immobilière (G) n°CPI 44[Coordonnées masquées]10 388 délivrée par la CCI Nantes - Saint Nazaire. Compte séquestre n°3[Coordonnées masquées] BPA SAINT-SEBASTIEN-SUR-LOIRE (44230). Garantie GALIAN-SMABTP - 89 rue de la Boétie, 75008 Paris - n°28137 J pour 2 000 000 euros pour T et 120 000 euros pour G. Assurance responsabilité civile professionnelle par GALIAN-SMABTP n° de police 28137.J

Mandat réf : 426091MJM- Le professionnel garantit et sécurise votre projet immobilier. (3.95% honoraires TTC à la charge de l'acquéreur.)

(3.95 % honoraires TTC à la charge de l'acquéreur.)

Marie-Julie MAINI (EI) Agent Commercial - Numéro RSAC : EVREUX 829 322 866 - .
Voir plus

Référence: 426091MMJ
Honoraires d'agence de 3.95% à la charge de l'acquéreur
DPE
A
B
C
D
E
F
G
GES
A
B
C
D
E
F
G
Maison à SAINT-GERMAIN-SUR-AVRE
Maison à SAINT-GERMAIN-SUR-AVRE
Maison à SAINT-GERMAIN-SUR-AVRE
Maison à SAINT-GERMAIN-SUR-AVRE
Maison à SAINT-GERMAIN-SUR-AVRE
Maison à SAINT-GERMAIN-SUR-AVRE
Maison à SAINT-GERMAIN-SUR-AVRE
Maison à SAINT-GERMAIN-SUR-AVRE
Maison à SAINT-GERMAIN-SUR-AVRE
Maison à SAINT-GERMAIN-SUR-AVRE
Maison à SAINT-GERMAIN-SUR-AVRE
Maison à SAINT-GERMAIN-SUR-AVRE
Maison à SAINT-GERMAIN-SUR-AVRE
Maison à SAINT-GERMAIN-SUR-AVRE
Géorisques

Les informations sur les risques auxquels ce bien est exposé sont disponibles sur le site Géorisques : www.georisques.gouv.fr

Ce site est protégé par hCaptcha Politique de confidentialité et Conditions d’utilisation s’appliquent.

En poursuivant votre navigation sans modifier vos paramètres, vous acceptez l'utilisation de cookies susceptibles de réaliser des statistiques de visite. Cliquez ici pour plus d'informations