Magique Relais de Poste rénové du XIVe siècle

— La Souterraine 23300 —
397 950 €
1 055 m² / 28 565 m²
12 pièces
parkingjardinaccès handicapé

Devenez le prochain gardien d'un Relais de Poste / Manoir du 14e siècle. Remontez le temps et pénétrez dans une propriété très particulière qui a abrité les mousquetaires du roi, le premier maire d'Arnac et bien d'autres membres notables de la société française.

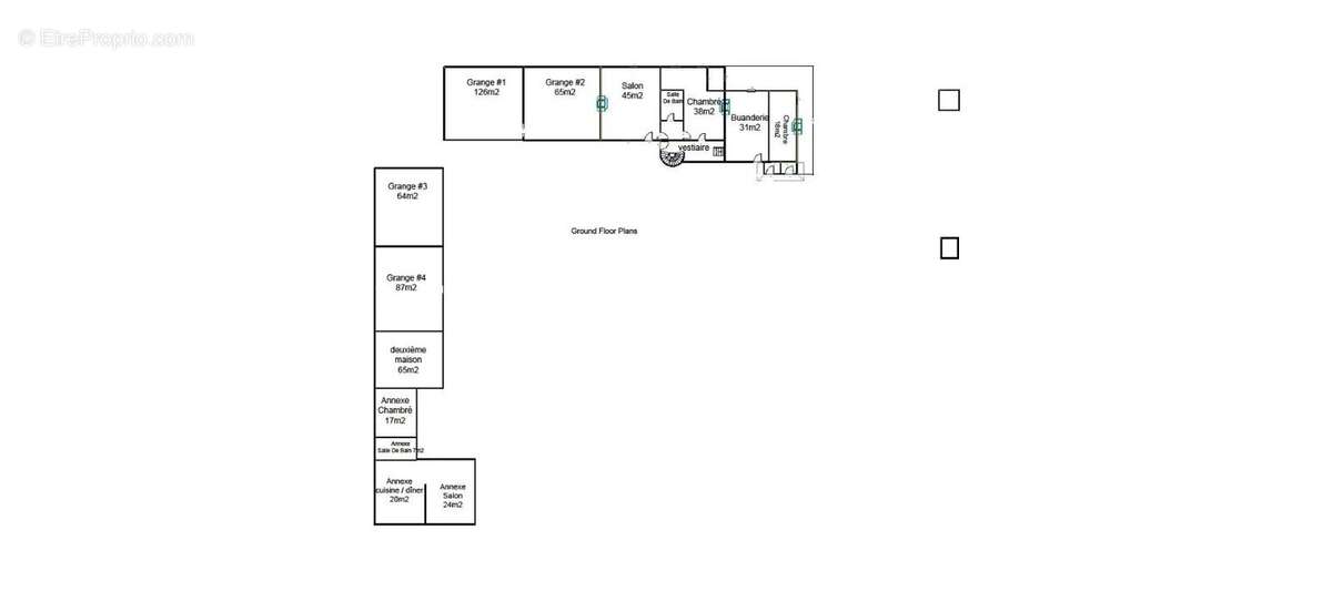
Ce relais de poste médiéval témoigne de plus de 700 ans d'histoire captivante du Limousin. Sur les quatre tours médiévales d'origine, une seule est encore debout et abrite l'escalier en colimaçon d'origine. Le bâtiment principal du château a été soigneusement rénové, préservant les éléments historiques tout en le transformant en une superbe maison familiale et offrant la possibilité d'y créer un gîte ou une chambre d'hôtes (sous réserve des autorisations nécessaires).

En plus d'une cuisine ouverte et d'une salle à manger au rez-de-chaussée, le château compte actuellement quatre appartements raffinés. Pouvant accueillir jusqu'à 12 personnes, chaque unité est conçue avec une kitchenette, un coin repas et salon, une chambre et une salle de bains privative, ce qui rend la propriété parfaite pour une grande famille ou une chambre d'hôtes (sous réserve des autorisations nécessaires).

L'annexe séparée comprend une cuisine, un salon, une chambre et une salle de bains, récemment rénovée en 2026. Ce bel espace dispose de sa propre cour et d'un accès au vaste jardin.

Avec une deuxième maison à rénover , une cuisine d'été et de nombreuses granges, le potentiel de développement est énorme . La vue depuis le château s'étend sur la cour centrale, les jardins, les bosquets, les champs et un lac caché. Les vestiges de deux anciennes tours, rasées au XVIe siècle, se trouvent au bord du lac et pourraient être transformés en suites romantiques pour une lune de miel ou servir de cadre raffiné à une charmante piscine.

Une nouvelle fosse septique de 5 000 litres a été installée en 2021.

Cette propriété témoigne véritablement de l'amour, du savoir-faire et des souvenirs investis par ses propriétaires actuels, qui ont joué un rôle important dans son héritage. Êtes-vous la prochaine personne exceptionnelle prête à saisir cette opportunité extraordinaire et à poursuivre l'histoire de ce château ? Présenté dans une émission de Channel 4 sur l'immobilier français - plus de détails disponibles lors d'une visite.

Prix honoraires inclus : 397 950 €
Prix honoraires exclus : 379 000 €
Honoraires de 5% TTC à charge acquéreur
Voir plus

Référence: BVI0078062
Maison à LA SOUTERRAINE
Maison à LA SOUTERRAINE
Maison à LA SOUTERRAINE
Maison à LA SOUTERRAINE
Maison à LA SOUTERRAINE
Maison à LA SOUTERRAINE
Maison à LA SOUTERRAINE
Maison à LA SOUTERRAINE
Maison à LA SOUTERRAINE
Maison à LA SOUTERRAINE
Maison à LA SOUTERRAINE
Maison à LA SOUTERRAINE
Maison à LA SOUTERRAINE
Maison à LA SOUTERRAINE
Maison à LA SOUTERRAINE
Maison à LA SOUTERRAINE
Maison à LA SOUTERRAINE
Maison à LA SOUTERRAINE
Maison à LA SOUTERRAINE
Maison à LA SOUTERRAINE
Maison à LA SOUTERRAINE
Maison à LA SOUTERRAINE
Géorisques

Les informations sur les risques auxquels ce bien est exposé sont disponibles sur le site Géorisques : www.georisques.gouv.fr

Ce site est protégé par hCaptcha Politique de confidentialité et Conditions d’utilisation s’appliquent.

En poursuivant votre navigation sans modifier vos paramètres, vous acceptez l'utilisation de cookies susceptibles de réaliser des statistiques de visite. Cliquez ici pour plus d'informations