Bénéficiez des services de nos partenaires locaux soigneusement sélectionnés
pour vous accompagner dans votre parcours d'achat immobilier

Saint-Gratien coeur de ville : Appartement 4 pièces avec terrasse dans résidence récente

— Saint-Gratien 95210 —
400 000 €
78 m²
4 pièces
parkingbalcon/terrasseascenseur

Nos partenaires locaux
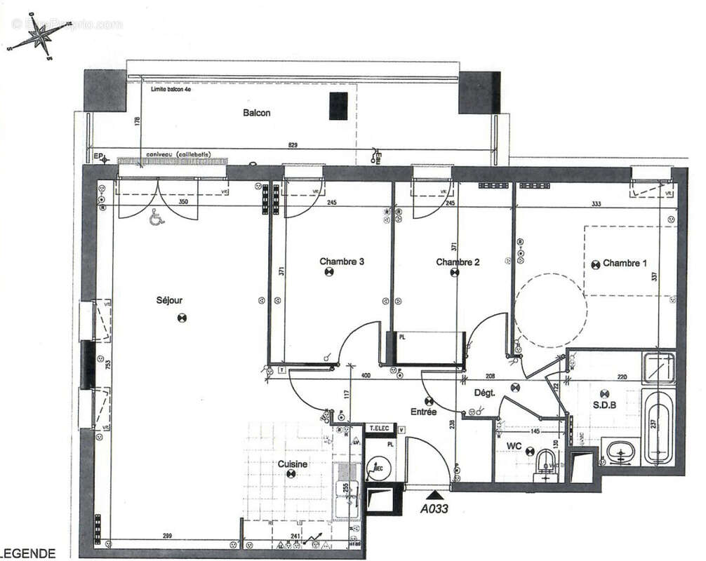
Situé en plein centre-ville de Saint-Gratien, au sein de la résidence récente Villa Essentia (2011), cet appartement 4 pièces de 78 m² offre un cadre de vie confortable, moderne et idéalement situé à proximité immédiate des commerces, écoles et de la gare RER C. L'appartement se compose d'une entrée avec rangements menant à une agréable pièce de vie de 27 m² comprenant séjour, salle à manger et cuisine ouverte avec îlot central, idéale pour recevoir. Cet espace lumineux s'ouvre directement sur une terrasse semi-couverte de 13 m² exposée Ouest, permettant de profiter pleinement d'un extérieur une grande partie de l'année. L'espace nuit propose trois chambres, dont deux avec accès direct à la terrasse, une salle de bains avec rangements, ainsi qu'un WC indépendant avec espace buanderie. Le bien offre également une configuration modulable : il est possible d'ouvrir l'une des chambres sur le séjour afin de créer une très grande pièce de vie, transformant ainsi l'appartement en grand 3 pièces avec deux chambres et un séjour encore plus spacieux. Deux places de parking privatives en sous-sol sécurisé complètent ce bien. L'appartement, en excellent état, se situe dans une résidence récente avec ascenseur et répondant aux normes PMR (personne à mobilité réduite). Appartement lumineux, fonctionnel et idéalement situé. A visiter rapidement. Copropriété de 168 lots - dont 68 lots habitation. Charges annuelles : 2359 euros.
Voir plus

Référence: 1083
Bien en copropriété. Nombre de lots : 168. Charges de copropriété : 2359 €.
Honoraires à la charge du vendeur.
Barème des honoraires
DPE
A
B
C
D
E
F
G
GES
A
B
C
D
E
F
G
Appartement à SAINT-GRATIEN
Appartement à SAINT-GRATIEN
Appartement à SAINT-GRATIEN
Appartement à SAINT-GRATIEN
Appartement à SAINT-GRATIEN
Appartement à SAINT-GRATIEN
Appartement à SAINT-GRATIEN
Appartement à SAINT-GRATIEN
Appartement à SAINT-GRATIEN
Appartement à SAINT-GRATIEN
Appartement à SAINT-GRATIEN
Géorisques

Les informations sur les risques auxquels ce bien est exposé sont disponibles sur le site Géorisques : www.georisques.gouv.fr

Ce site est protégé par hCaptcha Politique de confidentialité et Conditions d’utilisation s’appliquent.

En poursuivant votre navigation sans modifier vos paramètres, vous acceptez l'utilisation de cookies susceptibles de réaliser des statistiques de visite. Cliquez ici pour plus d'informations