Bénéficiez des services de nos partenaires locaux soigneusement sélectionnés
pour vous accompagner dans votre parcours d'achat immobilier

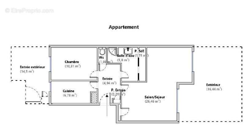
Rez-de-jardin 2/3 P. 58 m² - Villeneuve Loubet - Calme - Proche commodités - Stationnements - Cave

— Villeneuve-Loubet 06270 —
295 000 €
58 m²
3 pièces
parkingbalcon/terrassejardin

Nos partenaires locaux
Villeneuve Loubet proche Village, résidence recherchée "Parc Icard".
Rez-de-jardin traversant de 2/3 pièces d'environ 58 m², situé au calme absolu dans une copropriété avec gardien, bien entretenue et sécurisée à deux pas du Village.
Il se compose d'un double séjour ouvrant sur un extérieur de 38 m² exposé SUD OUEST ainsi que d'une cuisine ouvrant sur un second extérieur d'environ 15 m², côté NORD EST.
Actuellement une chambre mais possibilité d'en faire une 2ème, une grande salle d'eau avec dressing et buanderie, un WC indépendant.
Une cave idéale pour plus de rangement complète ce bien.
Nombreux stationnements libre dans la résidence. Faibles charges (environ 70 euros par mois).
EXCLUSIVITE ORPI Les informations sur les risques auxquels ce bien est exposé sont disponibles sur le site Géorisques : www.georisques.gouv.fr
Référence agence : 5796
Voir plus

Référence: ZL5Z-O5H-LGL
Honoraires à la charge du vendeur.
DPE
A
B
C
D
E
F
G
GES
A
B
C
D
E
F
G
Appartement à VILLENEUVE-LOUBET
Appartement à VILLENEUVE-LOUBET
Appartement à VILLENEUVE-LOUBET
Appartement à VILLENEUVE-LOUBET
Appartement à VILLENEUVE-LOUBET
Appartement à VILLENEUVE-LOUBET
Appartement à VILLENEUVE-LOUBET
Appartement à VILLENEUVE-LOUBET
Appartement à VILLENEUVE-LOUBET
Appartement à VILLENEUVE-LOUBET
Appartement à VILLENEUVE-LOUBET
Géorisques

Les informations sur les risques auxquels ce bien est exposé sont disponibles sur le site Géorisques : www.georisques.gouv.fr

Ce site est protégé par hCaptcha Politique de confidentialité et Conditions d’utilisation s’appliquent.

En poursuivant votre navigation sans modifier vos paramètres, vous acceptez l'utilisation de cookies susceptibles de réaliser des statistiques de visite. Cliquez ici pour plus d'informations