Bénéficiez des services de nos partenaires locaux soigneusement sélectionnés
pour vous accompagner dans votre parcours d'achat immobilier

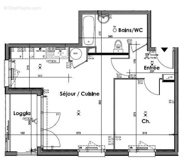
Appartement T2 LE HAVRE - 44.35 m2 119 000 Euros

— Le Havre 76600 —
119 000 €
44 m²
2 pièces
parkingascenseur

Nos partenaires locaux
IDEAL PREMIERE ACQUISITION OU INVESTISSEUR ! Bel appartement au calme dans résidence récente et sécurisée proximité des docks et tous commerces ainsi que des transports en commun
T2 de 44 m2 situé au 2ème étage avec ascenseur. Belle loggia privative exposée sud ouest !
Entrée, chambre, cuisine ouverte sur séjour donnant sur la pièce a vivre de 24 m2, salle de bain spacieuse avec sèche serviettes.
Fenêtres pvc double vitrages et bonne isolation thermique.
chauffage individuel électrique
visiophone

place de stationnement sécurisée

1 procédure en cours sur la copropriété.
Taxe foncière de 1262 euros
Les informations sur les risques auxquels ce bien est exposé sont disponibles sur le site Géorisques. http://www.georisques.gouv.fr
Voir plus

Référence: RV548_010
Honoraires d'agence de 5.31% à la charge de l'acquéreur
DPE
A
B
C
D
E
F
G
GES
A
B
C
D
E
F
G
Appartement à LE HAVRE
Appartement à LE HAVRE
Appartement à LE HAVRE
Appartement à LE HAVRE
Appartement à LE HAVRE
Appartement à LE HAVRE
Appartement à LE HAVRE
Géorisques

Les informations sur les risques auxquels ce bien est exposé sont disponibles sur le site Géorisques : www.georisques.gouv.fr

Ce site est protégé par hCaptcha Politique de confidentialité et Conditions d’utilisation s’appliquent.

En poursuivant votre navigation sans modifier vos paramètres, vous acceptez l'utilisation de cookies susceptibles de réaliser des statistiques de visite. Cliquez ici pour plus d'informations