Bénéficiez des services de nos partenaires locaux soigneusement sélectionnés
pour vous accompagner dans votre parcours d'achat immobilier

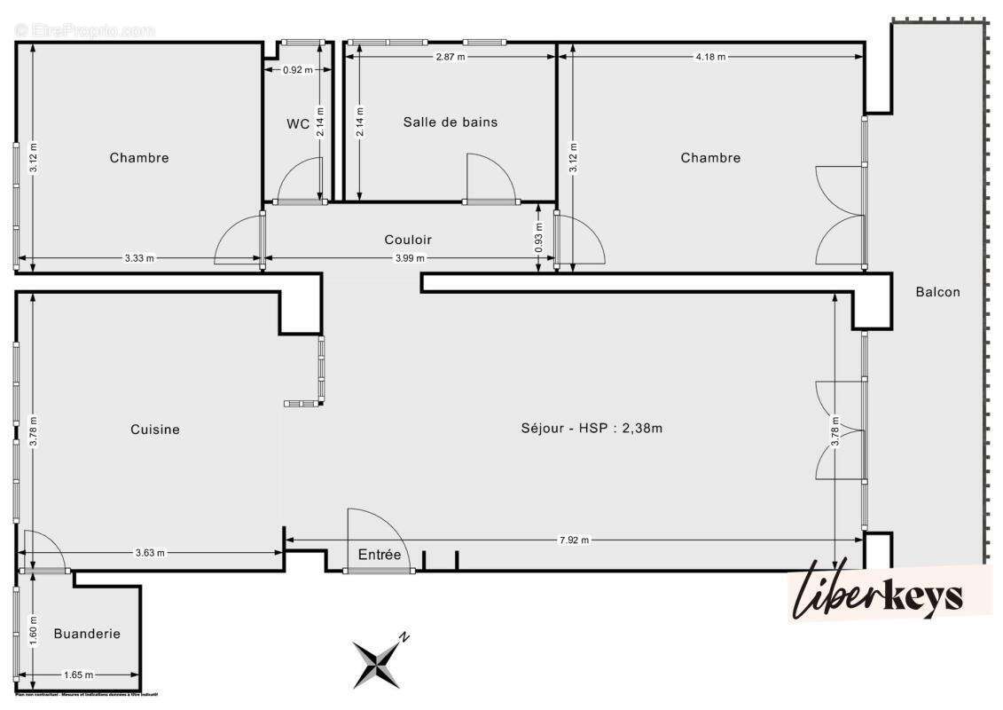
Fontaines-sur-Saône centre : T3 lumineux de 80 m², traversant, balcon, 2 places de stationnement, cave

— Fontaines-Sur-Saone 69270 —
297 000 €
79 m²
3 pièces
parkingbalcon/terrasse

Nos partenaires locaux
SOUS COMPROMIS
Liberkeys et Marie-Charlotte Terrière vous proposent en exclusivité un appartement de 80 m², au calme, en plein cœur de Fontaines-sur-Saône.
Situé au premier étage (sans ascenseur) d'une petite copropriété, cet appartement rénové et très lumineux se compose d'une grande pièce de vie de 45 m² avec cuisine semi-ouverte donnant sur un balcon de 11 m² ; et d'un espace nuit comprenant deux chambres et une salle de bains.
Il dispose également d'un cellier/buanderie, d'une cave de 10 m², d'un local à vélos et de deux places de stationnement.
À seulement 20 minutes du centre de Lyon, cet appartement bénéficie, grâce à sa localisation, de toutes les commodités nécessaires : commerces variés, établissements scolaires, services publics, transports en commun, restaurants à proximité immédiate.
Montant estimé des dépenses annuelles d'énergie pour un usage standard : entre 1460 € et 2040 € par an. Prix moyens des énergies indexés sur l'année 2023 (abonnements compris). Ce bien vous plaît ? Visitez-le virtuellement en 3D sur le site de Liberkeys ou contactez directement votre conseiller. Terriere Marie-Charlotte, agent commercial immatriculé au RSAC de Lyon sous le numéro 528 098 320. Référence annonce : DOM29771. Date de réalisation du diagnostic : 03/02/2026. Les honoraires sont à la charge du vendeur.
Voir plus

Référence: DOM29771
Bien en copropriété. Nombre de lots : 6. Charges de copropriété : 110 €.
Honoraires à la charge du vendeur.
DPE
A
B
C
D
E
F
G
GES
A
B
C
D
E
F
G
Appartement à FONTAINES-SUR-SAONE
Appartement à FONTAINES-SUR-SAONE
Appartement à FONTAINES-SUR-SAONE
Appartement à FONTAINES-SUR-SAONE
Appartement à FONTAINES-SUR-SAONE
Appartement à FONTAINES-SUR-SAONE
Appartement à FONTAINES-SUR-SAONE
Appartement à FONTAINES-SUR-SAONE
Appartement à FONTAINES-SUR-SAONE
Appartement à FONTAINES-SUR-SAONE
Appartement à FONTAINES-SUR-SAONE
Appartement à FONTAINES-SUR-SAONE
Géorisques

Les informations sur les risques auxquels ce bien est exposé sont disponibles sur le site Géorisques : www.georisques.gouv.fr

Ce site est protégé par hCaptcha Politique de confidentialité et Conditions d’utilisation s’appliquent.

En poursuivant votre navigation sans modifier vos paramètres, vous acceptez l'utilisation de cookies susceptibles de réaliser des statistiques de visite. Cliquez ici pour plus d'informations