Bénéficiez des services de nos partenaires locaux soigneusement sélectionnés
pour vous accompagner dans votre parcours d'achat immobilier

Studio refait a neuf 75011

— Paris-11e 75011 —
181 900 €
14 m²
1 pièce

Nos partenaires locaux
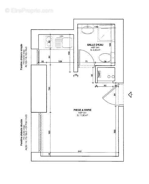
Idéalement situé dans le 11 ème arrondissement de Paris, à proximitié immédiate des commerces, transports et du boulevard Voltaire, découvrez ce studio de 14.45 m2 entièrement rénové, situé au rez-de-chaussée sur rue.
Ce bien optimisé se compose d'une pièce de vie fonctionnelle, offrant un espace séjour et nuit, ainsi qu'une cuisine ouverte moderne aménagée et semi-équipée.
Vous bénéficierez également d'une salle d'eau moderne avec une douche et un WC, rénovée avec des matériaux modernes.
L'appartement a été entierrement refait à neuf, offrant un agencement intelligent et des prestations actuelles, idéal pour un investissement locatif, un pièd-à-terre parisien ou un premier achat.
La copropriété accepte également les professions libérales.
Un bien rare sur le secteur.


Informations complémentaires : Honoraires : charge vendeur - Coproprieté de 35 lots - Charges Générales de copropriété : 216 euros / trimestre - Taxe Foncière: 358 euros / an - Millième de copropriété (28/10 000) - Classement du logement en matière de performance énergetique ( DPE) : E - 417 Kwh/m2/an d'énergie finale. Montant estimé des dépenses annuelles d'énergie pour un usage standard entre 620EUR et 890 EUR, indexés 2021 - Les informations sur les risques auxquels ce bien est exposé sont disponibles sur le site Géorisques : www.georisques.gouv.fr
Voir plus

Référence: 156
Bien en copropriété. Nombre de lots : 26.
DPE
A
B
C
D
E
F
G
GES
A
B
C
D
E
F
G
Appartement à PARIS-11E
Appartement à PARIS-11E
Appartement à PARIS-11E
Appartement à PARIS-11E
Appartement à PARIS-11E
Appartement à PARIS-11E
Géorisques

Les informations sur les risques auxquels ce bien est exposé sont disponibles sur le site Géorisques : www.georisques.gouv.fr

Ce site est protégé par hCaptcha Politique de confidentialité et Conditions d’utilisation s’appliquent.

En poursuivant votre navigation sans modifier vos paramètres, vous acceptez l'utilisation de cookies susceptibles de réaliser des statistiques de visite. Cliquez ici pour plus d'informations