Bénéficiez des services de nos partenaires locaux soigneusement sélectionnés
pour vous accompagner dans votre parcours d'achat immobilier

Appartement 83 m² à Lannion

— Lannion 22300 —
494 000 €
83 m²
4 pièces
parkingbalcon/terrasseascenseuraccès handicapé

Nos partenaires locaux
L'agence 'MON BIEN A LA MER', spécialiste de l'immobilier neuf sur les Côtes Bretonnes, sélectionne auprès des promoteurs les meilleures opérations aux mêmes prix, sans commission d'agence. Bénéficiez de notre expertise indépendante, et de nos services (aide aux plans, maquette, drone, visite virtuelles). Nous vous présentons ce bien :

Très rare : Nouvelle réalisation en plein centre de LANNION :
à pied de tous commerces, 7 min à pied de la Gare.
Nouveau : Résidence de standing en construction pour fin 2027, normes RE2020, Ascenseur, Frais de notaire réduits.

Au pied de la résidence : jardin collectif pour les résidents clos de mur 1000m2.
Un havre de paix en plein centre ville! A 10 min en voiture des merveilleuses plages de la côte de Granit Rose.

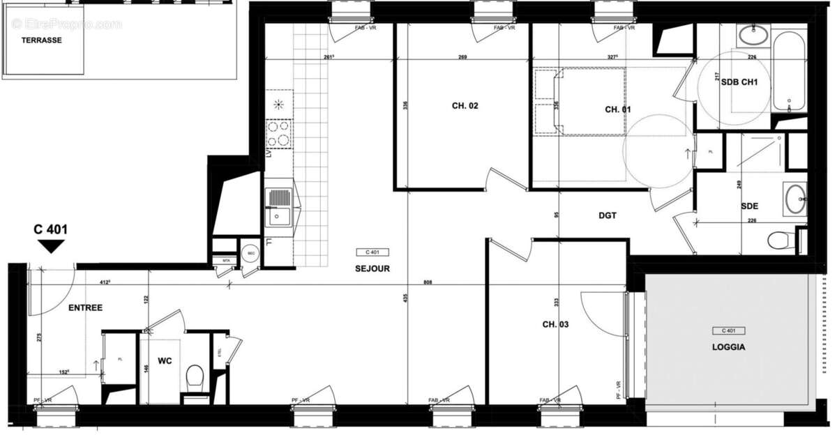
Ce T4 est situé au 4è et dernier étage, et offre séjour expo sud ouest traversant, entrée, 3 chambres, salle d'eau, salle de bains, 2 wcs, cave et deux parkings.
Une loggia de 9,65m2 et une incroyable terrasse de 50m2 offrant une vue panoramique sur LANNION.
Possibilité modification de plans intérieurs.

Nous consulter.

Honoraires à la charge du vendeur. Non soumis au DPE. Les informations sur les risques auxquels ce bien est exposé sont disponibles sur le site Géorisques : georisques.gouv.fr.

Votre conseiller MON BIEN A LA MER : Gérant - .fr MON BIEN A LA MER
Carte T CPI 22[Coordonnées masquées]25 040
RCP ACM IARD B1 7025278
Voir plus

Référence: VA6445-BIENALAMER
Honoraires à la charge du vendeur.
Barème des honoraires
Appartement à LANNION
Appartement à LANNION
Appartement à LANNION
Appartement à LANNION
Appartement à LANNION
Appartement à LANNION
Géorisques

Les informations sur les risques auxquels ce bien est exposé sont disponibles sur le site Géorisques : www.georisques.gouv.fr

Ce site est protégé par hCaptcha Politique de confidentialité et Conditions d’utilisation s’appliquent.

En poursuivant votre navigation sans modifier vos paramètres, vous acceptez l'utilisation de cookies susceptibles de réaliser des statistiques de visite. Cliquez ici pour plus d'informations