Bénéficiez des services de nos partenaires locaux soigneusement sélectionnés
pour vous accompagner dans votre parcours d'achat immobilier

SAINT ORENS T4 récent avec grande terrasse – Résidence 2022

— Saint-Orens-De-Gameville 31650 —
324 000 €
78 m²
4 pièces
parkingbalcon/terrasseascenseur

Nos partenaires locaux
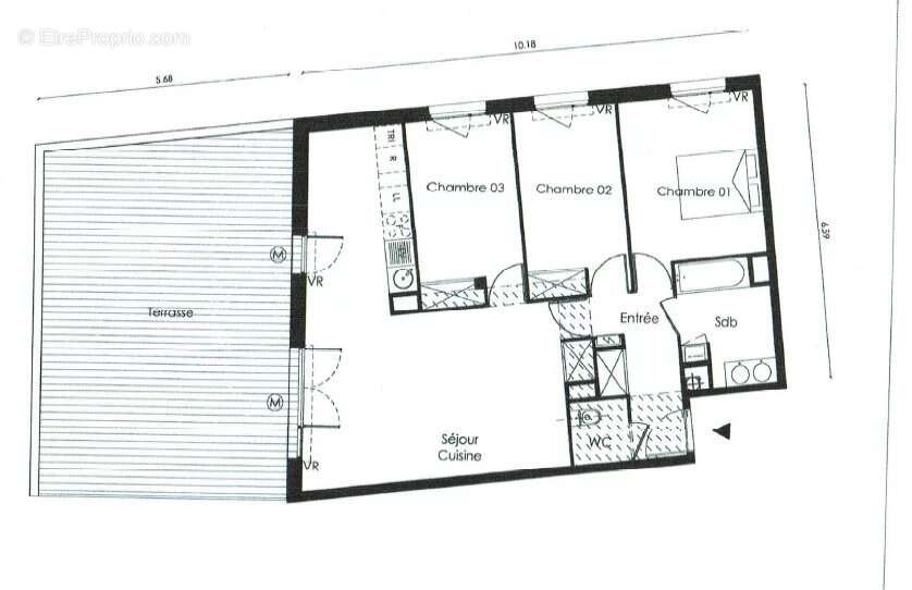
Saint-Orens-de-Gameville – Dans une résidence récente et sécurisée de 2022, au calme, découvrez ce bel appartement T4 de 78,80 m² situé au 3ᵉ étage sur 4 avec ascenseur.

Il se compose d’un séjour avec cuisine US entièrement équipée d’environ 34 m², donnant accès à une vaste terrasse privative en bois de 45 m², exposée sud-ouest, équipée d’un store banne électrique. L’appartement bénéficie d’une vue dégagée et d’une belle luminosité.
La partie nuit offre 3 chambres en parquet avec rangements, une salle de bains et un WC séparé.
Côté confort, vous disposez de la climatisation, d’un chauffage central au gaz, de fenêtres en double vitrage avec volets roulants électriques.

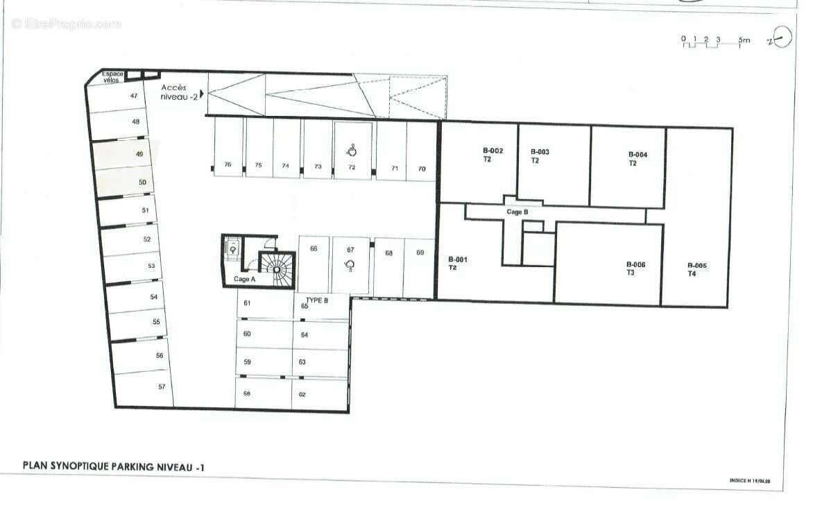
Un double garage en sous-sol complète ce bien.

Environnement privilégié : résidence récente dans un secteur calme, gendarmerie à proximité, crèche, écoles et lycée accessibles facilement, bus, gare et future station de métro à 2 km sur Labège.

Idéal famille ou couple actif recherchant un appartement récent, confortable et bien desservi aux portes de Toulouse.
DPE en cours de réalisation.
PRIX 324 000 euros Honoraires agence charge acquéreur compris 6% TTC.
Montant annuel de la quote part de charges courantes : 1839 euros.
Voir plus

Barème des honoraires
Appartement à SAINT-ORENS-DE-GAMEVILLE
Appartement à SAINT-ORENS-DE-GAMEVILLE
Appartement à SAINT-ORENS-DE-GAMEVILLE
Appartement à SAINT-ORENS-DE-GAMEVILLE
Appartement à SAINT-ORENS-DE-GAMEVILLE
Appartement à SAINT-ORENS-DE-GAMEVILLE
Appartement à SAINT-ORENS-DE-GAMEVILLE
Appartement à SAINT-ORENS-DE-GAMEVILLE
Appartement à SAINT-ORENS-DE-GAMEVILLE
Géorisques

Les informations sur les risques auxquels ce bien est exposé sont disponibles sur le site Géorisques : www.georisques.gouv.fr

Ce site est protégé par hCaptcha Politique de confidentialité et Conditions d’utilisation s’appliquent.

En poursuivant votre navigation sans modifier vos paramètres, vous acceptez l'utilisation de cookies susceptibles de réaliser des statistiques de visite. Cliquez ici pour plus d'informations