Bénéficiez des services de nos partenaires locaux soigneusement sélectionnés
pour vous accompagner dans votre parcours d'achat immobilier

Cailloux-sur-Fontaines : maison de village en duplex, 2 chambres, terrasse, 2 places de stationnement

— Cailloux-Sur-Fontaines 69270 —
385 000 €
90 m² / 30 m²
3 pièces
parkingbalcon/terrasse

Nos partenaires locaux
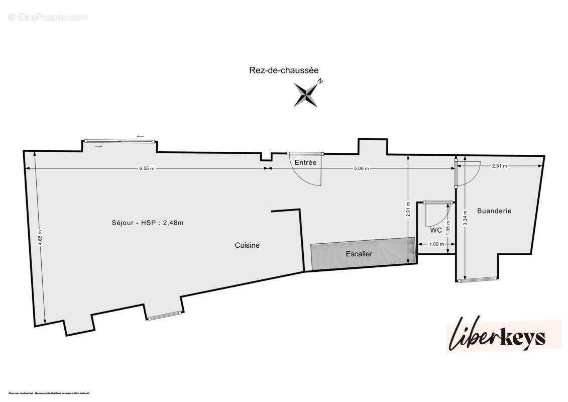
Marie-Charlotte Terrière et Liberkeys vous proposent en exclusivité cette charmante maison de village de 90 m² (et sa terrasse de 30 m²) entièrement rénovée dans un ancien corps de ferme avec des prestations de qualité.

Idéalement située dans une copropriété de 4 lots, à seulement 20 minutes de Lyon, dans un secteur calme de Cailloux-sur-Fontaines en limite de Fontaines-Saint-Martin, la maison est répartie sur deux niveaux.

Elle comprend au rez-de-chaussée : une entrée spacieuse ouverte sur la pièce de vie de 30 m² avec cuisine américaine entièrement équipée, le tout donnant sur la terrasse exposée sud-est.
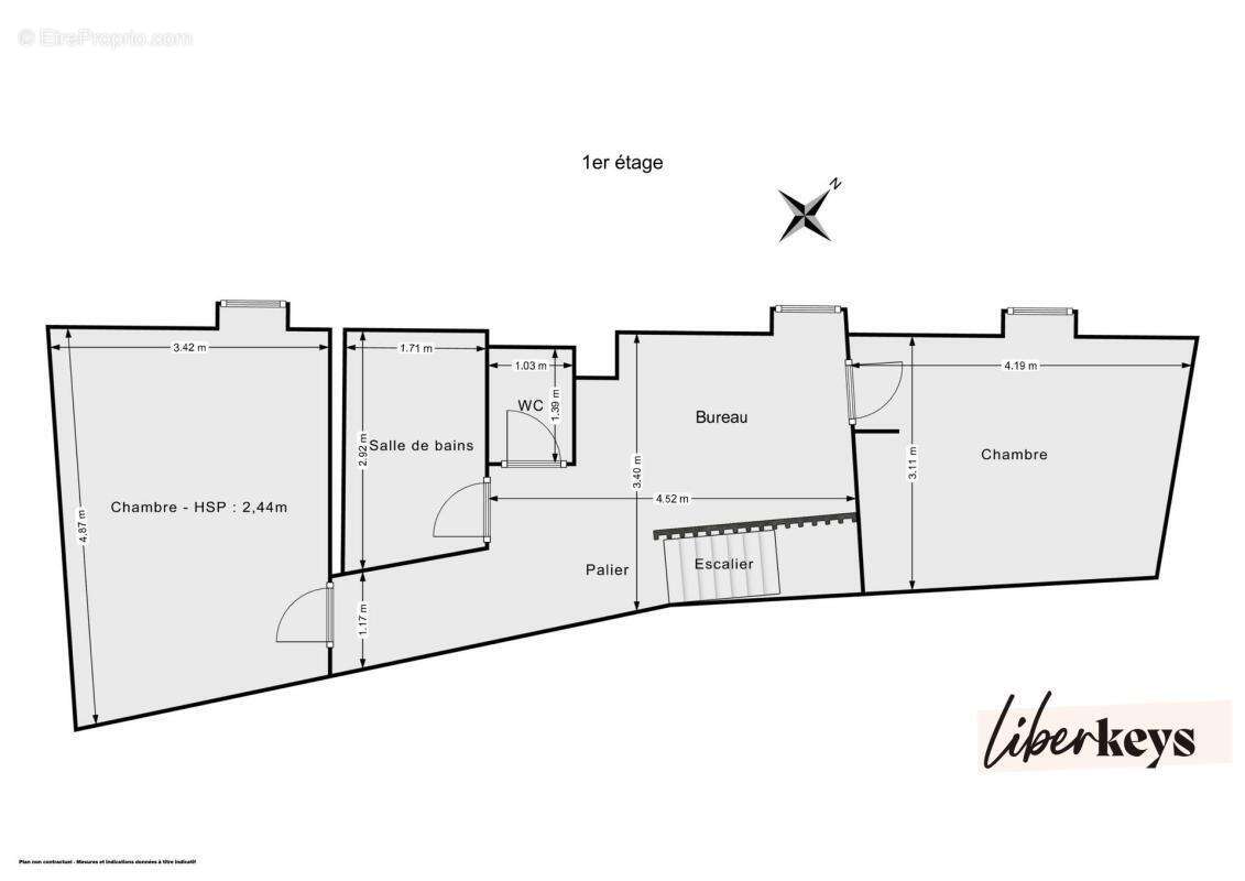
A l'étage se trouvent deux chambres, un agréable espace bureau et une salle de bain.
À cela s'ajoutent une grande buanderie et deux places de stationnement dans la cour fermée de la copropriété.

Ce bien vous plaît ? Visitez-le virtuellement en 3D sur le site de Liberkeys ou contactez directement votre conseiller. Terriere Marie-Charlotte, agent commercial immatriculé au RSAC de Lyon sous le numéro 528 098 320. Référence annonce : DOM16984. Date de réalisation du diagnostic : 03/02/2026. Taxe foncière : 985 euros, charges de copropriété : 27 euros/mois. Les honoraires sont à la charge du vendeur.
Voir plus

Référence: DOM16984
Bien en copropriété. Nombre de lots : 4. Charges de copropriété : 27 €.
Honoraires à la charge du vendeur.
DPE
A
B
C
D
E
F
G
GES
A
B
C
D
E
F
G
Maison à CAILLOUX-SUR-FONTAINES
Maison à CAILLOUX-SUR-FONTAINES
Maison à CAILLOUX-SUR-FONTAINES
Maison à CAILLOUX-SUR-FONTAINES
Maison à CAILLOUX-SUR-FONTAINES
Maison à CAILLOUX-SUR-FONTAINES
Maison à CAILLOUX-SUR-FONTAINES
Maison à CAILLOUX-SUR-FONTAINES
Maison à CAILLOUX-SUR-FONTAINES
Maison à CAILLOUX-SUR-FONTAINES
Maison à CAILLOUX-SUR-FONTAINES
Maison à CAILLOUX-SUR-FONTAINES
Maison à CAILLOUX-SUR-FONTAINES
Maison à CAILLOUX-SUR-FONTAINES
Maison à CAILLOUX-SUR-FONTAINES
Maison à CAILLOUX-SUR-FONTAINES
Maison à CAILLOUX-SUR-FONTAINES
Maison à CAILLOUX-SUR-FONTAINES
Maison à CAILLOUX-SUR-FONTAINES
Maison à CAILLOUX-SUR-FONTAINES
Maison à CAILLOUX-SUR-FONTAINES
Géorisques

Les informations sur les risques auxquels ce bien est exposé sont disponibles sur le site Géorisques : www.georisques.gouv.fr

Ce site est protégé par hCaptcha Politique de confidentialité et Conditions d’utilisation s’appliquent.

En poursuivant votre navigation sans modifier vos paramètres, vous acceptez l'utilisation de cookies susceptibles de réaliser des statistiques de visite. Cliquez ici pour plus d'informations