Bénéficiez des services de nos partenaires locaux soigneusement sélectionnés
pour vous accompagner dans votre parcours d'achat immobilier

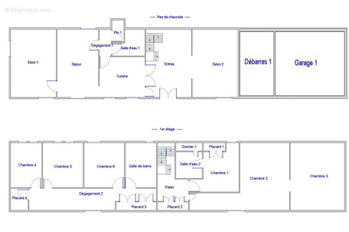
MAYENNE, La Dorée, 4-6 chambres, 227 m² habitables, dépendances, garage, jardin, puits, sur un terrain de 3897 m².

— La Doree 53190 —
248 000 €
227 m² / 3 897 m²
10 pièces
jardin

Nos partenaires locaux
Vaste maison familiale de village, en bordure de campagne, avec plusieurs dépendances et un pré. Cette grande maison familiale offre des espaces de vie intérieurs magnifiques et bien conçus. Un investissement important a permis d'assurer un confort optimal et une consommation d'énergie réduite. A découvrir absolument ! L'ensemble comprend une magnifique et grande grange en pierre (actuellement utilisée comme vaste atelier) qui, avec les autorisations nécessaires, pourrait être aménagée. Le tout s'étend sur près de 4000 m², soit presque un acre. Le pré d'environ 1300 m² est actuellement enherbé et bordé par un autre bâtiment, utilisé comme très grand bûcher mais pouvant également accueillir des animaux. On trouve également un garage intégré, un garage séparé, une serre et un potager. A proximité de la maison principale se trouve un puits en état de marche. - Hall d'entrée principal avec poêle à bois et salon attenant - Cuisine familiale équipée avec îlot central - WC séparés, buanderie avec douche, accès aux pièces de rangement et au jardin - Salle à manger spacieuse - Deuxième salon avec poêle à bois - Escalier menant à l'étage depuis le hall d'entrée : - 4 chambres spacieuses (dont une avec salle d'eau privative et WC) - Salle de bains familiale avec baignoire, douche, WC et lavabo - 2 pièces supplémentaires, dont une actuellement utilisée comme débarras et l'autre comme atelier - Double vitrage, radiateurs, chauffage central par pompe à chaleur air-eau. Classe énergétique C - Tout-à-l'égout (fosse septique non requise) Contactez-moi directement : [Coordonnées masquées] pour plus d'informations ou pour organiser une visite. Vidéo à venir. (5.98 % honoraires TTC à la charge de l'acquéreur.) Alison SHORE (EI) Agent Commercial - Numéro RSAC : 502 977 705 - ST MALO.
Voir plus

Référence: 5028
Honoraires d'agence de 5.98% à la charge de l'acquéreur
Barème des honoraires
DPE
A
B
C
D
E
F
G
GES
A
B
C
D
E
F
G
Maison à LA DOREE
Maison à LA DOREE
Maison à LA DOREE
Maison à LA DOREE
Maison à LA DOREE
Maison à LA DOREE
Maison à LA DOREE
Maison à LA DOREE
Maison à LA DOREE
Maison à LA DOREE
Maison à LA DOREE
Maison à LA DOREE
Maison à LA DOREE
Maison à LA DOREE
Maison à LA DOREE
Maison à LA DOREE
Maison à LA DOREE
Maison à LA DOREE
Géorisques

Les informations sur les risques auxquels ce bien est exposé sont disponibles sur le site Géorisques : www.georisques.gouv.fr

Ce site est protégé par hCaptcha Politique de confidentialité et Conditions d’utilisation s’appliquent.

En poursuivant votre navigation sans modifier vos paramètres, vous acceptez l'utilisation de cookies susceptibles de réaliser des statistiques de visite. Cliquez ici pour plus d'informations