Bénéficiez des services de nos partenaires locaux soigneusement sélectionnés
pour vous accompagner dans votre parcours d'achat immobilier

Appartement

— Chenove 21300 —
70 000 €
81 m²
4 pièces
balcon/terrasse

Nos partenaires locaux
21300 CHENÔVE - 5 MIN EN VOITURE DE DIJON - T3 - 81M² - 2 CHAMBRES - PARKING - CAVE - NOMBREUX RANGEMENTS - VUE DEGAGEE - LUMINEUX

Efficity l'agence leader de l'estimation en ligne vous présente par l'intermédiaire de Victor Douzi-Varvou cet appartement situé dans un quartier proche du vieux Chenôve et de tous commerces ainsi que d'écoles.
Appartement lumineux de 73,19 m² Carrez – idéal premier achat.

Les atouts :

- Salle de bain rénovée en 2023
- Deux loggias dont une ouverte sur cuisine
- Nombreux rangements
- Emplacement extérieur sécurisé
- Cave
- Ensoleillé
- Vue dégagée sur le plateau de Chenôve
- Interphone

Il se compose de :
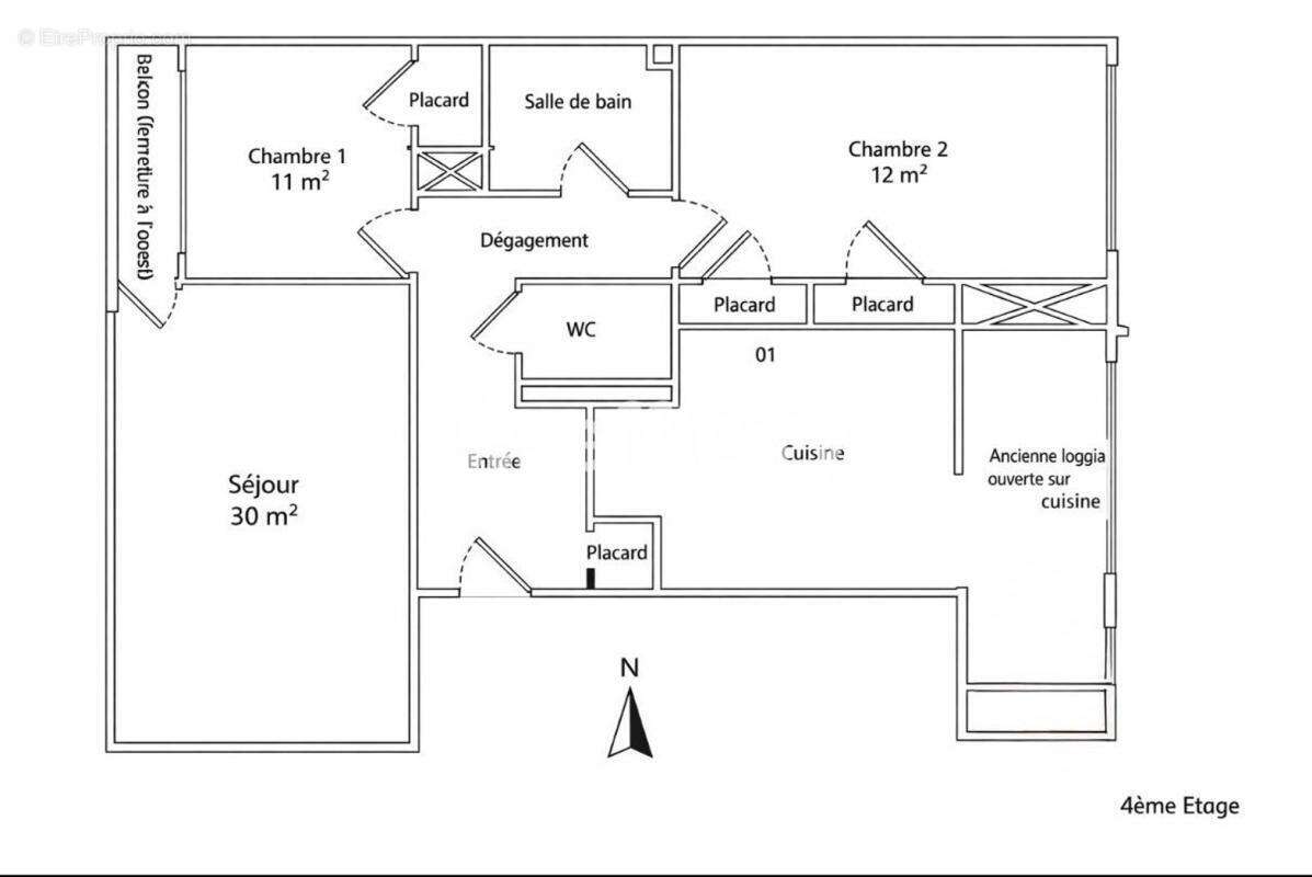
Une entrée avec placard, une grande cuisine aménagée, un séjour de 30 m², deux chambres avec placards, une salle de bain et un WC indépendant.

Charges de copropriété : 3 936 €/an (eau froide, eau chaude, chauffage, entretien des communs deux fois par semaine et des espaces verts)
Taxe foncière : 1 097 €

Localisation:
Tramway T2 Valendons / T2 Chenôve Centre
Bus, commerces et écoles à proximité

Votre conseiller Efficity : Victor Douzi-Varvou Tél : [Coordonnées masquées]
Les informations sur les risques auxquels ce bien est exposé sont disponibles sur le site Georisque : georisques. gouv. fr
Victor Douzi-Varvou - EI - est Agent Commercial mandataire en immobilier, immatriculé au Registre Spécial des Agents Commerciaux du Tribunal de Commerce de Dijon sous le n°978886695.
Siège social du mandant : effiCity, 48 avenue de Villiers - 75017 PARIS - Société par Actions Simplifiée, société au capital de 132 373,05 euros, immatriculée au RCS Paris 497 617 746 et titulaire de la Carte professionnelle CPI 75[Coordonnées masquées]02 025 - CCI Paris IDF - Caisse de Garantie : GALIAN Assurances 89 rue de la Boétie 75008 Paris
Voir plus

Référence: 209765
Bien en copropriété. Nombre de lots : 100. Charges de copropriété : 27 €.
Honoraires d'agence de 16.47% à la charge de l'acquéreur
Barème des honoraires
DPE
A
B
C
D
E
F
G
GES
A
B
C
D
E
F
G
Appartement à CHENOVE
Appartement à CHENOVE
Appartement à CHENOVE
Appartement à CHENOVE
Appartement à CHENOVE
Appartement à CHENOVE
Appartement à CHENOVE
Appartement à CHENOVE
Appartement à CHENOVE
Géorisques

Les informations sur les risques auxquels ce bien est exposé sont disponibles sur le site Géorisques : www.georisques.gouv.fr

Ce site est protégé par hCaptcha Politique de confidentialité et Conditions d’utilisation s’appliquent.

En poursuivant votre navigation sans modifier vos paramètres, vous acceptez l'utilisation de cookies susceptibles de réaliser des statistiques de visite. Cliquez ici pour plus d'informations