Bénéficiez des services de nos partenaires locaux soigneusement sélectionnés
pour vous accompagner dans votre parcours d'achat immobilier

Appartement

— Boulogne-Billancourt 92100 —
395 000 €
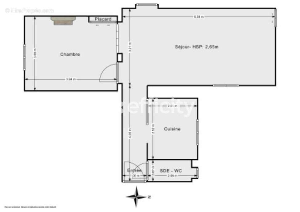
42 m²
3 pièces

Nos partenaires locaux
BOULOGNE NORD - PARCHAMP – 2 CHAMBRES – DERNIER ETAGE – CALME et LUMINEUX

Dans l'un des quartiers les plus convoités de Boulogne-Billancourt, proche de nombreux commerces de bouche et à 3 min à pied du métro Boulogne-Jean-Jaurès (Ligne 10).

Au 4ème et dernier étage d'un immeuble ancien de charme, appartement lumineux exposé SUD / EST avec vue dégagée.

Parfaitement optimisé dans 42m2, il se compose actuellement de deux chambres, d'un séjour, d'une cuisine ouverte et d'une salle d'eau avec toilettes. Facilement transformable en grand 2 pièces (plan d'origine).

Combles aménageables. Une cave complète ce bien. Charme de l'ancien.

Eau chaude et chauffage individuels au gaz (chaudière neuve)
Charges mensuelles d'immeuble : 140 euros
Taxe foncière : 376 euros (avis 2025)
DPE : F
Les informations sur les risques auxquels ce bien est exposé sont disponibles sur le site Georisque : georisques. gouv. fr
Vincent Deby - EI - est Agent Commercial mandataire en immobilier, immatriculé au Registre Spécial des Agents Commerciaux du Tribunal de Commerce de Nanterre sous le n°524616448.
Siège social du mandant : effiCity, 48 avenue de Villiers - 75017 PARIS - Société par Actions Simplifiée, société au capital de 132 373,05 euros, immatriculée au RCS Paris 497 617 746 et titulaire de la Carte professionnelle CPI 75[Coordonnées masquées]02 025 - CCI Paris IDF - Caisse de Garantie : GALIAN Assurances 89 rue de la Boétie 75008 Paris
Voir plus

Référence: 209950
Bien en copropriété. Nombre de lots : 15. Charges de copropriété : 140 €.
Honoraires à la charge du vendeur.
Barème des honoraires
DPE
A
B
C
D
E
F
G
GES
A
B
C
D
E
F
G
Appartement à BOULOGNE-BILLANCOURT
Appartement à BOULOGNE-BILLANCOURT
Appartement à BOULOGNE-BILLANCOURT
Appartement à BOULOGNE-BILLANCOURT
Appartement à BOULOGNE-BILLANCOURT
Appartement à BOULOGNE-BILLANCOURT
Appartement à BOULOGNE-BILLANCOURT
Appartement à BOULOGNE-BILLANCOURT
Appartement à BOULOGNE-BILLANCOURT
Appartement à BOULOGNE-BILLANCOURT
Appartement à BOULOGNE-BILLANCOURT
Géorisques

Les informations sur les risques auxquels ce bien est exposé sont disponibles sur le site Géorisques : www.georisques.gouv.fr

Ce site est protégé par hCaptcha Politique de confidentialité et Conditions d’utilisation s’appliquent.

En poursuivant votre navigation sans modifier vos paramètres, vous acceptez l'utilisation de cookies susceptibles de réaliser des statistiques de visite. Cliquez ici pour plus d'informations