Bénéficiez des services de nos partenaires locaux soigneusement sélectionnés
pour vous accompagner dans votre parcours d'achat immobilier

Duplex d’exception de 142 m2 Avenue Gabriel, Paris 8

— Paris-8e 75008 —
1 880 000 €
144 m²
5 pièces

Nos partenaires locaux
Le Cabinet Maurice Burger vous présente un magnifique duplex de 142 m2, situé au 2ème et 3ème étage d’un immeuble de grand standing datant du XIXème siècle, au cœur de la prestigieuse Avenue Gabriel.
Une adresse rare, sectorisée Octave Gréard, à deux pas des Champs-Élysées et du Palais de l’Élysée.
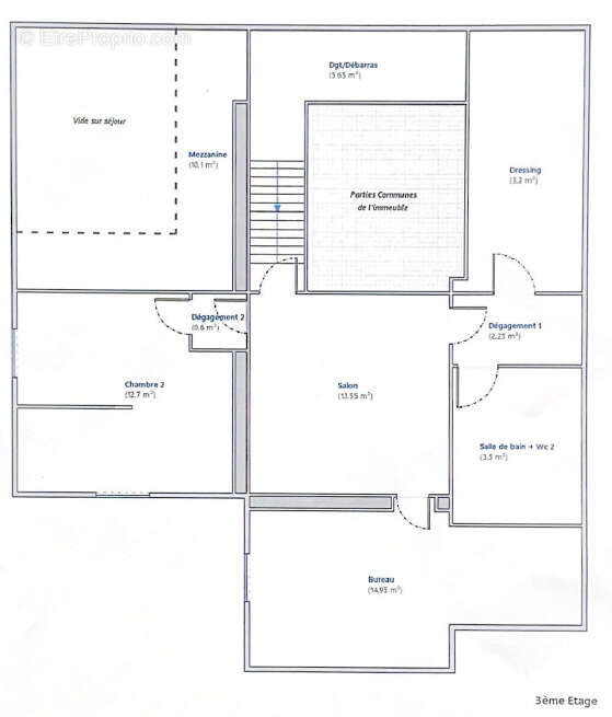
Agencement de l’appartement
Premier niveau :


Entrée élégante avec couloir desservant les pièces de réception


Vaste séjour de 31,45 m2, triple exposition, cheminée fonctionnelle


Cuisine séparée, entièrement équipée


Salle à manger conviviale


Suite parentale avec salle de bains et WC privatifs


Deuxième niveau :


Chambre lumineuse et paisible


Bureau ou espace lecture


Deuxième salon confortable


Salle de bains avec WC


Dressing spacieux


Mezzanine polyvalente (coin lecture, bureau ou salle de jeux)


Débarras pratique


Les atouts du bien :Adresse prestigieuse : une des plus recherchées de ParisCalme absolu : appartement entièrement tourné sur courLuminosité exceptionnelle : grandes ouvertures et triple exposition
Un bien rare et raffiné, alliant charme de l’ancien, volumes généreux et potentiel d’aménagement, dans l’une des adresses les plus emblématiques de la capitale.
Voir plus

Bien en copropriété. Nombre de lots : 57. Charges de copropriété : 4175 €.
Barème des honoraires
DPE
A
B
C
D
E
F
G
GES
A
B
C
D
E
F
G
Appartement à PARIS-8E
Appartement à PARIS-8E
Appartement à PARIS-8E
Appartement à PARIS-8E
Appartement à PARIS-8E
Appartement à PARIS-8E
Appartement à PARIS-8E
Appartement à PARIS-8E
Appartement à PARIS-8E
Appartement à PARIS-8E
Appartement à PARIS-8E
Appartement à PARIS-8E
Appartement à PARIS-8E
Appartement à PARIS-8E
Appartement à PARIS-8E
Appartement à PARIS-8E
Appartement à PARIS-8E
Appartement à PARIS-8E
Appartement à PARIS-8E
Appartement à PARIS-8E
Géorisques

Les informations sur les risques auxquels ce bien est exposé sont disponibles sur le site Géorisques : www.georisques.gouv.fr

Ce site est protégé par hCaptcha Politique de confidentialité et Conditions d’utilisation s’appliquent.