Bénéficiez des services de nos partenaires locaux soigneusement sélectionnés
pour vous accompagner dans votre parcours d'achat immobilier

Maison 7 pièces 141m²

— La Ferte-Alais 91590 —
299 000 €
141 m² / 519 m²
7 pièces
balcon/terrasse

Nos partenaires locaux
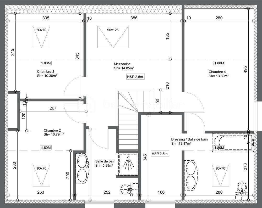
Idéalement située dans le village calme de Cerny, une maison de 7 pièces à rénover, édifiée sur un terrain d'environ 519m², vous proposant :

- Au RDC : Une entrée avec placard, un espace salon/salle à manger avec cuisine ouverte d'environ 50m², accès aux terrasses avant et arrière, une première chambre, salle de bains et WC séparé.

- A l'étage : Le palier dessert une mezzanine, 3 chambres dont une suite parentale avec salle de bains et dressing, une salle d'eau et 2 WC.

- Un sous-sol total avec garage, buanderie et une cave à vin.

Chauffage gaz, proche commodités et écoles, PVC double vitrage.
Maison à rénover ! Travaux possible.

Cette annonce référence 310810 vous est présentée par votre agent commercial BSK Immobilier YOANN WANGERMÉE (EI) immatriculé au RSAC de MELUN (77000) sous le numéro 8324[Coordonnées masquées].

Prix du bien : 299 000,00 €
Les honoraires d'agence sont à la charge du vendeur.

A propos des performances énergétiques :
Date de réalisation du diagnostic énergétique : 16/07/2025
Score DPE : 206 kWhEP/m²/an
Score GES : 45 kgepCO2/m²/an
Montant estimé des dépenses annuelles d'énergie pour un usage standard : entre 2310.00 € et 3160.00 € par an. Prix moyens des énergies indexés sur l'année 2025 (abonnements compris).

Les informations sur les risques auxquels ce bien est exposé sont disponibles sur le site Géorisques : www.georisques.gouv.fr
Voir plus

Référence: 310810
Honoraires à la charge du vendeur.
DPE
A
B
C
D
E
F
G
GES
A
B
C
D
E
F
G
Maison à LA FERTE-ALAIS
Maison à LA FERTE-ALAIS
Maison à LA FERTE-ALAIS
Maison à LA FERTE-ALAIS
Maison à LA FERTE-ALAIS
Maison à LA FERTE-ALAIS
Maison à LA FERTE-ALAIS
Maison à LA FERTE-ALAIS
Maison à LA FERTE-ALAIS
Maison à LA FERTE-ALAIS
Maison à LA FERTE-ALAIS
Géorisques

Les informations sur les risques auxquels ce bien est exposé sont disponibles sur le site Géorisques : www.georisques.gouv.fr

Ce site est protégé par hCaptcha Politique de confidentialité et Conditions d’utilisation s’appliquent.

En poursuivant votre navigation sans modifier vos paramètres, vous acceptez l'utilisation de cookies susceptibles de réaliser des statistiques de visite. Cliquez ici pour plus d'informations