Bénéficiez des services de nos partenaires locaux soigneusement sélectionnés
pour vous accompagner dans votre parcours d'achat immobilier

EXCLUSIVITE Maison d'architecte Allauch

— Allauch 13190 —
1 750 000 €
252 m² / 1 983 m²
6 pièces
jardin

Nos partenaires locaux
exclusivite propriétés privées vous presente ce bien d'exception situé sur les hauteurs du village pittoresque d'allauch.
cette somptueuse propriété est constituée d'une authentique maison d'architectes en position dominante avec une vue a vous couper le souffle sur les collines de marcel pagnol et sur la rade de marseille.
sur une magnifique parcelle de 1983m² cette demeure est composée de:
en rez de chaussée :
un hall d'entrée qui dessert un immense séjour aux grands volumes avec sa cuisine ouverte se prolongeant sur deux terrasses avec vue sur la piscine et la mer.
deux chambres, une salle de bains avec douche et un wc.
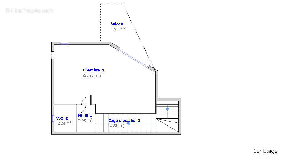
une troisième chambres de 24m² est située a l'étage avec wc et balcon.
en rez de jardin:
un appartement indépendant de type 2/3 composé d'un séjour, d'une cuisine
équipée, d'une chambre, une salle de bains wc et une pièce indépendante donnant sur une terrasse avec vue panoramique.
un jardin arboré de différentes espèces d'arbres fruitiers avec arrosage automatique, dépendances, garage, cave a vin, piscine a l'eau salée et sa cuisine d'été.
dpe: energie primaire: c (176kwh/m²/an)
emissions des gaz a effet de serre: a (5kg co²/m²/an)
estimation des coûts annuels d'énergie du logement: entre 2230 et 3080 euros.
mandat n°442977 honoraires charge vendeur.
les informations sur les risques auxquels ce bien est exposé sont disponibles sur le site géorisques : www.georisques.gouv.fr
pour visiter et vous accompagner dans votre projet, contactez marc orosco, au [Coordonnées masquées] ou, par courriel à [Coordonnées masquées].
selon l'article l.561.5 du code monétaire et financier, pour l'organisation de la visite, la présentation d'une pièce d'identité vous sera demandée.
cette présente annonce a été rédigée sous la responsabilité éditoriale de marc orosco agissant sous le statut d'agent commercial auprès de sas proprietes privees.

cette présente annonce a été rédigée sous la responsabilité éditoriale de marc orosco agissant sous le statut d'agent commercial immatriculé au rsac marseille 452387756 auprès de la sas proprietes privees , au capital de 44 920 euros, zac le chêne ferré - 44 allée des cinq continents 44120 vertou; siret 487 624 777 00040, rcs nantes. carte professionnelle transactions sur immeubles et fonds de commerce (t) et gestion immobilière (g) n°cpi 44[Coordonnées masquées]10 388 délivrée par la cci nantes - saint nazaire. compte séquestre n°3[Coordonnées masquées] bpa saint-sebastien-sur-loire (44230). garantie galian - 89 rue de la boétie, 75008 paris - n°28137 j pour 2 000 000 euros pour t et 120 000 euros pour g. assurance responsabilité civile professionnelle par mma entreprise n° de police 120.137.405

mandat réf : 442977 - le professionnel garantit et sécurise votre projet immobilier.

marc orosco (ei) agent commercial - numéro rsac : marseille 452387756 - .
Voir plus

Référence: 442977MORO
Honoraires à la charge du vendeur.
DPE
A
B
C
D
E
F
G
GES
A
B
C
D
E
F
G
Maison à ALLAUCH
Maison à ALLAUCH
Maison à ALLAUCH
Maison à ALLAUCH
Maison à ALLAUCH
Maison à ALLAUCH
Maison à ALLAUCH
Maison à ALLAUCH
Maison à ALLAUCH
Maison à ALLAUCH
Maison à ALLAUCH
Maison à ALLAUCH
Géorisques

Les informations sur les risques auxquels ce bien est exposé sont disponibles sur le site Géorisques : www.georisques.gouv.fr

Ce site est protégé par hCaptcha Politique de confidentialité et Conditions d’utilisation s’appliquent.

En poursuivant votre navigation sans modifier vos paramètres, vous acceptez l'utilisation de cookies susceptibles de réaliser des statistiques de visite. Cliquez ici pour plus d'informations