Bénéficiez des services de nos partenaires locaux soigneusement sélectionnés
pour vous accompagner dans votre parcours d'achat immobilier

Pavillon type 5 Mitoyen d'un côté + grand garage

— Septemes-Les-Vallons 13240 —
318 000 €
107 m² / 300 m²
5 pièces
parkingbalcon/terrassejardin

Nos partenaires locaux
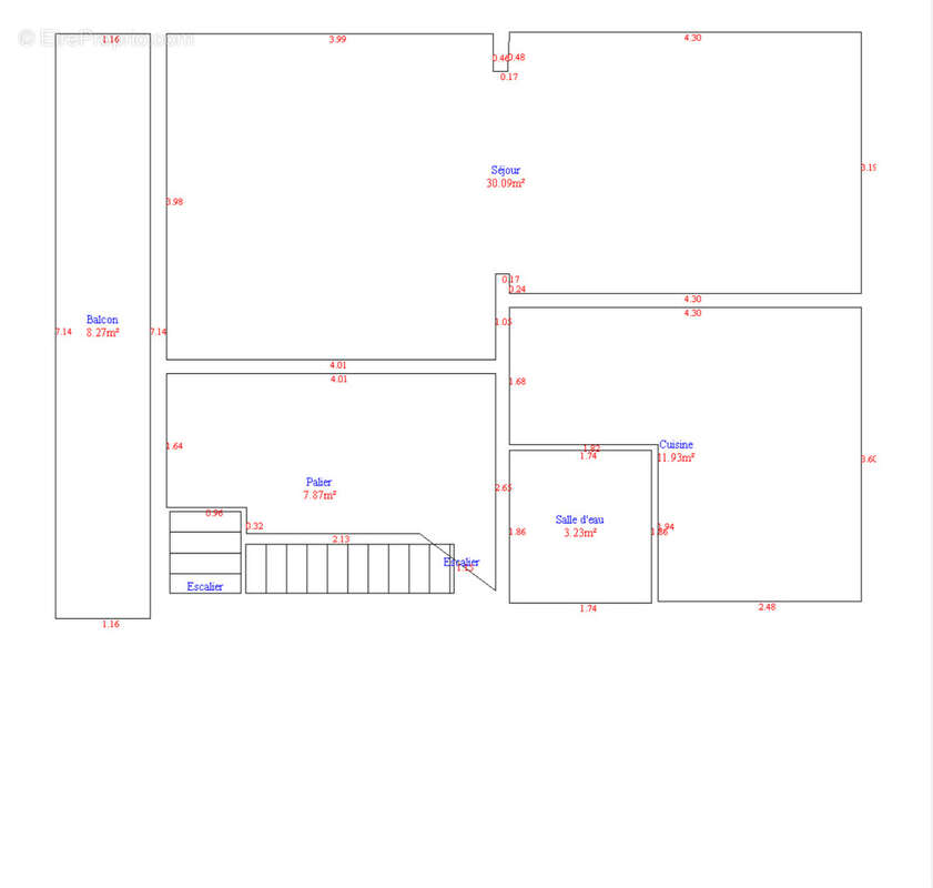
Découvrez Votre Nouvelle Maison avec Patrick Bertolone du Reseau Expertimo Type : Maison mitoyenne de Type 5 + Garage Terrain : Environ 300 m2 Surface habitable : Environ 107 m2 + 51 m2 au sous-sol Cette charmante maison est idéalement située dans le secteur paisible et recherché des Castors Isabella. Vous serez à deux pas de toutes les commodités essentielles : crèche, école maternelle et primaire, ainsi que l'arrêt de bus pour rejoindre facilement le centre-ville et la gare SNCF. Un parc avec terrain de jeux pour vos enfants se trouve également à proximité, tandis que les axes d'autoroutes Aix/Marseille/Martigues/Marignane, ainsi que la zone commerciale de Plan de Campagne, sont à seulement 3 minutes en voiture.
Composition de la Maison : - Sous-sol : - Grand garage+ cave - Accès à un petit hall d'entrée menant à l'étage - Rez-de-chaussée : - Vaste hall d'entrée - Espace salon/salle à manger lumineux - Cuisine - Espace buanderie avec toilettes et douche - Étage : - 3 grandes chambres - Salle de bain - Toilettes indépendantes
Prévoir des travaux intèrieur + tous les extèrieurs ont été refait et arboré (terrasse ,places de parking ,murs de clotûres,facades,et garde corps) ainsi que le portail coulissant ,portillon arrière ,et porte de garage motorisé. Cette maison est saine et aprés les travaux intèrieur saura combler les attentes de toute votre famille. Informations complémentaires : - Bien soumis au statut de la copropriété : Charges de 150 €/an, 376 lots au total. - Les horaires d'agence sont inclus dans le prix de vente et sont à la charge des vendeurs. Ne manquez pas cette opportunité! Pour plus de précisions ou pour organiser une visite, n'hésitez pas à me contacter au [Coordonnées masquées].
RSAC Aix En Provence : 512994112 Votre nouvelle vie commence ici avec Reseau Expertimo !
Les honoraires d'agence sont compris dans le prix de vente et sont à la charge des vendeurs. Je reste à votre disposition pour vous accompagner tout au long de votre projet immobilier. Pour toute visite ou renseignement, n’hésitez pas à me contacter au [Coordonnées masquées]. Patrick Bertolone EI RSAC Aix En Provence : 512994112 Pour plus d'informations sur les risques auxquels ce bien est exposé, consultez le site Géorisques : [www.georisques.gouv](http://www.georisques.gouv)
Cette annonce vous est proposée par HOME CLAIR - SAS - NoRSAC: 524708971, Enregistré à Greffe du tribunal de commerce de AIX-EN-PROVENCE - Annonce rédigée et publiée par un Agent Mandataire -
Voir plus

Référence: 100005
Bien en copropriété. Nombre de lots : 376. Charges de copropriété : 150 €.
Honoraires à la charge du vendeur.
Barème des honoraires
DPE
A
B
C
D
E
F
G
GES
A
B
C
D
E
F
G
Maison à SEPTEMES-LES-VALLONS
Maison à SEPTEMES-LES-VALLONS
Maison à SEPTEMES-LES-VALLONS
Maison à SEPTEMES-LES-VALLONS
Maison à SEPTEMES-LES-VALLONS
Maison à SEPTEMES-LES-VALLONS
Maison à SEPTEMES-LES-VALLONS
Maison à SEPTEMES-LES-VALLONS
Maison à SEPTEMES-LES-VALLONS
Maison à SEPTEMES-LES-VALLONS
Maison à SEPTEMES-LES-VALLONS
Maison à SEPTEMES-LES-VALLONS
Maison à SEPTEMES-LES-VALLONS
Maison à SEPTEMES-LES-VALLONS
Maison à SEPTEMES-LES-VALLONS
Maison à SEPTEMES-LES-VALLONS
Géorisques

Les informations sur les risques auxquels ce bien est exposé sont disponibles sur le site Géorisques : www.georisques.gouv.fr

Ce site est protégé par hCaptcha Politique de confidentialité et Conditions d’utilisation s’appliquent.

En poursuivant votre navigation sans modifier vos paramètres, vous acceptez l'utilisation de cookies susceptibles de réaliser des statistiques de visite. Cliquez ici pour plus d'informations