Bénéficiez des services de nos partenaires locaux soigneusement sélectionnés
pour vous accompagner dans votre parcours d'achat immobilier

3 pièces, 58 m², traversant, clair

— Paris-11e 75011 —
677 000 €
58 m²
3 pièces

Nos partenaires locaux
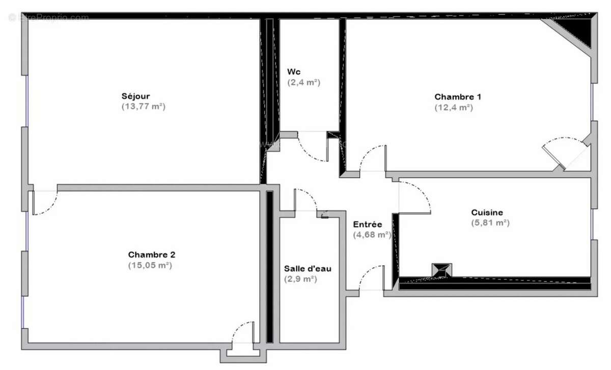
PARIS XIème - SAINT-AMBROISE : Situé au 2ème étage sans ascenseur d'un immeuble en pierre de taille bien géré et entretenu, 3 pièces de 57,66 m² au sol (57,01 m² carrez) traversant en bon état.

Il se compose d'une entrée qui mène de part et d'autre de l'appartement : sur cour; une cuisine dînatoire et une chambre. Sur rue; un séjour et une chambre. Une salle d'eau et un toilette séparée sont également accessibles depuis l'entrée/dégagement. Une cave complète le bien.

Le chauffage est individuel et au gaz. Il en va de même pour l'eau chaude.
Les charges de copropriété sont maîtrisées; 380 euros par trimestre.

L'appartement est en bon état général.

L'appartement se situe à une rue du Square Gardette, 5 mn de le ligne de métro L9 et L3.

LES POINTS + : LOCALISATION - CLARTE - DISTRIBUTION - ETAT GENERAL
Voir plus

Référence: 86826829
Barème des honoraires
DPE
A
B
C
D
E
F
G
GES
A
B
C
D
E
F
G
Appartement à PARIS-11E
Appartement à PARIS-11E
Appartement à PARIS-11E
Appartement à PARIS-11E
Appartement à PARIS-11E
Appartement à PARIS-11E
Appartement à PARIS-11E
Appartement à PARIS-11E
Appartement à PARIS-11E
Appartement à PARIS-11E
Appartement à PARIS-11E
Géorisques

Les informations sur les risques auxquels ce bien est exposé sont disponibles sur le site Géorisques : www.georisques.gouv.fr

Ce site est protégé par hCaptcha Politique de confidentialité et Conditions d’utilisation s’appliquent.

En poursuivant votre navigation sans modifier vos paramètres, vous acceptez l'utilisation de cookies susceptibles de réaliser des statistiques de visite. Cliquez ici pour plus d'informations