Bénéficiez des services de nos partenaires locaux soigneusement sélectionnés
pour vous accompagner dans votre parcours d'achat immobilier

Maison 5 pieces 3 chambres

— Quincy-Sous-Senart 91480 —
249 900 €
96 m² / 100 m²
5 pièces
balcon/terrasse

Nos partenaires locaux
À 5 minutes à pied de la gare de Boussy-Saint-Antoine !

Idéalement située à deux pas de la gare de Gare de Boussy-Saint-Antoine, cette maison 5 pièces parfaitement entretenue vous séduira par son agencement fonctionnel et son environnement pratique au quotidien.

Au rez-de-chaussée :

Une entrée accueillante
Un séjour lumineux avec accès direct à la véranda
Accès jardin depuis la véranda, idéal pour profiter des beaux jours
Une cuisine indépendante
WC séparés
Chaufferie / buanderie avec lavabo

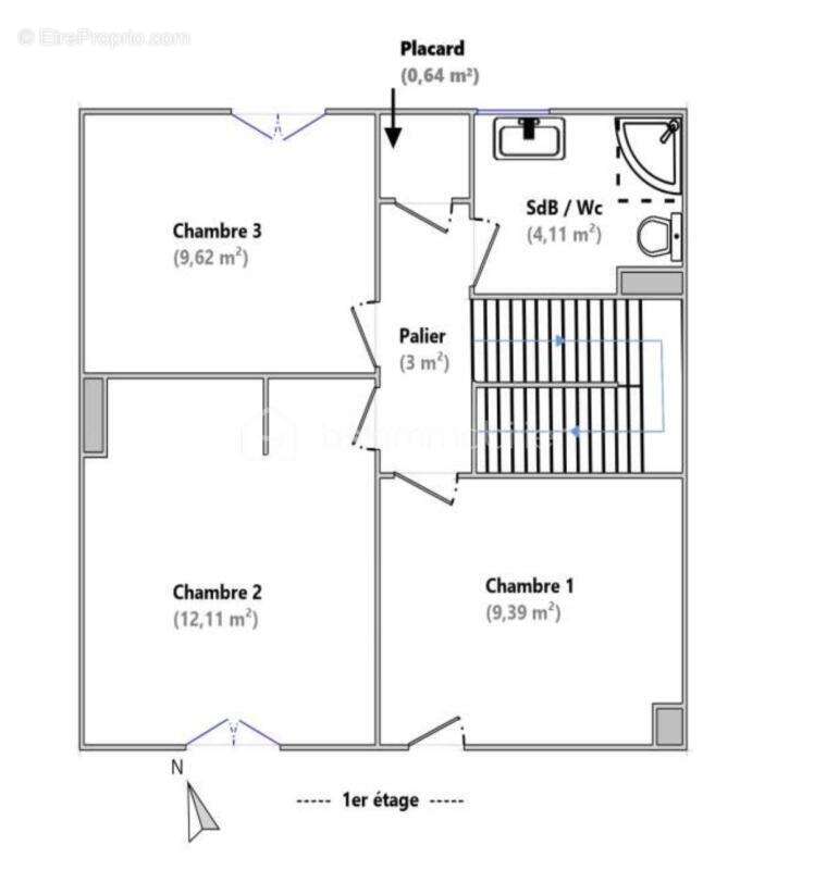
À l'étage :

Trois chambres confortables

Une salle d'eau avec WC

Un garage complète ce bien.

Maison soignée, idéale pour une famille recherchant le confort, la proximité des transports et un cadre de vie agréable.

Situation privilégiée, à proximité immédiate des commodités et des axes principaux. visites 7/7

Cette annonce référence 322832 vous est présentée par votre agent commercial BSK Immobilier CHRISTOPHER BADETS (EI) immatriculé au RSAC de MELUN (77000) sous le numéro 89[Coordonnées masquées]19.

Prix du bien : 249 900,00 €
Les honoraires d'agence sont à la charge du vendeur.

A propos des performances énergétiques :
Date de réalisation du diagnostic énergétique : 26/02/2026
Score DPE : 201 kWhEP/m²/an
Score GES : 44 kgepCO2/m²/an
Montant estimé des dépenses annuelles d'énergie pour un usage standard : entre 1760.00 € et 2420.00 € par an. Prix moyens des énergies indexés sur l'année 2023 (abonnements compris).

Les informations sur les risques auxquels ce bien est exposé sont disponibles sur le site Géorisques : www.georisques.gouv.fr
Voir plus

Référence: 322832
Honoraires à la charge du vendeur.
DPE
A
B
C
D
E
F
G
GES
A
B
C
D
E
F
G
Maison à QUINCY-SOUS-SENART
Maison à QUINCY-SOUS-SENART
Maison à QUINCY-SOUS-SENART
Maison à QUINCY-SOUS-SENART
Maison à QUINCY-SOUS-SENART
Maison à QUINCY-SOUS-SENART
Maison à QUINCY-SOUS-SENART
Maison à QUINCY-SOUS-SENART
Maison à QUINCY-SOUS-SENART
Maison à QUINCY-SOUS-SENART
Maison à QUINCY-SOUS-SENART
Géorisques

Les informations sur les risques auxquels ce bien est exposé sont disponibles sur le site Géorisques : www.georisques.gouv.fr

Ce site est protégé par hCaptcha Politique de confidentialité et Conditions d’utilisation s’appliquent.

En poursuivant votre navigation sans modifier vos paramètres, vous acceptez l'utilisation de cookies susceptibles de réaliser des statistiques de visite. Cliquez ici pour plus d'informations