Bénéficiez des services de nos partenaires locaux soigneusement sélectionnés
pour vous accompagner dans votre parcours d'achat immobilier

Maison 208 m² à Vouvray

— Vouvray 37210 —
495 000 €
208 m² / 584 m²
6 pièces
parkingbalcon/terrassejardin

Nos partenaires locaux
37210 - VOUVRAY, VALLEE DE NOUY - 5 PIÈCES - 3 CHAMBRES - 208M² - MAISON SEMI TROGLODYTE DE CARACTERE AVEC TERRASSE SUD EN PIERRE DE TRAVERTIN ET JARDIN AVEC VUE DEGAGEE - BIEN TRES RARE !
VENTE EN INTERCABINET ACCEPTEE

efficity, l'agence qui estime votre bien en ligne, vous propose cette opportunité d'exception située sur la commune Vouvray en région Touraine, offrant un cadre de vie exceptionnel alliant charme, authenticité et tranquillité.

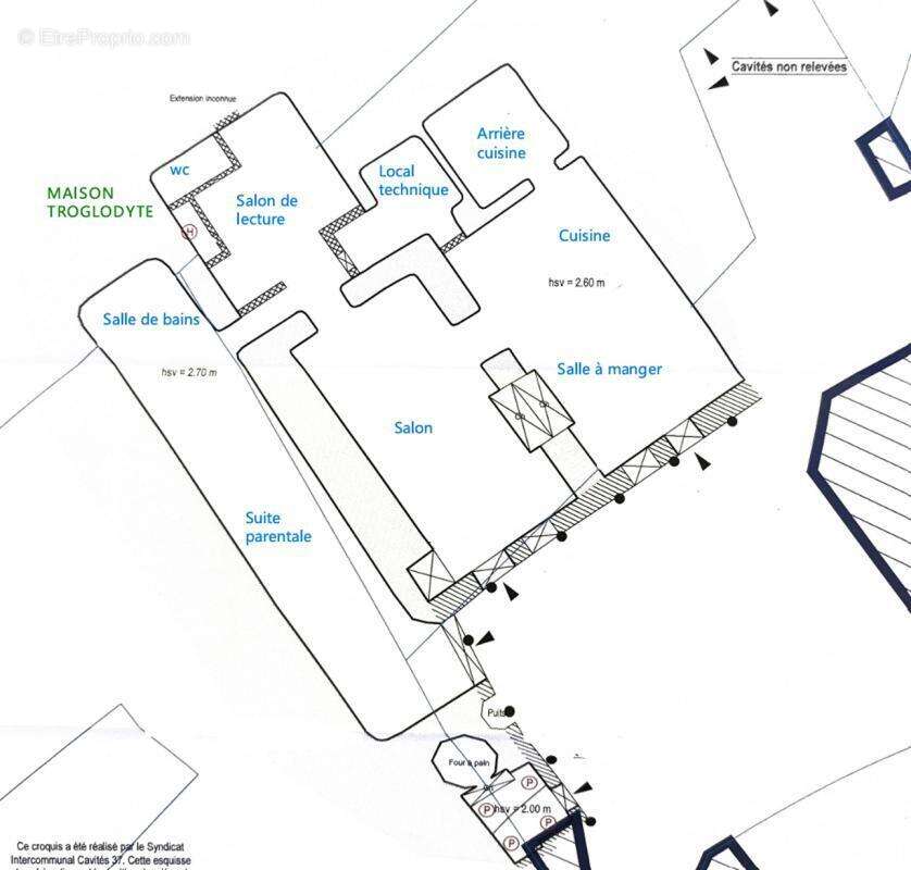
Nichée dans la Vallée de Nouy, cette propriété saura vous séduire par son cachet unique. Elle se compose d'une partie troglodyte exposée sud et d'une petite maison traditionnelle reliée par une construction abritant un couloir.

La partie troglodyte d'une surface de 140m² offre une salle à manger d'environ 40 m² avec cuisine aménagée et équipée, cellier et poêle à bois ; un vaste salon lumineux de 40 m², également équipé d'un poêle à bois, ouvrant sur la terrasse plein sud en pierre de travertin ; une suite parentale d'environ 40 m² avec dressing et salle de bains (baignoire, douche, WC suspendu) ; un salon de lecture avec rangements, un WC séparé et un local technique.

La maison traditionnelle d'une surface de 70m² se compose, au rez-de-chaussée, d'un dégagement avec placard, d'une salle d'eau, d'un WC séparé avec lave-mains, d'une chambre de 23m² et d'une buanderie ; à l'étage, d'une grande chambre mansardée lumineuse.
Elle offre la possibilité d'une habitation totalement indépendante, idéale pour une location type gite et saisonnière ou pour accueillir des convives.

L'extérieur comprend trois grandes caves, un puits, une remise avec four à pain fonctionnel, un coin stockage de bois, une terrasse en travertin d'environ 50 m² et un jardin au dessus d'environ 250 m² surplombant Vouvray avec vue dégagée somptueuse.
Possibilité d'aménager la plus grande cave pour s'offrir une salle de réception, salle de jeux et salle propice aux fêtes d'environ 150m² supplémentaires.

Excellente qualité technique : Performance énergétique, chauffage par pompe à chaleur avec climatisation réversible, VMC double flux, vidéosurveillance et alarme ; toiture et charpente de la maison non troglodyte neuves. Bien rare, clés en main, offrant cachet, authenticité et confort moderne. La partie troglodyte est très saine et les installations de ventilation y sont maximisées.

Environnement : cadre calme et paysager au cœur des vignobles de Vouvray et proche des bords de Loire, idéal pour les promenades et activités œnotouristiques. Commerces de proximité (boulangerie, pharmacie, supérette), services municipaux et écoles maternelle/élémentaire à proximité immédiate du village. Accès routiers directs vers Tours et l'autoroute A10 ; Tours est accessible en voiture en environ 15 minutes. Gare de Saint-Pierre-des-Corps à environ 20 minutes en voiture, facilitant les déplacements régionaux et nationaux.

Cette propriété saura vous charmer par ses prestations de qualité, son ambiance chaleureuse et son atmosphère unique.

Ne ratez pas cette occasion rare d'acquérir une maison de caractère prête à vivre dans un environnement recherché de Vouvray. Laissez-vous séduire par ce véritable havre de paix.
Les informations sur les risques auxquels ce bien est exposé sont disponibles sur le site Georisque : georisques. gouv. fr
Victor Oyono - EI - est Agent Commercial mandataire en immobilier, immatriculé au Registre Spécial des Agents Commerciaux du Tribunal de Commerce de Tours sous le n°885241000.
Siège social du mandant : effiCity, 48 avenue de Villiers - 75017 PARIS - Société par Actions Simplifiée, société au capital de 132 373,05 euros, immatriculée au RCS Paris 497 617 746 et titulaire de la Carte professionnelle CPI 75[Coordonnées masquées]02 025 - CCI Paris IDF - Caisse de Garantie : GALIAN Assurances 89 rue de la Boétie 75008 Paris
Voir plus

Référence: 209375
Honoraires d'agence de 4.21% à la charge de l'acquéreur
Barème des honoraires
DPE
A
B
C
D
E
F
G
GES
A
B
C
D
E
F
G
Maison à VOUVRAY
Maison à VOUVRAY
Maison à VOUVRAY
Maison à VOUVRAY
Maison à VOUVRAY
Maison à VOUVRAY
Maison à VOUVRAY
Maison à VOUVRAY
Maison à VOUVRAY
Maison à VOUVRAY
Maison à VOUVRAY
Maison à VOUVRAY
Maison à VOUVRAY
Maison à VOUVRAY
Maison à VOUVRAY
Maison à VOUVRAY
Maison à VOUVRAY
Maison à VOUVRAY
Maison à VOUVRAY
Maison à VOUVRAY
Géorisques

Les informations sur les risques auxquels ce bien est exposé sont disponibles sur le site Géorisques : www.georisques.gouv.fr

Ce site est protégé par hCaptcha Politique de confidentialité et Conditions d’utilisation s’appliquent.

En poursuivant votre navigation sans modifier vos paramètres, vous acceptez l'utilisation de cookies susceptibles de réaliser des statistiques de visite. Cliquez ici pour plus d'informations