Bénéficiez des services de nos partenaires locaux soigneusement sélectionnés
pour vous accompagner dans votre parcours d'achat immobilier

Maison 170 m² à Pierrefitte-Sur-Seine

— Pierrefitte-Sur-Seine 93380 —
495 000 €
170 m² / 485 m²
6 pièces
parkingjardin

Nos partenaires locaux
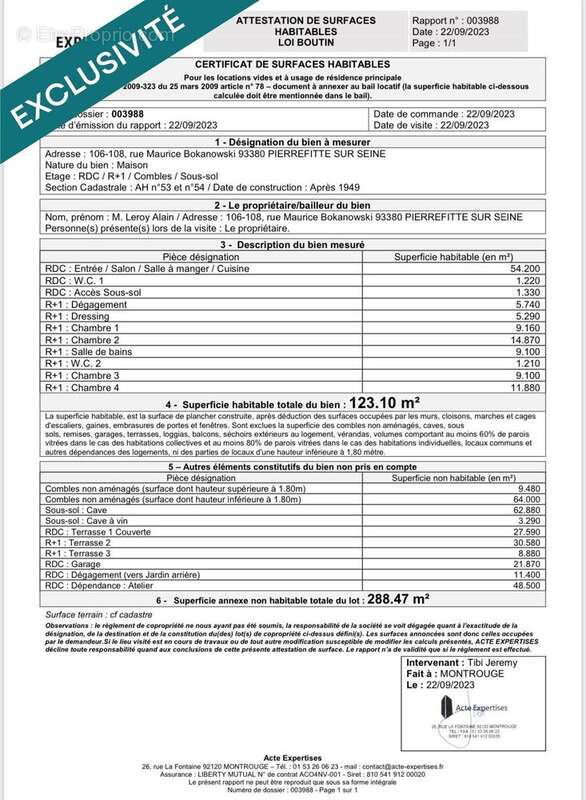
Située à Pierrefitte-sur-Seine (93380), cette maison bénéficie d'un environnement calme et familial. Proche des écoles, commerces et transports en commun, elle offre un cadre de vie pratique et agréable pour les familles en quête de tranquillité. Édifiée sur un terrain de 485 m², cette propriété comprend une maison principale de 123 m² et une dépendance de 48 m², offrant une surface habitable totale de 170 m². Dotée de 2 places de parking, elle dispose également d'un jardin de 350 m², idéal pour profiter des belles journées en extérieur. À l'intérieur, cette maison de 6 pièces se compose de 4 chambres climatisée, 3 toilettes et 2 salles de bain, offrant tout le confort nécessaire pour toute la famille. Construite en 1986, elle se distingue par ses espaces lumineux et fonctionnels, parfaits pour un quotidien harmonieux et convivial. Profitant d'une taxe foncière de 3236¤, cette demeure est une opportunité à ne pas manquer pour un foyer en quête d'un bien familial chaleureux et bien entretenu. Les informations sur les risques auxquels ce bien est exposé sont disponibles sur le site Géorisques : www.georisques.gouv.frPrix de vente : 495 000 ¤Honoraires charge vendeurContactez votre conseiller SAFTI : David BISMUTH, Tél. : [Coordonnées masquées], E-mail : [Coordonnées masquées] - EI - Agent commercial immatriculé au RSAC de NANTERRE sous le numéro 453 986 358.Informations LOI ALUR : Honoraires charge vendeur. (gedeon_26118_32876116)
Voir plus

Référence: 1623139
Honoraires à la charge du vendeur.
Barème des honoraires
DPE
A
B
C
D
E
F
G
GES
A
B
C
D
E
F
G
Photo 1 - Maison à PIERREFITTE-SUR-SEINE
Photo 1
Photo 2 - Maison à PIERREFITTE-SUR-SEINE
Photo 2
Photo 3 - Maison à PIERREFITTE-SUR-SEINE
Photo 3
Photo 4 - Maison à PIERREFITTE-SUR-SEINE
Photo 4
Photo 5 - Maison à PIERREFITTE-SUR-SEINE
Photo 5
Photo 6 - Maison à PIERREFITTE-SUR-SEINE
Photo 6
Photo 7 - Maison à PIERREFITTE-SUR-SEINE
Photo 7
Photo 8 - Maison à PIERREFITTE-SUR-SEINE
Photo 8
Photo 9 - Maison à PIERREFITTE-SUR-SEINE
Photo 9
Géorisques

Les informations sur les risques auxquels ce bien est exposé sont disponibles sur le site Géorisques : www.georisques.gouv.fr

Ce site est protégé par hCaptcha Politique de confidentialité et Conditions d’utilisation s’appliquent.

En poursuivant votre navigation sans modifier vos paramètres, vous acceptez l'utilisation de cookies susceptibles de réaliser des statistiques de visite. Cliquez ici pour plus d'informations