Bénéficiez des services de nos partenaires locaux soigneusement sélectionnés
pour vous accompagner dans votre parcours d'achat immobilier

Vente studio 24 m2 Lodi/La Plaine 13006

— Marseille-6e 13006 —
139 000 €
24 m²
1 pièce

Nos partenaires locaux
**** DISPONIBLE ****

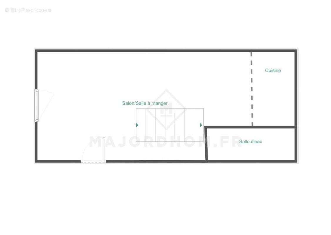
Vente magnifique studio de 24 m2 idéalement situé au cœur d'un quartier vivant et prisé, à deux pas des transports, des commerces et de toutes les commodités Lodi/La Plaine 13006, cet appartement avec mezzanine saura vous séduire par son cachet, sa belle hauteur sous plafond et son ambiance chaleureuse.

Dès l'entrée, vous découvrez de jolis volumes et une pièce de vie lumineuse, agréable à vivre au quotidien, mettant en valeur le charme de l'ancien. L'espace a été intelligemment agencé pour offrir confort et fonctionnalité. Le coin cuisine, simple et pratique, permet une utilisation fluide et efficace, tout en s'intégrant harmonieusement à la pièce de vie. Le coin nuit, installé sur une mezzanine de 6 m² (hors surface Carrez), offre un espace cosy et intimiste, idéal pour optimiser la surface et profiter pleinement de la hauteur sous plafond.

L'appartement dispose également d'une salle d'eau moderne, équipée d'une élégante douche à l'italienne, alliant confort et esthétisme. Ce bien représente une opportunité rare, aussi bien pour un premier achat que pour un investissement locatif, grâce à son emplacement recherché, son charme et son fort potentiel locatif. N'attendez plus pour découvrir ce bien. Rendez-vous sur majordhom.fr pour une visite virtuelle haute définition, des plans détaillés et des photos supplémentaires. Et pour ne manquer aucune opportunité, contactez nous !

Informations sur les risques naturels et technologiques disponibles sur www.georisques.gouv.fr.

Les honoraires d'agence sont exclusivement à la charge du vendeur, un avantage non négligeable.

Consommation énergie primaire: 260 kWh/m²/an.
Montant estimé des dépenses annuelles d'énergie pour un usage standard: entre 480€ et 750€.
Ces prix sont une estimations des années 2021, 2022, 2023, conformément à l'arrété du 31 mars 2021 en vigueur lors de l'établissement du DPE.

Bien soumis au statut de copropriété: 6 lots
Le montant moyen annuel de la quote-part du budget prévisionnel est de : 1080€
Aucune procédure en cours sur la copropriété.

Pour vous accompagner dans ce projet, vous bénéficiez de l'expertise de l'agence Majordhom, représentée par un agent commercial titulaire de la carte professionnelle délivrée par la CCI.

En tant que professionnel de l'immobilier, Majordhom s'engage à respecter scrupuleusement la loi Hoguet garantissant une transaction sécurisée et transparente.

N'attendez plus pour découvrir ce bien. Rendez-vous sur MAJORDHOM FR pour des plans détaillés et des photos supplémentaires. Et pour ne manquer aucune opportunité, contactez nous !
Voir plus

Référence: 6459C4
Bien en copropriété. Nombre de lots : 6. Charges de copropriété : 90 €.
DPE
A
B
C
D
E
F
G
GES
A
B
C
D
E
F
G
Appartement à MARSEILLE-6E
Appartement à MARSEILLE-6E
Appartement à MARSEILLE-6E
Appartement à MARSEILLE-6E
Appartement à MARSEILLE-6E
Appartement à MARSEILLE-6E
Appartement à MARSEILLE-6E
Appartement à MARSEILLE-6E
Appartement à MARSEILLE-6E
Appartement à MARSEILLE-6E
Appartement à MARSEILLE-6E
Géorisques

Les informations sur les risques auxquels ce bien est exposé sont disponibles sur le site Géorisques : www.georisques.gouv.fr

Ce site est protégé par hCaptcha Politique de confidentialité et Conditions d’utilisation s’appliquent.

En poursuivant votre navigation sans modifier vos paramètres, vous acceptez l'utilisation de cookies susceptibles de réaliser des statistiques de visite. Cliquez ici pour plus d'informations