Bénéficiez des services de nos partenaires locaux soigneusement sélectionnés
pour vous accompagner dans votre parcours d'achat immobilier

À saisir : 3 plateaux à rénover en t3 à montmin

— Talloires 74210 —
195 000 €
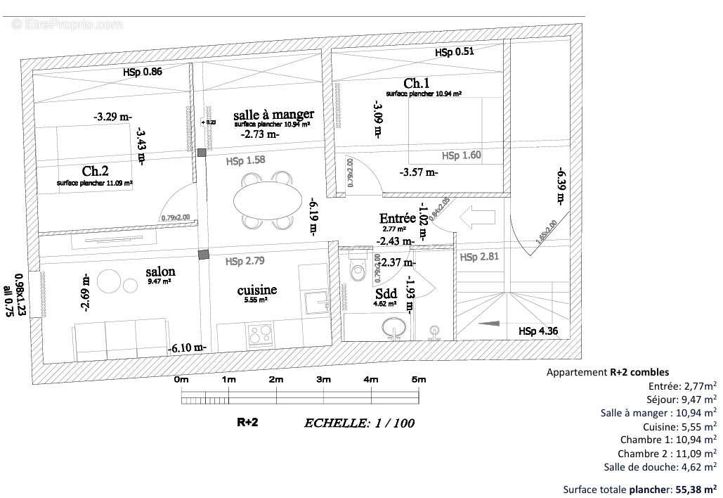
55 m²
3 pièces

Nos partenaires locaux
Vue montagne , cadre authentique, fort potentiel

Au coeur du charmant village de Montmin, au pied de la Tournette, découvrez une opportunité rare : 3 plateaux bruts à réhabiliter, au sein d'une petite copropriété intimiste de seulement 3 logements.

Un projet idéal pour :

- une résidence secondaire pleine de charme
- une rénovation sur mesure selon vos envies pour votre résidence principale
- un investissement locatif à potentiel

Les lots disponibles :

- Lot 1 : Rez-de-chaussée (52 m²) : 195 000 euros
Avec balcon, cave et stationnement privatif
- Lot 2 : 1er étage (53 m²) : 205 000 euros
Avec accès à un local commun et stationnement privatif
- Lot 3 : 2e étage (55 m²) : 222 000 euros
Avec accès à un local commun et stationnement privatif
Possibilité de création d'une mezzanine

Caractéristiques et travaux :
- Plateaux vendus bruts : travaux à prévoir (électricité, plomberie, isolation, aménagement intérieur)
- Compteurs d'eau et d'électricité individuels installés
- Huisseries neuves installées (porte palière et fenêtres déjà)

Localisation privilégiée :
- A seulement 12 minutes de Talloires et 20 minutes d'Annecy
- Environnement calme et naturel, idéal pour les amoureux de la montagne
- Superbes vues dégagées sur les montagnes et le village

Informations complémentaires :
- Honoraires à la charge du vendeur
- DPE non applicable (plateaux bruts)
- Charges de copropriété : 0 euros

Pour visiter et vous accompagner dans votre projet contactez Sébastien Gianadda par courriel à [Coordonnées masquées]. Cette présente annonce a été rédigée sous la responsabilité éditoriale de Sébastien Gianadda agissant sous le statut d'agent commercial immatriculé au RSAC ANNECY 824 000 897 auprès de la SAS PROPRIETES PRIVEES, Réseau national immobilier, au capital de 40000 euros, 44 allées des cinq continents 44120 VERTOU, RCS Nantes n° 497 624 777 00040, Carte professionnelle T et G n°CPI 44[Coordonnées masquées]10 388 CCI Nantes-Saint Nazaire. Garantie GALIAN -89 rue de la Boétie, 75008 paris. Mandat 425158GIN

Copropriété de 3 lots - dont 3 lots habitation.
Sébastien GIANADDA (EI) Agent Commercial - Numéro RSAC : ANNECY 824 000 897 - .
Voir plus

Référence: 425158GIN
Bien en copropriété. Nombre de lots : 3.
Honoraires à la charge du vendeur.
Appartement à TALLOIRES
Appartement à TALLOIRES
Appartement à TALLOIRES
Appartement à TALLOIRES
Appartement à TALLOIRES
Appartement à TALLOIRES
Appartement à TALLOIRES
Appartement à TALLOIRES
Appartement à TALLOIRES
Appartement à TALLOIRES
Appartement à TALLOIRES
Appartement à TALLOIRES
Appartement à TALLOIRES
Appartement à TALLOIRES
Appartement à TALLOIRES
Appartement à TALLOIRES
Appartement à TALLOIRES
Appartement à TALLOIRES
Géorisques

Les informations sur les risques auxquels ce bien est exposé sont disponibles sur le site Géorisques : www.georisques.gouv.fr

Ce site est protégé par hCaptcha Politique de confidentialité et Conditions d’utilisation s’appliquent.

En poursuivant votre navigation sans modifier vos paramètres, vous acceptez l'utilisation de cookies susceptibles de réaliser des statistiques de visite. Cliquez ici pour plus d'informations