Maison 3 pièces 77 m2

— Chaille-Les-Marais 85450 —
219 900 €
77 m² / 560 m²
3 pièces
parkingbalcon/terrassejardin

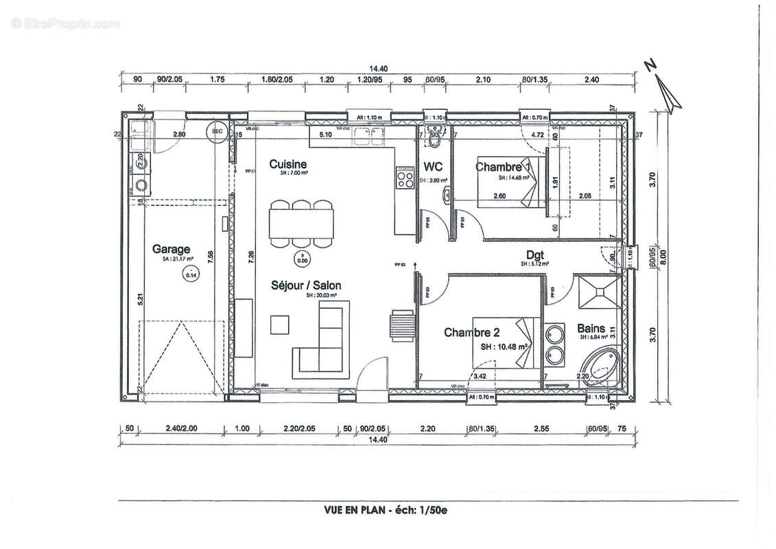
Sur la commune de Chaillé-Les-Marais, à 33 km de La Rochelle, 17 km de Luçon et 22 km de Fontenay-Le-Comte, Atlantique Courtage Rochelais vous propose à la vente une maison plain-pied achevée en 2022 sous garantie décennale et dommage ouvrage de type T3 d'une surface habitable d'environ 77 m2 avec un jardin d'environ 450 m2 et d'un garage. Le tout sur une parcelle d'environ 560 m2 et terrain piscinable.

La maison est composée d'une entrée donnant accès à un salon / séjour avec cuisine américaine équipée d'une surface d'environ 37 m2, d'un dégagement menant à une chambre avec dressing de 14,50 m2, une chambre de 10,50 m2, d'une salle de bain avec baignoire et douche à l'italienne et d'un WC. Le tout avec poêle à granulés, radiateurs électriques et ballon thermodynamique.

Possibilité de réaliser une extension pour créer une troisième chambre.

Atlantique Courtage Rochelais est une agence indépendante spécialisée dans la transaction immobilière, le financement, l'assurance, le patrimoine sur la commune de La Rochelle. Bénéficiez d'un service personnalisé pour réaliser vos projets en toute sécurité.
Voir plus

Référence: 35
Honoraires d'agence de 4.71% à la charge de l'acquéreur
Barème des honoraires
DPE
A
B
C
D
E
F
G
GES
A
B
C
D
E
F
G
Maison à CHAILLE-LES-MARAIS
Maison à CHAILLE-LES-MARAIS
Maison à CHAILLE-LES-MARAIS
Maison à CHAILLE-LES-MARAIS
Maison à CHAILLE-LES-MARAIS
Maison à CHAILLE-LES-MARAIS
Maison à CHAILLE-LES-MARAIS
Maison à CHAILLE-LES-MARAIS
Maison à CHAILLE-LES-MARAIS
Maison à CHAILLE-LES-MARAIS
Maison à CHAILLE-LES-MARAIS
Maison à CHAILLE-LES-MARAIS
Maison à CHAILLE-LES-MARAIS
Maison à CHAILLE-LES-MARAIS
Géorisques

Les informations sur les risques auxquels ce bien est exposé sont disponibles sur le site Géorisques : www.georisques.gouv.fr

Ce site est protégé par hCaptcha Politique de confidentialité et Conditions d’utilisation s’appliquent.