Bénéficiez des services de nos partenaires locaux soigneusement sélectionnés
pour vous accompagner dans votre parcours d'achat immobilier

A vendre – t3 - traversant – centre cannes la bocca

— Cannes 06150 —
299 000 €
61 m²
3 pièces
balcon/terrasseascenseur

Nos partenaires locaux
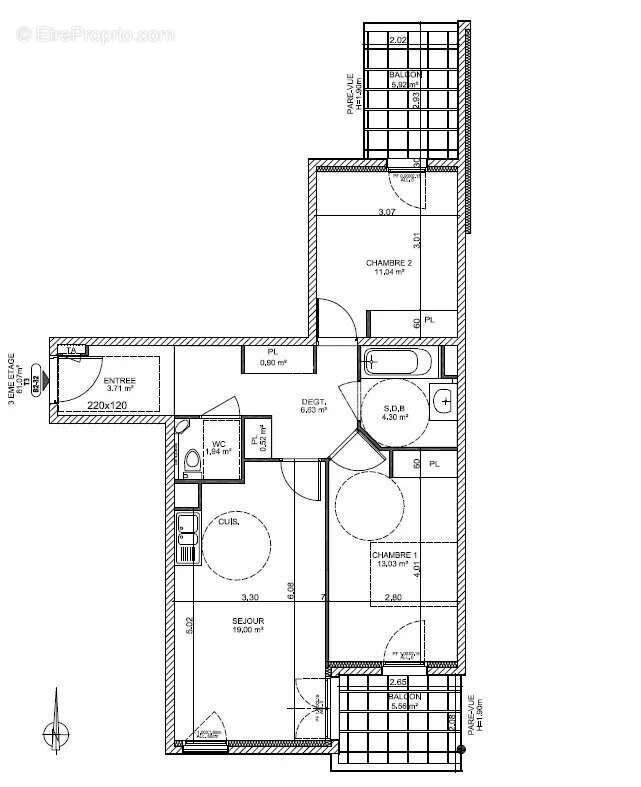
Situé au cœur de Cannes La Bocca, à proximité immédiate des commerces, transports et écoles, découvrez ce 3 pièces traversant de 61 m², situé au 3ᵉ étage sur 5 d’une résidence récente, sécurisée et parfaitement entretenue.
Un agencement fonctionnel et lumineux :
- Spacieuse entrée avec placards intégrés
- Dégagement central desservant harmonieusement l’ensemble des pièces
- Appartement traversant Sud/Nord, offrant une belle luminosité naturelle toute la journée
- Deux balcons, un de chaque côté de l’appartement

Côté Sud (côté rue) : balcon accessible depuis le séjour et une chambre
Côté Nord (côté cour) : second balcon au calme absolu, accessible depuis la deuxième chambre
- Séjour lumineux avec cuisine ouverte moderne
- Deux chambres confortables
- Salle de bains
- WC séparés

Une place de parking en sous-sol en complement.

Pour toute information complémentaire ou pour organiser une visite, veuillez contacter Gordana.
RSAC n° 908 776 131

« Les informations sur les risques auxquels ce bien est exposé sont disponibles sur le site Géorisques : georisques.gouv.fr ».
Voir plus

Référence: 86836612
Barème des honoraires
DPE
A
B
C
D
E
F
G
GES
A
B
C
D
E
F
G
Appartement à CANNES
Appartement à CANNES
Appartement à CANNES
Appartement à CANNES
Appartement à CANNES
Appartement à CANNES
Appartement à CANNES
Appartement à CANNES
Appartement à CANNES
Appartement à CANNES
Appartement à CANNES
Appartement à CANNES
Appartement à CANNES
Géorisques

Les informations sur les risques auxquels ce bien est exposé sont disponibles sur le site Géorisques : www.georisques.gouv.fr

Ce site est protégé par hCaptcha Politique de confidentialité et Conditions d’utilisation s’appliquent.

En poursuivant votre navigation sans modifier vos paramètres, vous acceptez l'utilisation de cookies susceptibles de réaliser des statistiques de visite. Cliquez ici pour plus d'informations