Bénéficiez des services de nos partenaires locaux soigneusement sélectionnés
pour vous accompagner dans votre parcours d'achat immobilier

Maison avec double garage et dépendance - COTEAUX - RUEIL-MALMAISON

— Rueil-Malmaison 92500 —
895 000 €
186 m² / 600 m²
5 pièces
parkingjardin

Nos partenaires locaux
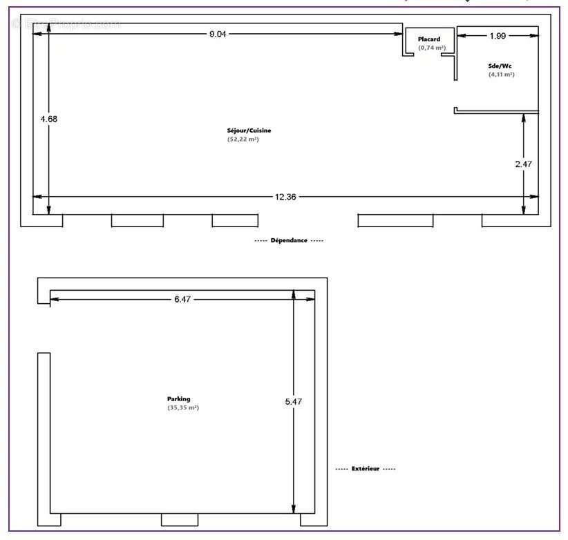
EXCLUSIVITÉ - Dans un environnement calme et résidentiel, venez découvrir cette maison familiale offrant une surface totale d’environ 186 m², composée d’une maison principale de 130 m² habitables et d’un espace dépendance/atelier d’environ 56 m², le tout édifié sur un terrain arboré de 600 m².
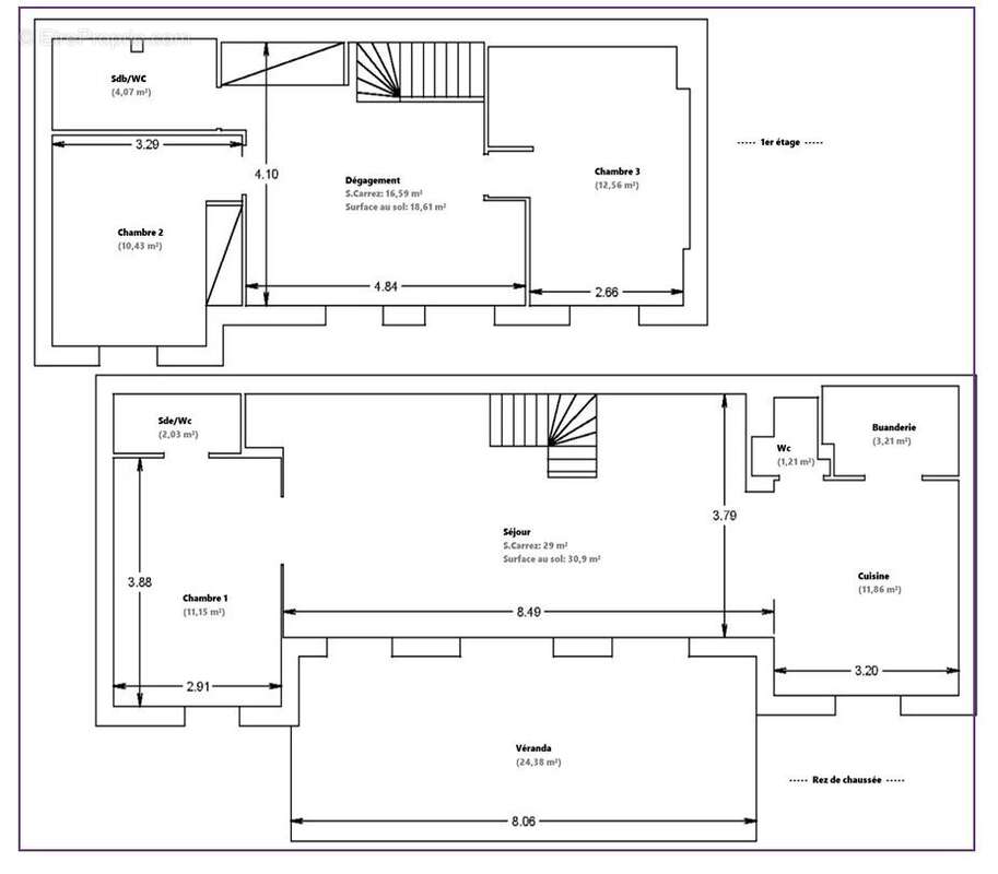
La maison principale, d’une superficie de 130 m², se compose au rez-de-chaussée d’un séjour avec cuisine ouverte aménagée, d’une véranda faisant office de cuisine d’été, d’une buanderie, ainsi que d’une chambre avec salle d’eau privative et WC.
À l’étage, un palier dessert deux chambres et une salle de bains avec WC.
La dépendance d’environ 56 m², entièrement aménagée, comprend un séjour avec cuisine ouverte ainsi qu’une salle d’eau avec WC. Cet espace peut convenir pour accueillir la famille, créer un atelier ou exercer une activité indépendante.
Un double garage fermé de 35 m² complète ce bien.
Maison offrant un cadre de vie agréable, au calme, avec de beaux volumes et un fort potentiel, à proximité du centre-ville, des écoles et des transports. Une belle opportunité pour une famille recherchant espace et tranquillité dans un secteur prisé.

Des projections 3D de la rénovation sont disponibles sur demande.
Voir plus

Référence: 86837914
Barème des honoraires
DPE
A
B
C
D
E
F
G
GES
A
B
C
D
E
F
G
Maison à RUEIL-MALMAISON
Maison à RUEIL-MALMAISON
Maison à RUEIL-MALMAISON
Maison à RUEIL-MALMAISON
Maison à RUEIL-MALMAISON
Maison à RUEIL-MALMAISON
Maison à RUEIL-MALMAISON
Maison à RUEIL-MALMAISON
Maison à RUEIL-MALMAISON
Maison à RUEIL-MALMAISON
Maison à RUEIL-MALMAISON
Maison à RUEIL-MALMAISON
Maison à RUEIL-MALMAISON
Maison à RUEIL-MALMAISON
Maison à RUEIL-MALMAISON
Maison à RUEIL-MALMAISON
Maison à RUEIL-MALMAISON
Maison à RUEIL-MALMAISON
Maison à RUEIL-MALMAISON
Maison à RUEIL-MALMAISON
Maison à RUEIL-MALMAISON
Maison à RUEIL-MALMAISON
Maison à RUEIL-MALMAISON
Maison à RUEIL-MALMAISON
Maison à RUEIL-MALMAISON
Maison à RUEIL-MALMAISON
Maison à RUEIL-MALMAISON
Maison à RUEIL-MALMAISON
Maison à RUEIL-MALMAISON
Géorisques

Les informations sur les risques auxquels ce bien est exposé sont disponibles sur le site Géorisques : www.georisques.gouv.fr

Ce site est protégé par hCaptcha Politique de confidentialité et Conditions d’utilisation s’appliquent.

En poursuivant votre navigation sans modifier vos paramètres, vous acceptez l'utilisation de cookies susceptibles de réaliser des statistiques de visite. Cliquez ici pour plus d'informations