Bénéficiez des services de nos partenaires locaux soigneusement sélectionnés
pour vous accompagner dans votre parcours d'achat immobilier

Lattes-Maurin – 190 m² habitables – Terrain 1 360 m² – Fort potentiel

— Lattes 34970 —
685 000 €
190 m² / 1 360 m²
6 pièces
parking

Nos partenaires locaux
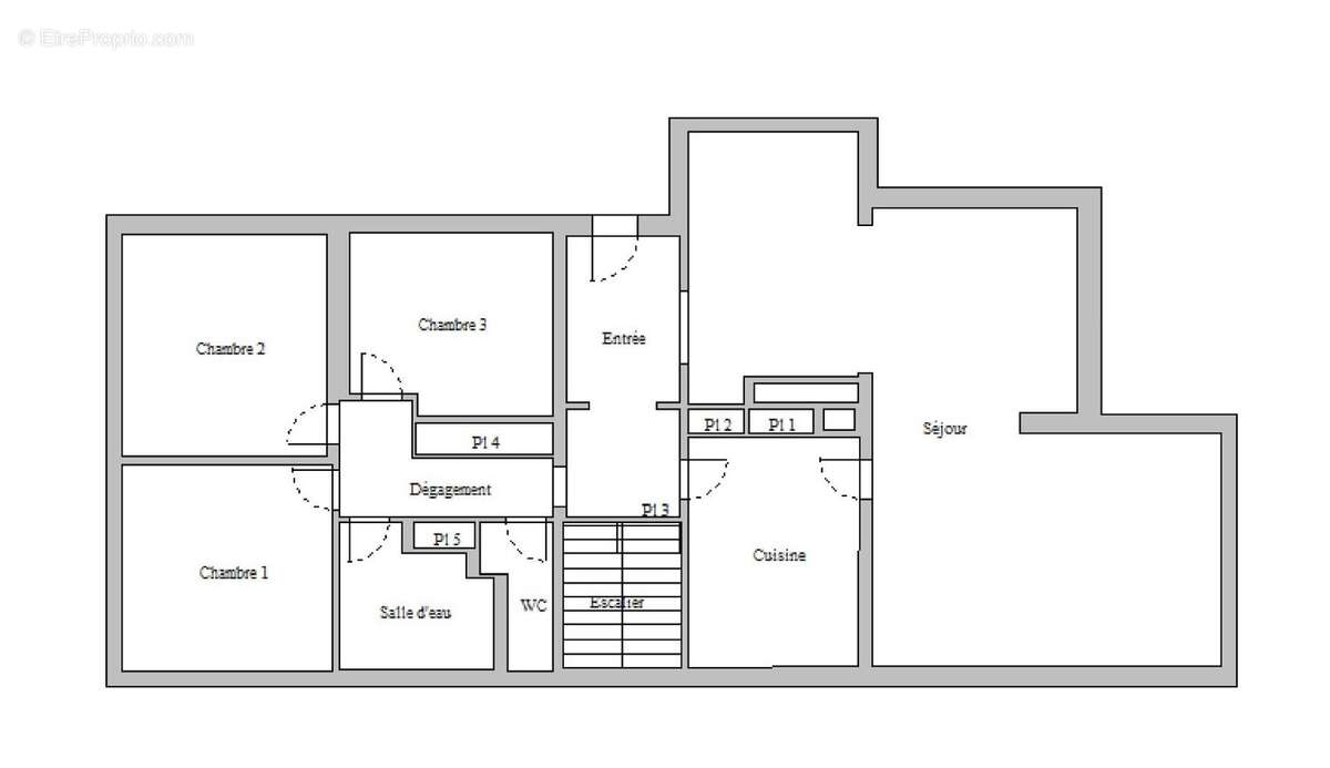
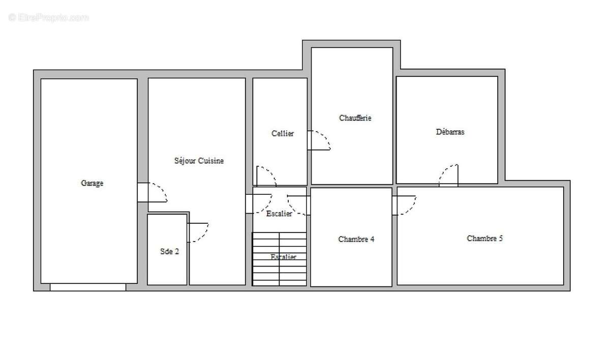
Lattes-Maurin – Dans un environnement résidentiel calme et recherché, maison à rénover d'environ 190 m² habitables sur une belle parcelle de plus de 1 360 m², rare sur le secteur. Le niveau principal (env. 135 m²) comprend un séjour lumineux avec cheminée, une salle à manger, une cuisine indépendante, 3 chambres, une salle de bain et WC séparés. En rez-de-jardin, un espace d'environ 65 m² avec ouvertures offre de nombreuses possibilités : suite indépendante, bureau, salle de sport ou logement locatif. Grande parcelle permettant d'aménager un extérieur de qualité avec possibilité de piscine plein sud. Garage double et stationnements extérieurs. Maison saine à rénover (cuisine, salle de bain, rafraîchissement), idéale pour résidence principale ou investissement. DPE F (chauffage au fioul). Possibilité d'amélioration avec un système plus moderne et économique type pompe à chaleur. Bien rare avec fort potentiel.
Voir plus

Référence: 3405
Honoraires à la charge du vendeur.
Barème des honoraires
DPE
A
B
C
D
E
F
G
GES
A
B
C
D
E
F
G
Maison à LATTES
Maison à LATTES
Maison à LATTES
Maison à LATTES
Géorisques

Les informations sur les risques auxquels ce bien est exposé sont disponibles sur le site Géorisques : www.georisques.gouv.fr

Ce site est protégé par hCaptcha Politique de confidentialité et Conditions d’utilisation s’appliquent.

En poursuivant votre navigation sans modifier vos paramètres, vous acceptez l'utilisation de cookies susceptibles de réaliser des statistiques de visite. Cliquez ici pour plus d'informations