Bénéficiez des services de nos partenaires locaux soigneusement sélectionnés
pour vous accompagner dans votre parcours d'achat immobilier

Appartement Neuilly Sur Marne 2 pièce(s) 46 m2 + Box

— Neuilly-Plaisance 93360 —
178 000 €
47 m²
2 pièces

Nos partenaires locaux
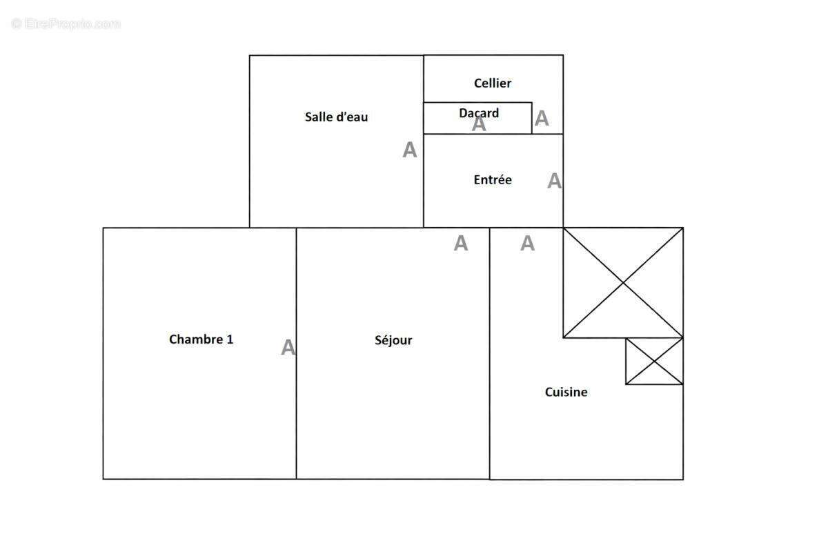
Appartement en résidence sécurisée avec garage (chauffage inclus dans les charges)

Idéalement situé au sein d'une résidence sécurisée, cet appartement fonctionnel constitue une excellente opportunité pour un premier achat, un investissement locatif ou pour une personne âgée recherchant confort et praticité.

Le bien se compose d'une entrée avec cellier, d'une cuisine équipée, d'une salle d'eau, ainsi que d'un séjour lumineux. Vous disposerez également d'une chambre de plain-pied, offrant un cadre de vie pratique et accessible.

Un véritable atout : un garage fermé situé en sous-sol, à seulement quelques mètres de l'appartement, facilitant le stationnement et le stockage.

Les + :
Résidence sécurisée
Appartement de plain-pied
Résidence sécurisée
Porte blindée
Garage fermé à proximité immédiate
Idéal premier achat, investissement ou senior

A noter :
Les charges de copropriété incluent le chauffage.
Un bien pratique et rassurant, à découvrir rapidement !

DPE E GES C

Estimation du coup annuel se situe entre 980 ET 1370euros /AN
Montant estimé des dépenses annuelles d'énergie pour un usage standard indexées aux années 2021, 2022 et 2023 (ou 2021 uniquement) (si logement F ou G 'Logement à consommation énergétique excessive : classe F ou G')

Pour visiter et vous accompagner dans votre projet, contactez Jean-françois CAUCHIE, au [Coordonnées masquées] ou, par courriel à [Coordonnées masquées].
Selon l'article L.561.5 du Code Monétaire et Financier, pour l'organisation de la visite, la présentation d'une pièce d'identité vous sera demandée.
Cette présente annonce a été rédigée sous la responsabilité éditoriale de Jean-françois CAUCHIE agissant en qualité de conseiller immobilier indépendant sous portage salarial auprès de SAS PROPRIETES PRIVEES, au capital de 44 920 euros, ZAC LE CHÊNE FERRÉ - 44 ALLÉE DES CINQ CONTINENTS 44120 VERTOU; SIRET 487 624 777 00040, RCS Nantes. Carte Professionnelle Transactions sur immeubles et fonds de commerce (T) et Gestion immobilière (G) n°CPI 44[Coordonnées masquées]10 388 délivrée par la CCI Nantes - Saint Nazaire. Compte séquestre n°3[Coordonnées masquées] BPA SAINT-SEBASTIEN-SUR-LOIRE (44230). Garantie GALIAN-SMABTP - 89 rue de la Boétie, 75008 Paris - n°28137 J pour 2 000 000 euros pour T et 120 000 euros pour G. Assurance responsabilité civile professionnelle par GALIAN-SMABTP n° de police 28137.J

Mandat réf : 426336. - Le professionnel garantit et sécurise votre projet immobilier.

Copropriété de 88 lots - dont 68 lots habitation.

Charges annuelles : 2000 euros.
Jean-françois CAUCHIE (EI) Agent Commercial - Numéro RSAC : 824262828 SOISSONS - .
Les informations sur les risques auxquels ce bien est exposé sont disponibles sur le site Géorisques : www. georisques. gouv. fr
Voir plus

Référence: 443744JFC
Bien en copropriété. Nombre de lots : 88. Charges de copropriété : 166 €.
Honoraires à la charge du vendeur.
DPE
A
B
C
D
E
F
G
GES
A
B
C
D
E
F
G
Appartement à NEUILLY-PLAISANCE
Appartement à NEUILLY-PLAISANCE
Appartement à NEUILLY-PLAISANCE
Appartement à NEUILLY-PLAISANCE
Appartement à NEUILLY-PLAISANCE
Appartement à NEUILLY-PLAISANCE
Appartement à NEUILLY-PLAISANCE
Appartement à NEUILLY-PLAISANCE
Appartement à NEUILLY-PLAISANCE
Appartement à NEUILLY-PLAISANCE
Appartement à NEUILLY-PLAISANCE
Appartement à NEUILLY-PLAISANCE
Appartement à NEUILLY-PLAISANCE
Appartement à NEUILLY-PLAISANCE
Géorisques

Les informations sur les risques auxquels ce bien est exposé sont disponibles sur le site Géorisques : www.georisques.gouv.fr

Ce site est protégé par hCaptcha Politique de confidentialité et Conditions d’utilisation s’appliquent.

En poursuivant votre navigation sans modifier vos paramètres, vous acceptez l'utilisation de cookies susceptibles de réaliser des statistiques de visite. Cliquez ici pour plus d'informations