Bénéficiez des services de nos partenaires locaux soigneusement sélectionnés
pour vous accompagner dans votre parcours d'achat immobilier

Maison 189 m² à Dinard

— Dinard 35800 —
1 247 400 €
189 m² / 2 591 m²
5 pièces
parkingbalcon/terrassejardin

Nos partenaires locaux
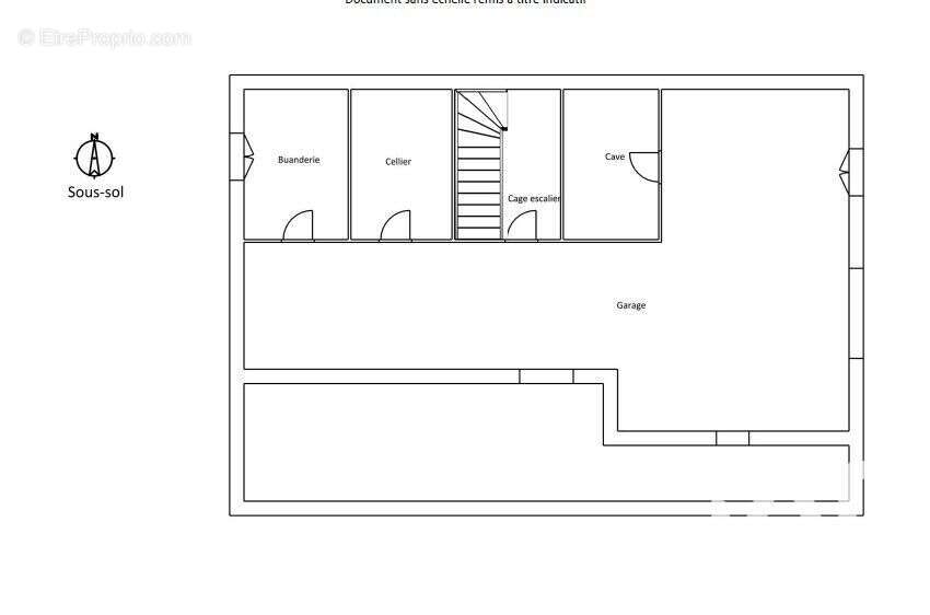
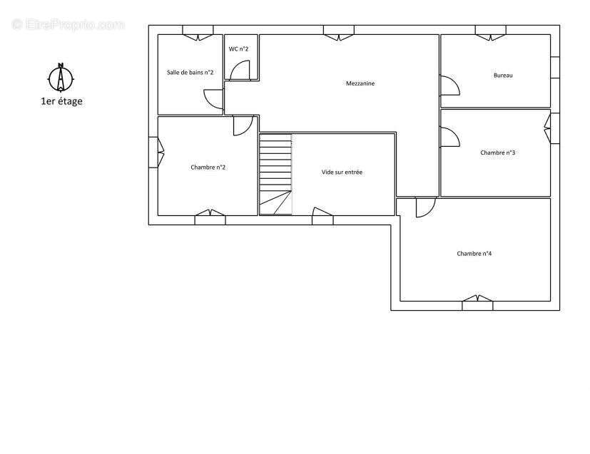
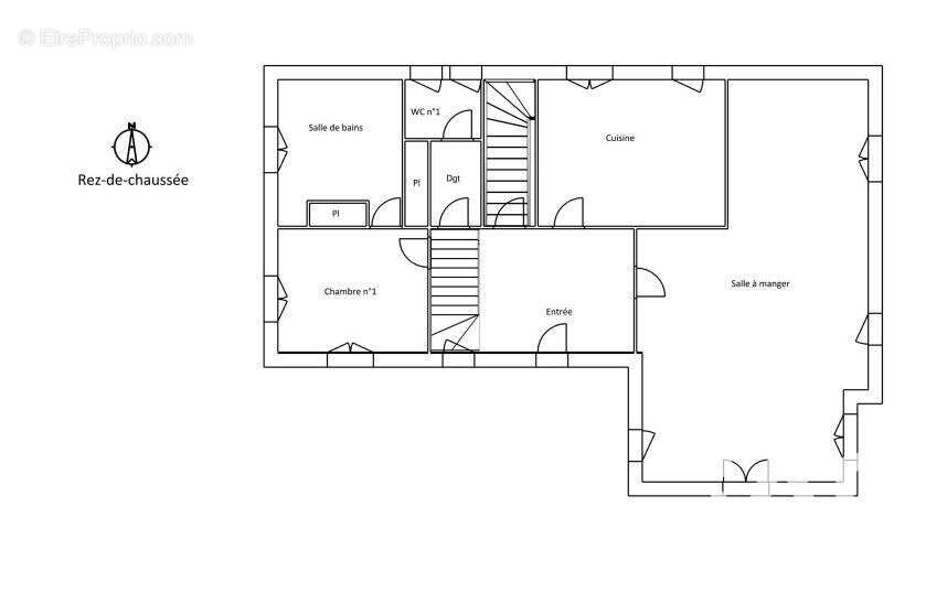
Iad France - Caroline Bideau vous propose : Située à DINARD dans le secteur prisé de La Vicomté, belle propriété vue Rance de 190 m² habitable environ, au cOEur d'un vaste jardin paysagé de 2591 m². De très beaux volumes pour cette grande maison familiale en pierres et toiture en ardoises de Sizun à adapter aux standards actuels. Au RDC, l'entrée cathédrale avec son bel escalier de style Art Déco en fer forgé dessert la cuisine, une grande pièce de vie de plus de 50 m², exposée sud avec accès direct sur la terrasse, une chambre, un dégagement, une salle de bains et un WC indépendant. À l'étage, le palier mezzanine dessert 3 chambres, un bureau, une salle de bains et un deuxième WC. Un sous-sol complet de 180 m² environ, entièrement carrelé vient compléter l'ensemble, avec plusieurs places de stationnement, une cave à vins, une buanderie et de nombreux espaces de rangement. Les plages sont à 5 mn en empruntant le chemin des douaniers. Honoraires d'agence à la charge du vendeur. Information d'affichage énergétique sur ce bien : classe ENERGIE D indice 211 et classe CLIMAT B indice 8. Les informations sur les risques auxquels ce bien est exposé, y compris l'obligation légale de débroussaillement, sont disponibles sur le site Géorisques : http://www.georisques.gouv.fr.La présente annonce immobilière a été rédigée sous la responsabilité éditoriale de Mme Caroline Bideau mandataire indépendant en immobilier (sans détention de fonds), agent commercial de la SAS I@D France immatriculé au RSAC de Saint Malo sous le numéro 953268653, titulaire de la carte de démarchage immobilier pour le compte de la société I@D France SAS.Informations LOI ALUR : Honoraires charge vendeur. (gedeon_6727_31759851)
Voir plus

Référence: 1828942
Honoraires à la charge du vendeur.
Barème des honoraires
DPE
A
B
C
D
E
F
G
GES
A
B
C
D
E
F
G
Photo 1 - Maison à DINARD
Photo 1
Photo 2 - Maison à DINARD
Photo 2
Photo 3 - Maison à DINARD
Photo 3
Photo 4 - Maison à DINARD
Photo 4
Photo 5 - Maison à DINARD
Photo 5
Photo 6 - Maison à DINARD
Photo 6
Photo 7 - Maison à DINARD
Photo 7
Photo 8 - Maison à DINARD
Photo 8
Photo 9 - Maison à DINARD
Photo 9
Géorisques

Les informations sur les risques auxquels ce bien est exposé sont disponibles sur le site Géorisques : www.georisques.gouv.fr

Ce site est protégé par hCaptcha Politique de confidentialité et Conditions d’utilisation s’appliquent.

En poursuivant votre navigation sans modifier vos paramètres, vous acceptez l'utilisation de cookies susceptibles de réaliser des statistiques de visite. Cliquez ici pour plus d'informations