Appartement à rénover Fort potentiel locatif Cerbère (frontière espagnole)

— Cerbere 66290 —
88 000 €
76 m² / 296 m²
7 pièces
jardin

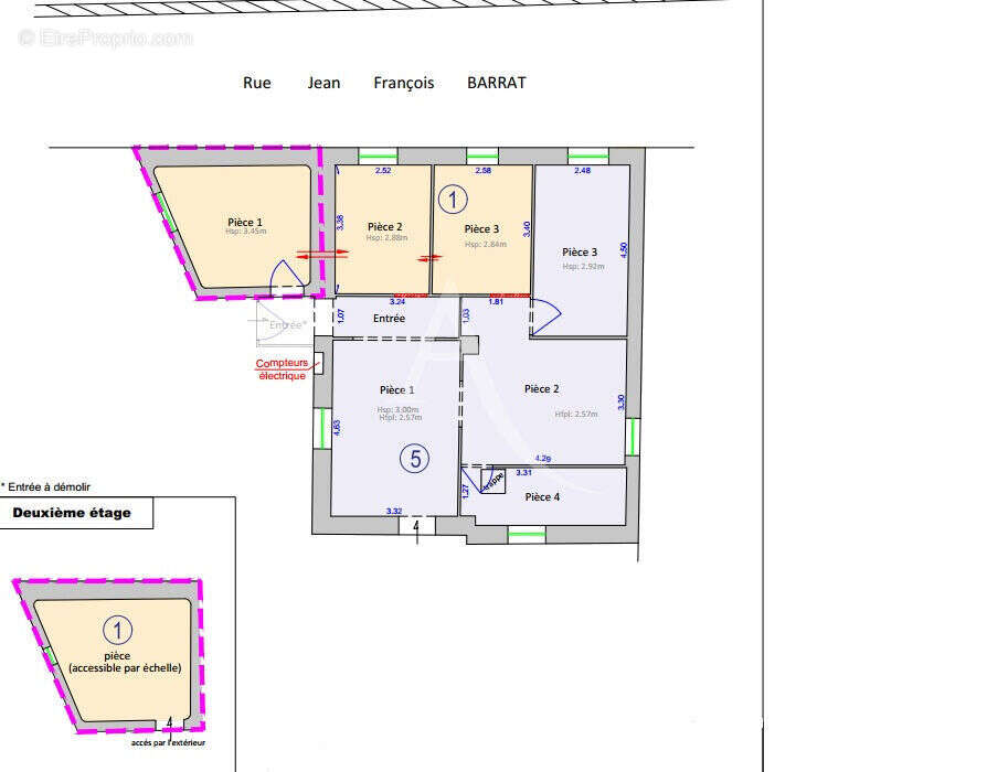
Cerbère Côte Vermeille, à quelques minutes de la frontière espagnole et du village de Portbou, dans un environnement méditerranéen authentique entre mer et montagne. Nous proposons deux lots d'appartements à rénover, offrant un fort potentiel de valorisation et de location saisonnière. Descriptif: 2 lots dans une petite maison. Surface totale : 76 m² Lot 1 : 26 m² Lot 2 : 50 m² Possibilité de créer 2 appartements indépendants ou un grand logement Idéal investissement locatif / Airbnb Proximité : plage, gare, Espagne, sentiers de randonnée Plongée et activités nautiques. Travaux estimés : environ 60 000 euros Budget total projet : 148 000 euros Rentabilité locative saisonnière assurée, Cerbère est très demandé l'été pour le tourisme, la plongée et la proximité de l'Espagne. Hypothèse location courte durée: Studio 26 m, prix moyen nuit : 65 euros, occupation : 110 nuits/an Revenu annuel : 65 × 110 = 7 150 euros Appartement 50 m²: prix moyen nuit : 95 euros occupation : 120 nuits/an Revenu annuel: 95 × 120 = 11 400 euros Revenus locatifs estimés Total brut annuel : 18 550 euros Investissement total : 148 000 euros Rentabilité brute estimée : 12,5 %
Voir plus

Référence: 231515
Honoraires à la charge du vendeur.
Barème des honoraires
Appartement à CERBERE
Appartement à CERBERE
Appartement à CERBERE
Appartement à CERBERE
Appartement à CERBERE
Appartement à CERBERE
Appartement à CERBERE
Appartement à CERBERE
Appartement à CERBERE
Appartement à CERBERE
Géorisques

Les informations sur les risques auxquels ce bien est exposé sont disponibles sur le site Géorisques : www.georisques.gouv.fr

Ce site est protégé par hCaptcha Politique de confidentialité et Conditions d’utilisation s’appliquent.