Bénéficiez des services de nos partenaires locaux soigneusement sélectionnés
pour vous accompagner dans votre parcours d'achat immobilier

Voir tous les partenaires locaux

À vendre - Avenue Foch - Appartement refait à neuf - 3 suites

— Paris-16e 75016 —
2 300 000 €
126 m²
5 pièces
ascenseur

Nos partenaires locaux
Votre staffeur ornemaniste
Faites confiance aux nombreuses années d'experiences de votre staffeur ornemaniste au service de vos projets !
06 28 48 12 03 ou cliquez-ici
Votre déménageur local
Vous apporte sérénité et professionnalisme depuis vos inventaires jusqu’au déballage et à l’installation. Contact au :
01 40 11 90 90 ou cliquez-ici
Votre concepteur créateur
Notre savoir faire vous assure une vrai expertise pour la conception de vos espaces de vie : dressings, cuisines, ect.
01 84 14 66 65 ou cliquez-ici
Votre architecte local
Rénovation, création sur mesure et agrandissement : à vos cotés pour les professionnels & particuliers. Contact au :
06 80 55 27 16 ou cliquez-ici
Votre expert en revêtement
Vente, pose et rénovations de sols : accompagnement complet, qualité durable & finitions soignées - contactez nous au :
06 20 66 06 94 ou cliquez-ici
Votre rénovation globale
Rénovation d'intérieure - Aménagement - Décoration - Création de Cuisine Haut de gamme - SDB - Dressing.. Contactez le :
01 44 07 65 01 ou cliquez-ici

Voir tous les partenaires locaux

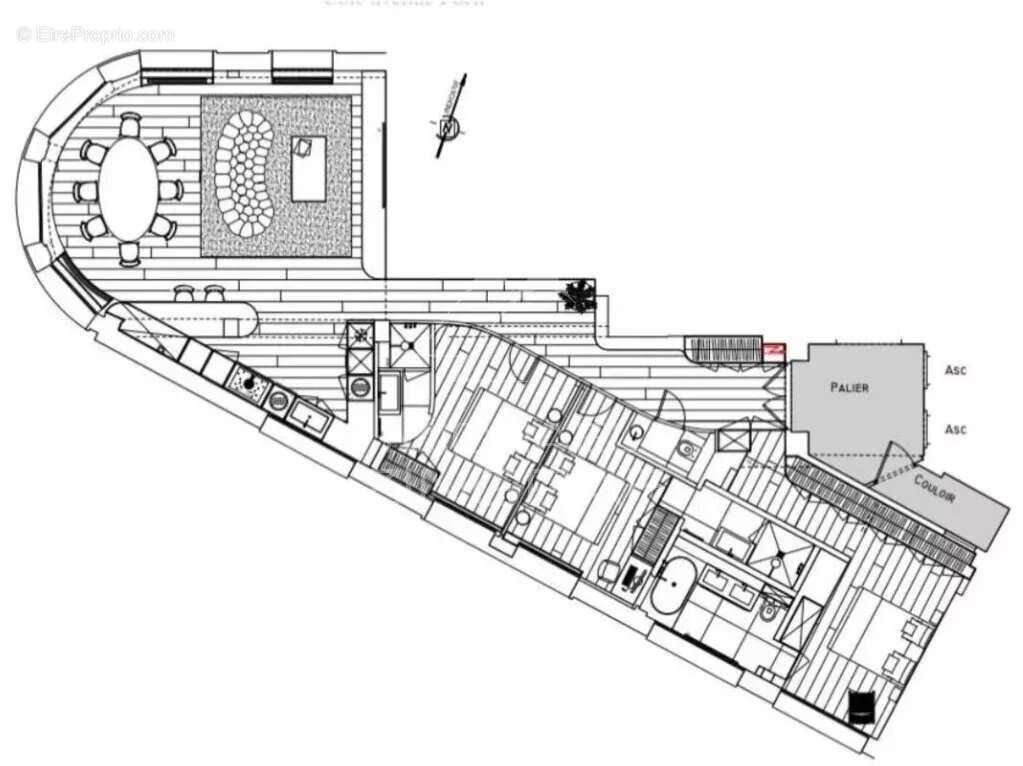
Situé sur la célèbre Avenue Foch, à proximité immédiate du métro Dauphine, des commerces et du Bois de Boulogne.

Situé dans un très bel immeuble de 1954 de grand standing avec gardienne, au 3ème étage avec ascenseur.

Le bien entièrement refait à neuf avec des matériaux très haut de gammes comprend:

Une agréable galerie d’entrée donnant sur un magnifique salon en rotonde extrêmement clair et dégagé , une salle à manger, une cuisine haut de gamme toute équipée.
Le bien comprends trois suites avec chambre, salle de bains, rangements et toilettes.
Toilettes indépendantes et rangements.
Le bien comprend une très grande cave.
Une place de parking à 75 000€ en sus

DPE C
Taxe foncière : 4000€
Charges trimestrielles : 2 816€


Pas de procédure en cours.

Www.georisques.gouv.fR
Voir plus

Référence: MZIPARG236
DPE
A
B
C
D
E
F
G
GES
A
B
C
D
E
F
G
Appartement à PARIS-16E
Appartement à PARIS-16E
Appartement à PARIS-16E
Appartement à PARIS-16E
Appartement à PARIS-16E
Appartement à PARIS-16E
Appartement à PARIS-16E
Appartement à PARIS-16E
Appartement à PARIS-16E
Appartement à PARIS-16E
Appartement à PARIS-16E
Appartement à PARIS-16E
Appartement à PARIS-16E
Appartement à PARIS-16E
Appartement à PARIS-16E
Appartement à PARIS-16E
Appartement à PARIS-16E
Géorisques

Les informations sur les risques auxquels ce bien est exposé sont disponibles sur le site Géorisques : www.georisques.gouv.fr

Ce site est protégé par hCaptcha Politique de confidentialité et Conditions d’utilisation s’appliquent.

En poursuivant votre navigation sans modifier vos paramètres, vous acceptez l'utilisation de cookies susceptibles de réaliser des statistiques de visite. Cliquez ici pour plus d'informations