Bénéficiez des services de nos partenaires locaux soigneusement sélectionnés
pour vous accompagner dans votre parcours d'achat immobilier

Appartement 64 m² à Argonay

— Argonay 74370 —
350 000 €
64 m²
2 pièces
parkingbalcon/terrasseascenseur

Nos partenaires locaux
EXCLUSIVITÉ ! VISITE VIRTUELLE POSSIBLE
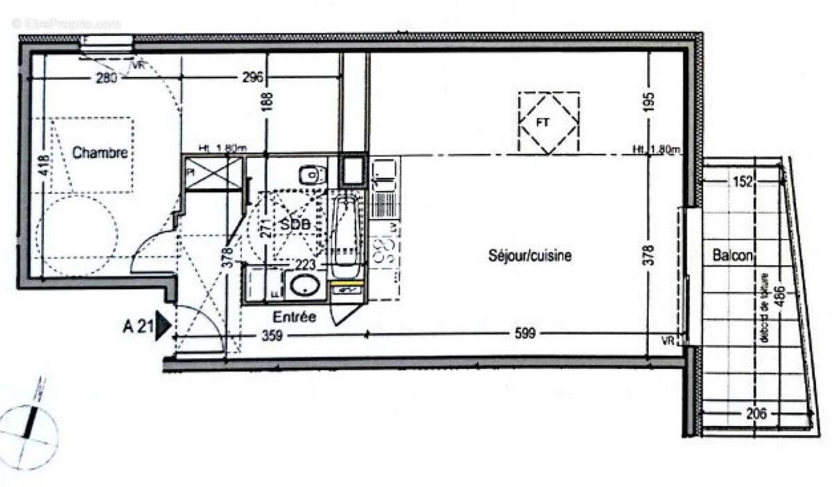
Situé sur les hauteurs d'Argonay, proche de la Clinique Générale, ce grand T2 de 63 m² au sol (45 m² en carrez) fait partie d'une petite résidence moderne et sécurisée de 2019. Vous serez au 2eme et dernier étage avec ascenseur avec une vue dégagée sur toutes les montagnes environnantes.
Le T2 est organisé comme suit : entrée avec placard, 1 grande pièce de vie de 33 m² avec cuisine toute équipée donnant sur le balcon avec vue dégagée sur les montagnes, 1 chambre avec dressing sur mesure, 1 salle de bains avec wc.
Nombreux rangements optimisés. Aucun travaux à prévoir, chauffage et eau chaude compris dans les charges.
1 GARAGE fermé en sous-sol peut être proposé en sus.

Le bien comprend 1 lot, et il est situé dans une copropriété de 22 lots (les charges courantes annuelles moyennes de copropriété sont de 1920 ¤ et le syndicat des copropriétaires ne fait pas l'objet d'une procédure citée à l'article L. 721-1 du code de la construction et de l'habitation).

Les informations sur les risques auxquels ce bien est exposé sont disponibles sur le site Géorisques : www.georisques.gouv.fr
Prix de vente : 350 000 ¤
Honoraires charge vendeur

Contactez votre conseiller SAFTI : Céline MAÎTRE, Tél. : [Coordonnées masquées], E-mail : [Coordonnées masquées] - EI - Agent commercial immatriculé au RSAC de ANNECY sous le numéro 835 142 068.Informations LOI ALUR : Soumis au régime de copropriété. Nombre de lots : 22. Quote part annuelle(moyenne) : 1920 euros. Honoraires charge vendeur. (gedeon_26118_32907939)
Voir plus

Référence: 1624201
Bien en copropriété. Nombre de lots : 22. Charges de copropriété : 1920 €.
Honoraires à la charge du vendeur.
Barème des honoraires
DPE
A
B
C
D
E
F
G
GES
A
B
C
D
E
F
G
Photo 1 - Appartement à ARGONAY
Photo 1
Photo 2 - Appartement à ARGONAY
Photo 2
Photo 3 - Appartement à ARGONAY
Photo 3
Photo 4 - Appartement à ARGONAY
Photo 4
Photo 5 - Appartement à ARGONAY
Photo 5
Photo 6 - Appartement à ARGONAY
Photo 6
Photo 7 - Appartement à ARGONAY
Photo 7
Photo 8 - Appartement à ARGONAY
Photo 8
Photo 9 - Appartement à ARGONAY
Photo 9
Géorisques

Les informations sur les risques auxquels ce bien est exposé sont disponibles sur le site Géorisques : www.georisques.gouv.fr

Ce site est protégé par hCaptcha Politique de confidentialité et Conditions d’utilisation s’appliquent.

En poursuivant votre navigation sans modifier vos paramètres, vous acceptez l'utilisation de cookies susceptibles de réaliser des statistiques de visite. Cliquez ici pour plus d'informations