Ravissante maison T7 landaise à Saint-Justin

— Saint-Justin 40240 —
299 000 €
200 m² / 5 478 m²
7 pièces
parkingbalcon/terrassejardinpiscine

Plongez dans le confort de cette ravissante maison individuelle de type T7, généreusement déployée sur 200 m², où le style landais se marie harmonieusement avec des prestations modernes. Répartie sur deux niveaux, elle est nichée au bout d'une impasse, au cœur d'un magnifique parc arboré de 5 478 m², assurant un cadre de vie paisible, sans vis-à-vis.

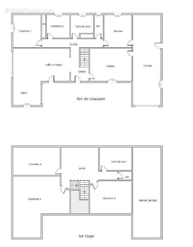
Dès votre arrivée, un hall d'entrée à plafond cathédrale vous accueille, vous guidant vers une cuisine équipée de 17,75 m², parfaite pour réaliser vos plats favoris. Le lumineux salon-séjour de 38,86 m², équipé d'un insert pour des soirées chaleureuses, offre une vue dégagée sur le jardin grâce à de grandes baies vitrées.

Le rez-de-chaussée abrite également trois chambres, deux d'entre elles sont dotées de placards intégrés, pour un espace optimisé. Une salle d'eau moderne avec douche à l'italienne et double vasque complète cet étage, avec un WC séparé et un lave-mains pour plus de commodité.

À l'étage, découvrez trois chambres supplémentaires, offrant de nombreux agencements possibles pour toute la famille, ainsi qu'une salle d'eau et un second WC indépendant. Une grande terrasse couverte s'ouvre sur le jardin, idéale pour partager des moments conviviaux à l'extérieur.

L'écrin de verdure est sublimé par une piscine maçonnée de 6x12 m, construite en 2012 et traitée au sel, promettant des journées d'été rafraîchissantes. L'espace extérieur est complété par un carport de 31 m² et un garage de 36,20 m², facilitant le stationnement et le rangement. Les combles de 34 m² au sol, restent accessibles pour le stockage.

Environnement calme et recherché, cette maison se situe à proximité de parcs publics, favorisant un cadre de vie agréable et verdoyant.

Caractéristiques techniques :

- Taxe foncière : 1 468 €
- DPE : C
- Chauffage : bois et radiateurs électriques
- Portail automatique
- Production d'eau chaude par cumulus électrique
- Présence d'un forage

Les informations sur les risques auxquels ce bien est exposé sont disponibles sur le site Géorisques : www.georisques.gouv.fr.

Annonce présentée par Zefir.
Voir plus

Référence: 39ba2d79-dee3-4224-a358-e72c7d
Honoraires à la charge du vendeur.
DPE
A
B
C
D
E
F
G
GES
A
B
C
D
E
F
G
Maison à SAINT-JUSTIN
Maison à SAINT-JUSTIN
Maison à SAINT-JUSTIN
Maison à SAINT-JUSTIN
Maison à SAINT-JUSTIN
Maison à SAINT-JUSTIN
Maison à SAINT-JUSTIN
Maison à SAINT-JUSTIN
Maison à SAINT-JUSTIN
Maison à SAINT-JUSTIN
Maison à SAINT-JUSTIN
Maison à SAINT-JUSTIN
Maison à SAINT-JUSTIN
Maison à SAINT-JUSTIN
Maison à SAINT-JUSTIN
Maison à SAINT-JUSTIN
Maison à SAINT-JUSTIN
Maison à SAINT-JUSTIN
Maison à SAINT-JUSTIN
Maison à SAINT-JUSTIN
Maison à SAINT-JUSTIN
Maison à SAINT-JUSTIN
Maison à SAINT-JUSTIN
Maison à SAINT-JUSTIN
Maison à SAINT-JUSTIN
Maison à SAINT-JUSTIN
Maison à SAINT-JUSTIN
Maison à SAINT-JUSTIN
Géorisques

Les informations sur les risques auxquels ce bien est exposé sont disponibles sur le site Géorisques : www.georisques.gouv.fr

Ce site est protégé par hCaptcha Politique de confidentialité et Conditions d’utilisation s’appliquent.