Bénéficiez des services de nos partenaires locaux soigneusement sélectionnés
pour vous accompagner dans votre parcours d'achat immobilier

Maison familiale avec jardin et piscine à Lissieu

— Lissieu 69380 —
560 000 €
145 m² / 1 598 m²
6 pièces
parkingjardinpiscine

Nos partenaires locaux
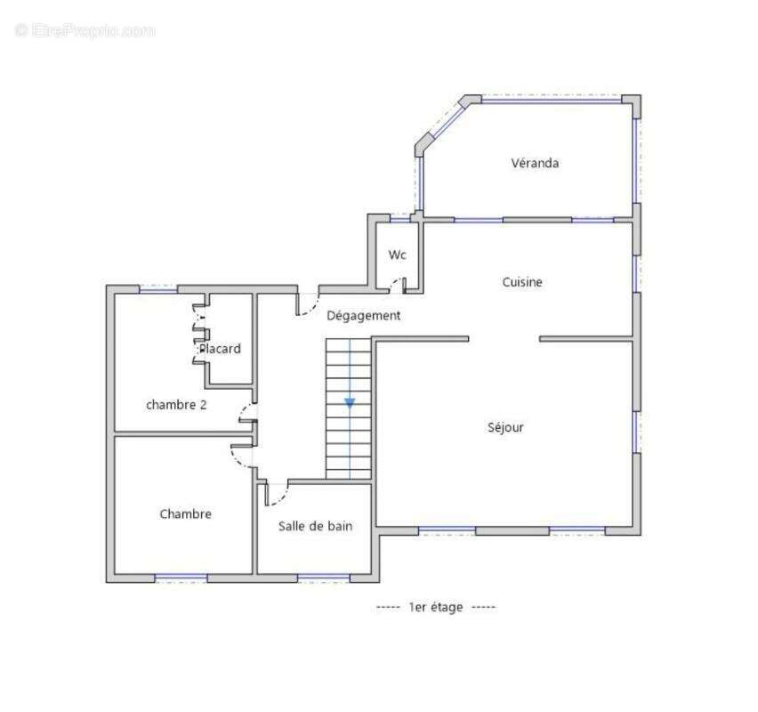
Située à Lissieu, cette maison familiale d'environ 145 m2 offre 6 pièces dont 4 chambres, réparties sur 2 niveaux, au cœur d'un environnement résidentiel calme et recherché. Édifiée sur une belle parcelle arborée d'environ 1 598 m2, elle bénéficie d'un agréable jardin clos, d'une terrasse et d'une piscine au sel, formant un cadre de vie particulièrement adapté à une famille.

La pièce de vie, spacieuse et lumineuse, s'ouvre largement sur le jardin et profite d'une cheminée avec insert pour des ambiances chaleureuses. La cuisine dinatoire, pensée pour la vie de famille, peut être ouverte ou indépendante selon vos besoins. Elle se prolonge par une véranda d'environ 15 m2, idéale pour profiter de la vue sur le jardin en toute saison. Les espaces de rangement sont nombreux, avec notamment des placards intégrés, un dressing, un cellier et une buanderie, complétés par un sous-sol d'environ 41 m2.

La partie nuit, organisée sur deux niveaux, comprend 4 chambres avec rangements, une salle de bains, une salle d'eau et des toilettes indépendantes, offrant confort et fonctionnalité au quotidien. À l'extérieur, vous apprécierez la grande terrasse pour les repas d'été, la piscine, ainsi que plusieurs places de stationnement. La maison dispose également d'un garage, d'un balcon et de volets roulants électriques.

Pour le confort et la performance énergétique, le bien bénéficie de triple vitrage, du chauffage au gaz, d'une production d'eau chaude au gaz, de panneaux photovoltaïques couvrant une part significative de la consommation, d'un chauffe‑eau solaire et d'une borne de recharge pour véhicule électrique. La fibre optique est également présente.

Caractéristiques techniques

- Taxe foncière : 1683 €
- DPE : D
- Mode de chauffage : gaz
- Mode de distribution de l'eau chaude : électrique

Mentions légales :

Les données officielles relatives aux risques naturels et technologiques applicables à ce bien (inondation, mouvements de terrain, sismicité, radon, pollution, subsidence, etc.) sont consultables sur le portail www.georisques.gouv.fr. Annonce publiée par Zefir. Les informations communiquées ici ont un caractère indicatif et ne remplacent pas les pièces et diagnostics réglementaires : il appartient aux intéressés de vérifier et de confronter ces éléments avant toute décision d'achat ou engagement contractuel.

Pour toute question, contactez Zefir au [Coordonnées masquées].
Voir plus

Référence: eb5251c8-c21f-4122-a53b-3469e8
Honoraires à la charge du vendeur.
DPE
A
B
C
D
E
F
G
GES
A
B
C
D
E
F
G
Maison à LISSIEU
Maison à LISSIEU
Maison à LISSIEU
Maison à LISSIEU
Maison à LISSIEU
Maison à LISSIEU
Maison à LISSIEU
Maison à LISSIEU
Maison à LISSIEU
Maison à LISSIEU
Maison à LISSIEU
Maison à LISSIEU
Maison à LISSIEU
Maison à LISSIEU
Maison à LISSIEU
Maison à LISSIEU
Maison à LISSIEU
Maison à LISSIEU
Maison à LISSIEU
Maison à LISSIEU
Géorisques

Les informations sur les risques auxquels ce bien est exposé sont disponibles sur le site Géorisques : www.georisques.gouv.fr

Ce site est protégé par hCaptcha Politique de confidentialité et Conditions d’utilisation s’appliquent.

En poursuivant votre navigation sans modifier vos paramètres, vous acceptez l'utilisation de cookies susceptibles de réaliser des statistiques de visite. Cliquez ici pour plus d'informations